Acquisto Assistito in Asta e Pre-Asta

In vendita
Appartamento
Anguillara Veneta
132.000 €
Descrizione
Acquisto Assistito in Asta Giudiziaria
Per maggiori proposte visita il sito dell’agenzia: www.asteagency.com

Verifica fattibilità d’acquisto in PRE-ASTA

DATA ASTA : 21/05/26

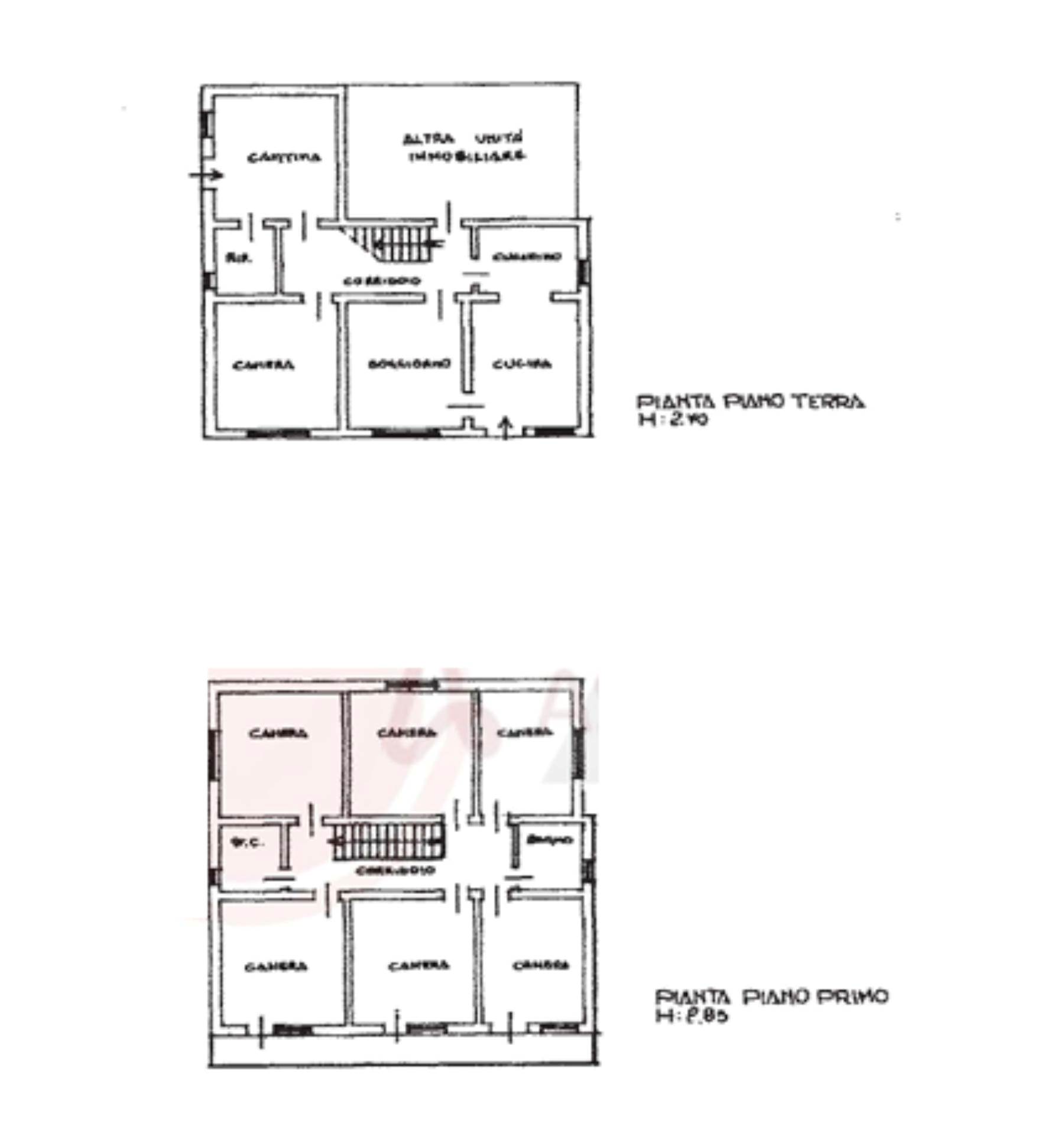
UBICAZIONE E DESCRIZIONE:
Via Rovere, 53 Anguillara Veneta PD

Descrizione sintetica: Abitazione indipendente sviluppata su due livelli fuori terra con accesso da corte comune. Al piano terra si trovano ingresso con cucina, cucinino separato, soggiorno, una camera da letto, un bagno (realizzato al posto del ripostiglio indicato nelle planimetrie), cantina, corridoio con scala di collegamento al piano superiore e garage collegato all’abitazione. Al piano primo sono presenti sei camere da letto, un bagno, un servizio igienico e un poggiolo. L’immobile presenta finiture datate dell’epoca costruttiva con serramenti, pavimentazioni e bagni originali. Corte pertinenziale mq 2.498,00 e terreno aggiuntivo di mq 75,00. Box auto di mq 54,90.


Aste Agency SRL offre il servizio di assistenza per acquistare tramite un mutuo con banche convenzionate. Assiste ed indirizza, dall’aggiudicazione fino alla consegna delle chiavi.

PERCHE’ COMPRARE ALL’ASTA:
- Acquisto sicuro tramite Tribunale;
- Prezzo inferiore rispetto al mercato libero, quindi rata del mutuo più bassa;
- Banche convenzionate con i Tribunali;
- Nessun vincolo di prezzo nella rivendita e nella locazione.

Le Aste Giudiziarie sono soluzioni abitative a prezzi unici, in quanto si compera ad un prezzo inferiore, paragonato alla realtà proibitiva del mercato libero, e l’investimento immobiliare risulta essere sicuramente conveniente.
Per maggiori delucidazioni vi invitiamo a contattarci. Sarà nostra premura fissare un appuntamento in studio e trasferirvi tutte le informazioni necessarie per un’attenta e serena valutazione.

ASTE AGENCY SRL – Contattateci per un appuntamento presso uno dei nostri uffici o in videochiamata.
Caratteristiche principali
Codice:
93.24.2.210526.PD
Città:
Anguillara Veneta
Categoria:
Appartamento
Locali:
9
Camere:
6
Bagni:
3
Mq:
279
Box:
1
Mq Box:
54
Mq Giardino:
2498
Balconi:
1
Terrazzi:
1
Piano:
Terra
Anno:
1967
Anno ristrutturazione:
1984
Classe energetica:
G
Stato Immobile:
Abitabile
Grado:
Medio
Tipo Cucina:
Abitabile
Riscaldamento:
Autonomo
Tipo Impianto:
Radiatori
Fonte Energetica:
Gasolio
Accesso Disabili:
No
Mappa
Via rovere, 53 - Anguillara Veneta (PD)
Planimetrie
Richiedi informazioni
Invia
Cookie preference