Acquisto Assistito - in Asta e Pre-Asta

In vendita
Appartamento
Chieti
21.357 €
Descrizione
Per maggiori proposte visita il sito dell’agenzia: www.asteagency.com

Verifica fattibilità d’acquisto in PRE-ASTA

DATA ASTA: 28/10/2025

Disponibilità: Libero al decreto di trasferimento
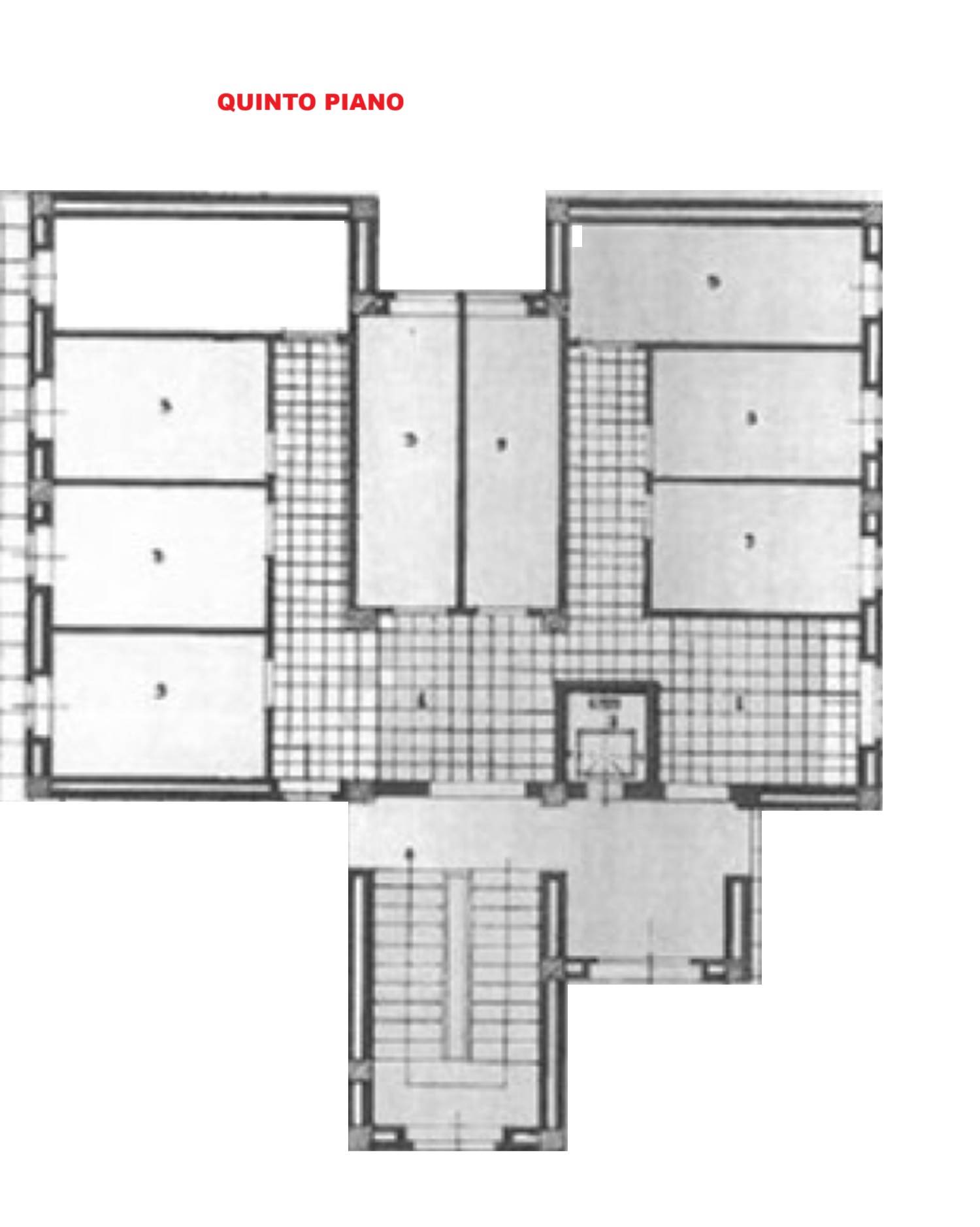
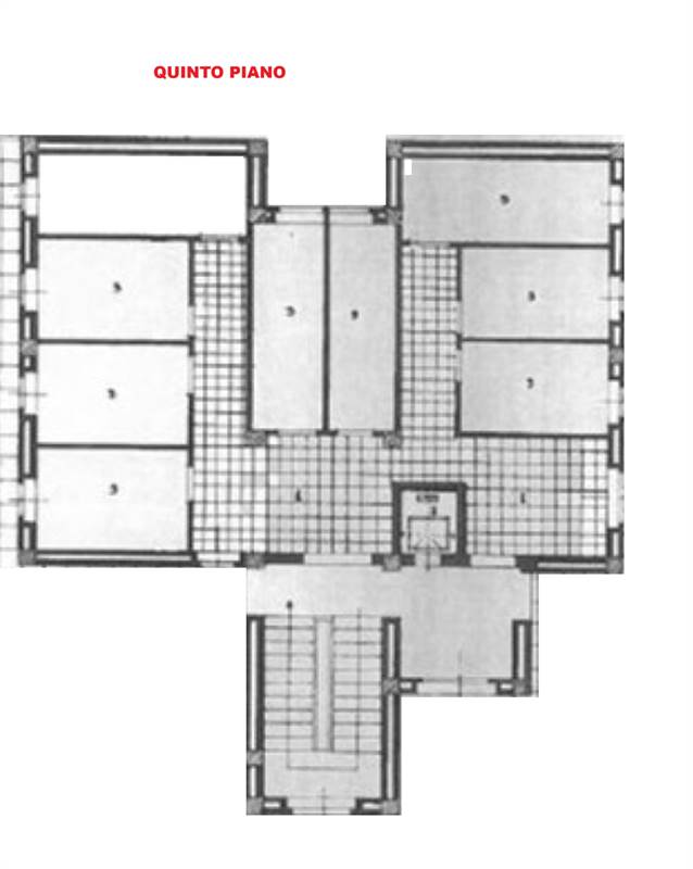
UBICAZIONE E DESCRIZIONE:
Via L. Colazilli 5 – 66100 Chieti (CH)
Descrizione sintetica: Appartamento di mq 195,00 al piano quinto e attico composto di ingresso, soggiorno, studio, cucina, tre camere, doppi servizi igienici, ripostiglio, oltre a disimpegni e corridoi, con terrazzo di mq 66,00 e balcone di mq 16,00 a livello; con la pertinenza di piccolo locale cantina di mq 6,00 al piano primo seminterrato e garage di mq 21,00.



Aste Agency SRL offre il servizio di assistenza per acquistare tramite un mutuo con banche convenzionate. Assiste ed indirizza, dall’aggiudicazione fino alla consegna delle chiavi.

PERCHE’ COMPRARE ALL’ASTA:
- Acquisto sicuro tramite Tribunale;
- Prezzo inferiore rispetto al mercato libero, quindi rata del mutuo più bassa;
- Banche convenzionate con i Tribunali;
- Nessun vincolo di prezzo nella rivendita e nella locazione.

Le Aste Giudiziarie sono soluzioni abitative a prezzi unici, in quanto si compera ad un prezzo inferiore, paragonato alla realtà proibitiva del mercato libero, e l’investimento immobiliare risulta essere sicuramente conveniente.
Per maggiori delucidazioni vi invitiamo a contattarci. Sarà nostra premura fissare un appuntamento in studio e trasferirvi tutte le informazioni necessarie per un’attenta e serena valutazione.

ASTE AGENCY SRL – Contattateci per un appuntamento presso uno dei nostri uffici o in videochiamata.
Caratteristiche principali
Codice:
9.21.1.281025.CH
Città:
Chieti
Categoria:
Appartamento
Locali:
6
Camere:
3
Bagni:
2
Mq:
211
Box:
1
Balconi:
1
Terrazzi:
1
Piano:
5
Anno:
1960
Classe energetica:
G
Stato Immobile:
Da Ristrutturare
Grado:
Signorile
Arredi:
Non Arredato
Tipo Cucina:
Abitabile
Riscaldamento:
Autonomo
Fonte Energetica:
Gas
Accesso Disabili:
Nessuna Barriera
Accessori
Ascensore
Mappa
Via L. Colazilli , 5 - Chieti (CH)
Virtual tour
Richiedi informazioni
Invia
Cookie preference