Acquisto Assistito in Asta e Pre-Asta

In vendita
Villa
Albignasego
262.500 €
Descrizione
Acquisto Assistito in Asta Giudiziaria
Per maggiori proposte visita il sito dell’agenzia: www.asteagency.com

Verifica fattibilità d’acquisto in PRE-ASTA

DATA ASTA : 23/04/26

UBICAZIONE E DESCRIZIONE:
Via Cesare Battisti 46/A Albignasego PD

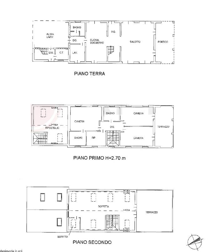
Descrizione sintetica: villino sviluppato su tre piani fuori terra, con portico e terrazza soprastante per totale mq 55,00, garage di mq 31,50 al piano terra e cortile esclusivo di mq 790,00. Il villino si compone di soggiorno, cucina/pranzo, ingresso, centrale termica, bagno, lavanderia al piano terra. Disimpegno, tre camere, due bagni, terrazza al piano primo. Locale sottotetto di mq 55,00 al piano secondo.


Aste Agency SRL offre il servizio di assistenza per acquistare tramite un mutuo con banche convenzionate. Assiste ed indirizza, dall’aggiudicazione fino alla consegna delle chiavi.

PERCHE’ COMPRARE ALL’ASTA:
- Acquisto sicuro tramite Tribunale;
- Prezzo inferiore rispetto al mercato libero, quindi rata del mutuo più bassa;
- Banche convenzionate con i Tribunali;
- Nessun vincolo di prezzo nella rivendita e nella locazione.

Le Aste Giudiziarie sono soluzioni abitative a prezzi unici, in quanto si compera ad un prezzo inferiore, paragonato alla realtà proibitiva del mercato libero, e l’investimento immobiliare risulta essere sicuramente conveniente.
Per maggiori delucidazioni vi invitiamo a contattarci. Sarà nostra premura fissare un appuntamento in studio e trasferirvi tutte le informazioni necessarie per un’attenta e serena valutazione.

ASTE AGENCY SRL – Contattateci per un appuntamento presso uno dei nostri uffici o in videochiamata.
Caratteristiche principali
Codice:
87.25.230426.PD
Città:
Albignasego
Categoria:
Villa
Locali:
5
Camere:
3
Bagni:
3
Mq:
318
Box:
1
Mq Giardino:
790
Terrazzi:
1
Piano:
Terra
Anno:
2009
Classe energetica:
G
Stato Immobile:
Buono
Grado:
Medio
Tipo Cucina:
Abitabile
Riscaldamento:
Autonomo
Tipo Impianto:
Pavimento
Fonte Energetica:
Metano
Raffrescamento:
Split
Accesso Disabili:
No
Accessori
Aria Condizionata
Lavanderia
Porta Blindata
Mappa
Via cesare battisti, 46 - Albignasego (PD)
Planimetrie
Richiedi informazioni
Invia
Cookie preference