Acquisto Assistito - in Asta e Pre-Asta

In vendita
Appartamento
Cepagatti
151.082 €
Descrizione
Acquisto Assistito in Asta Giudiziaria
Per maggiori proposte visita il sito dell’agenzia: www.asteagency.com

Verifica fattibilità d’acquisto in PRE-ASTA

DATA ASTA : 26/05/26

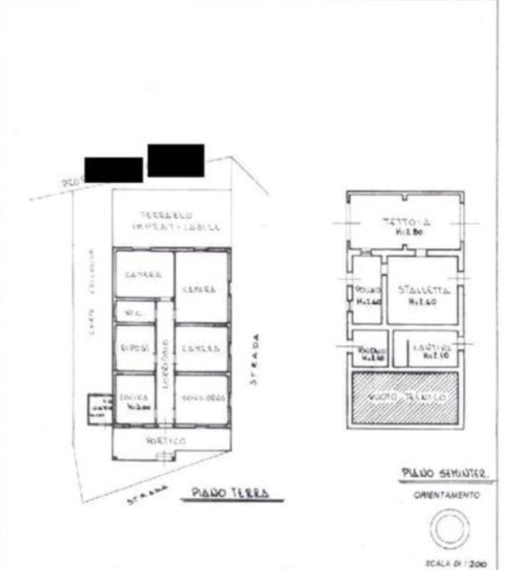
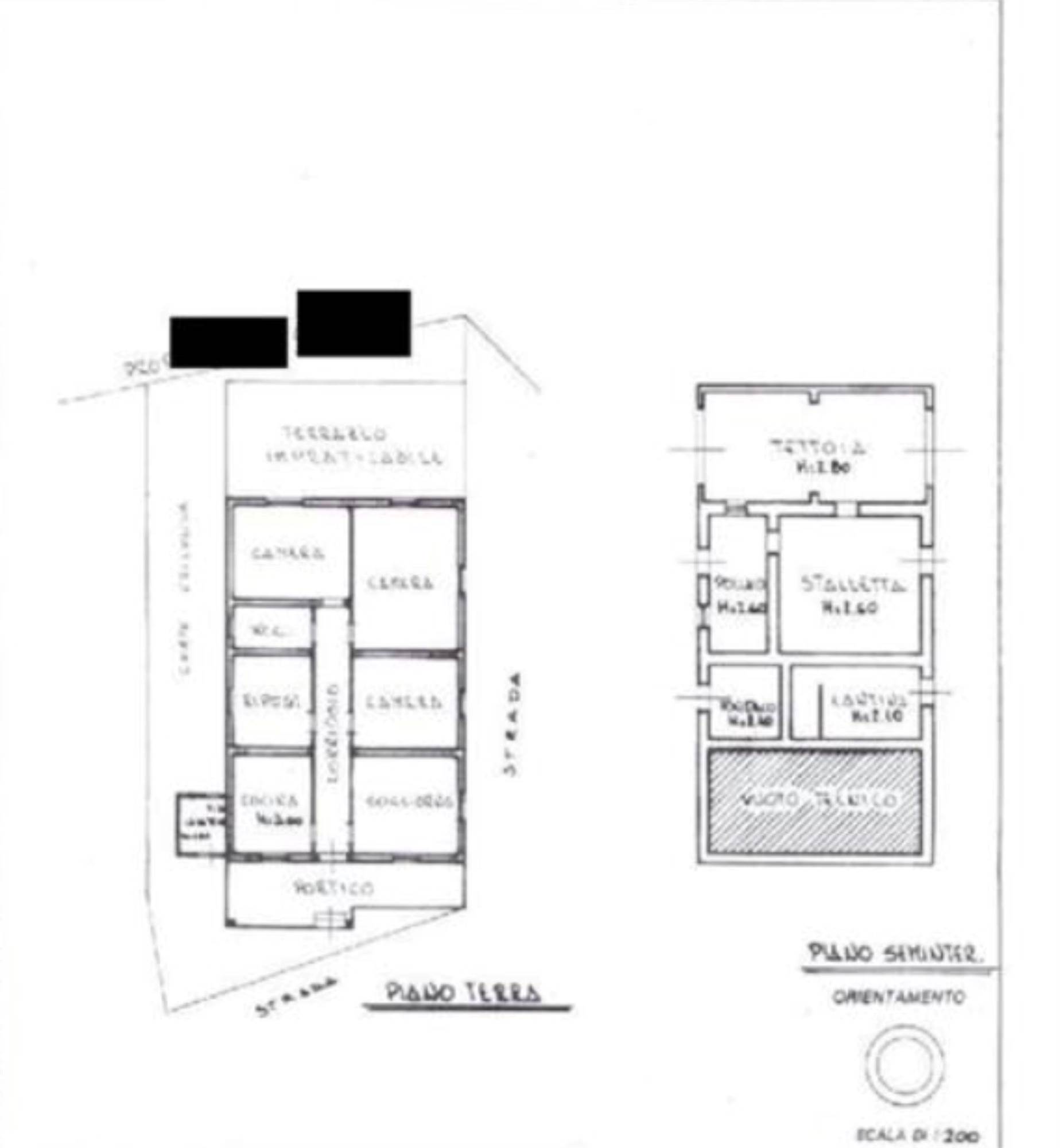
UBICAZIONE E DESCRIZIONE: Via Luisa Baccaria, 13, Palozzo, Cepagatti, PE.

Descrizione sintetica: Intero fabbricato da cielo a terra con annesso garage e terreno agricolo composto da abitazione al piano terra e locali accessori al piano seminterrato, oltre corte esclusiva circostante recintata. I due livelli non sono comunicanti internamente tra di loro ma accessibili autonomamente direttamente dalla corte esterna. Il piano terra è composto da ampio ingresso salone/soggiorno con angolo cottura e bagno, oltre porticato in corrispondenza dell'ingresso, disimpegno per la zona notte composta da tre camere da letto e bagno oltre ampio terrazzo. Il piano seminterrato è composto da locale sgombero/deposito, da locale utilizzato allo stato di fatto a taverna, locale con angolo cottura e wc, locale c.t. e cantina.

Aste Agency SRL offre il servizio di assistenza per acquistare tramite un mutuo con banche convenzionate. Assiste ed indirizza, dall’aggiudicazione fino alla consegna delle chiavi.

PERCHE’ COMPRARE ALL’ASTA:
- Acquisto sicuro tramite Tribunale;
- Prezzo inferiore rispetto al mercato libero, quindi rata del mutuo più bassa;
- Banche convenzionate con i Tribunali;
- Nessun vincolo di prezzo nella rivendita e nella locazione.

Le Aste Giudiziarie sono soluzioni abitative a prezzi unici, in quanto si compera ad un prezzo inferiore, paragonato alla realtà proibitiva del mercato libero, e l’investimento immobiliare risulta essere sicuramente conveniente.
Per maggiori delucidazioni vi invitiamo a contattarci. Sarà nostra premura fissare un appuntamento in studio e trasferirvi tutte le informazioni necessarie per un’attenta e serena valutazione.

ASTE AGENCY SRL – Contattateci per un appuntamento presso uno dei nostri uffici o in videochiamata.
Caratteristiche principali
Codice:
86.24.260526.PE
Città:
Cepagatti
Categoria:
Appartamento
Locali:
6
Camere:
3
Bagni:
3
Mq:
151
Box:
1
Mq Box:
19
Mq Giardino:
286
Terrazzi:
1
mq Terrazzo:
42
Piano:
1
Anno:
1967
Classe energetica:
G
Stato Immobile:
Buono
Grado:
Medio
Tipo Cucina:
Angolo Cottura
Riscaldamento:
Autonomo
Tipo Impianto:
Radiatori
Fonte Energetica:
Metano
Raffrescamento:
Split
Accesso Disabili:
No
Accessori
Aria Condizionata
Camino
Canna Fumaria
Vasca Idromassaggio
Mappa
Via Luisa Baccaria , 13 - Cepagatti (PE)
Richiedi informazioni
Invia
Cookie preference