Acquisto Assistito in Asta Giudiziaria

In vendita
Villa Bifamiliare
Fiesso Umbertiano (Ospitaletto)
76.800 €
Descrizione
Acquisto Assistito in Asta e Pre-Asta
Per maggiori proposte visita il sito dell’agenzia: www.asteagency.com

Verifica fattibilità d’acquisto in PRE-ASTA
DATA ASTA : 18/12/2025

Disponibilità: Libero al Decreto di Trasferimento

UBICAZIONE E DESCRIZIONE:
Indirizzo: Via Trieste, 1555 - Fiesso Umbertiano (RO)

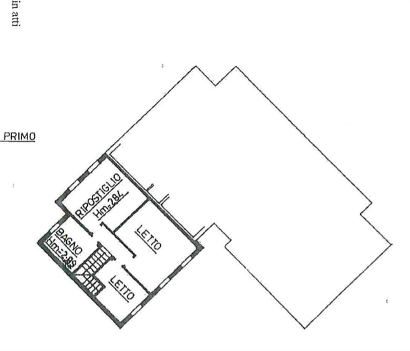
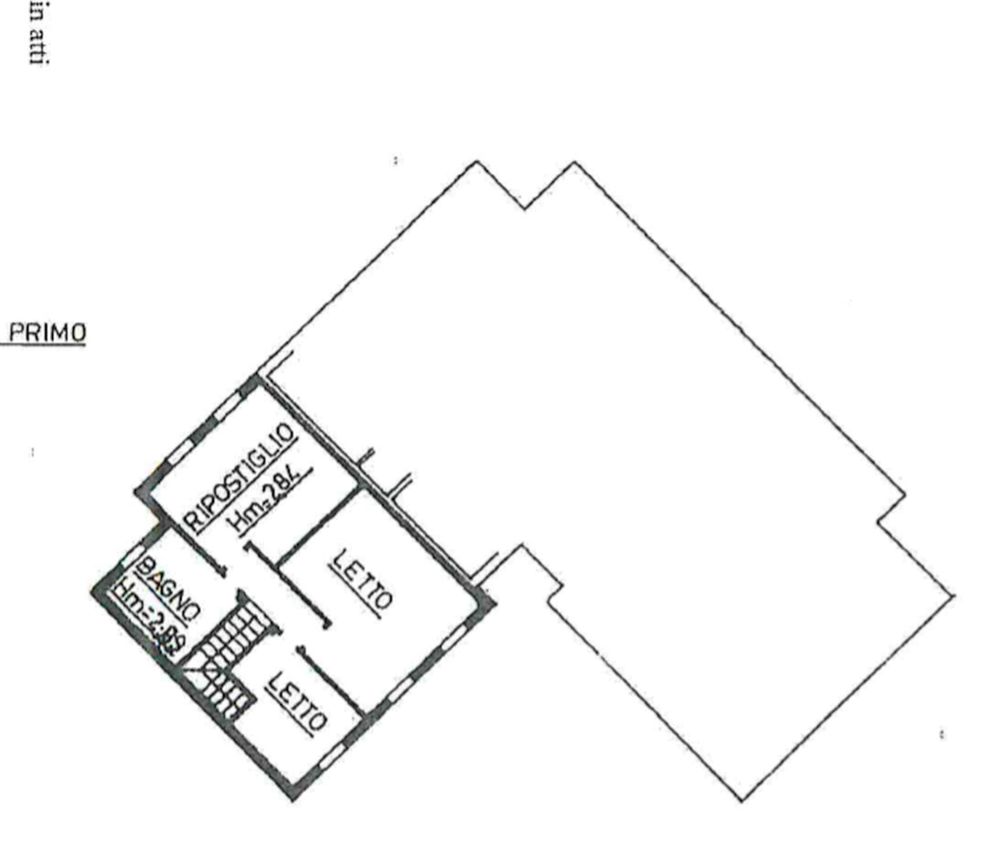
Descrizione sintetica: Piena proprietà per la quota di 1/1 di unità residenziale su tre livelli con garage, composta da cucina, soggiorno-pranzo, due bagni, due camere, cantina, in fabbricato quadrifamiliare con portico ed area cortiliva comuni.

Superficie lorda commerciale mq: 205,00

Home Agency offre il servizio di assistenza per acquistare tramite un mutuo con banche convenzionate. Assiste ed indirizza, dall’aggiudicazione fino alla consegna delle chiavi.

PERCHE’ COMPRARE ALL’ASTA:
- Acquisto sicuro tramite Tribunale;
- Prezzo inferiore rispetto al mercato libero, quindi rata del mutuo più bassa;
- Banche convenzionate con i Tribunali;
- Nessun vincolo di prezzo nella rivendita e nella locazione.

Le Aste Giudiziarie sono soluzioni abitative a prezzi unici, in quanto si compera ad un prezzo inferiore, paragonato alla realtà proibitiva del mercato libero, e l’investimento immobiliare risulta essere sicuramente conveniente.
Per maggiori delucidazioni vi invitiamo a contattarci. Sarà nostra premura fissare un appuntamento in studio e trasferirvi tutte le informazioni necessarie per un’attenta e serena valutazione.

PADOVA (PD) Via Giovanni Berchet, 10 - previo appuntamento
Bologna - Padova - Rovigo - Treviso - Venezia - Vicenza
Caratteristiche principali
Codice:
83.24.181225.RO
Città:
Fiesso Umbertiano (Ospitaletto)
Categoria:
Villa Bifamiliare
Locali:
4
Camere:
2
Bagni:
2
Mq:
205
Box:
1
Mq Box:
56,69
Piano:
Rialzato
Anno:
1993
Classe energetica:
G
Stato Immobile:
Buono
Grado:
Signorile
Posizione:
Periferia
Panorama:
Vista Aperta
Orientamento:
Est Nord Ovest
Lati Liberi:
3
Giardino:
Comune
Arredi:
Non Arredato
Tipo Soggiorno:
Sala da Pranzo
Tipo Cucina:
Abitabile
Riscaldamento:
Autonomo
Tipo Riscaldam.:
Caldaia
Tipo Impianto:
Radiatori
Fonte Energetica:
Gas
Acqua Calda:
Autonoma
Infissi:
Legno Doppio Vetro
Serramenti:
Buono
Persiana:
Oscurante Legno
Pavim. Giorno:
Cotto
Pavim. Notte:
Parquet
Pavim. Cucina:
Ceramica
Pavim. Bagno:
Ceramica
Accesso Disabili:
Nessuna Barriera
Accessori
Doppi Vetri
Ingresso Indipendente
Mappa
Via Trieste, 1555 - Fiesso Umbertiano (RO)
Richiedi informazioni
Invia
Cookie preference