Descrizione
Acquisto Assistito in Asta Giudiziaria
Per maggiori proposte visita il sito dell’agenzia: www.asteagency.com
Verifica fattibilità d’acquisto in PRE-ASTA
DATA ASTA : 26/05/26
UBICAZIONE E DESCRIZIONE:
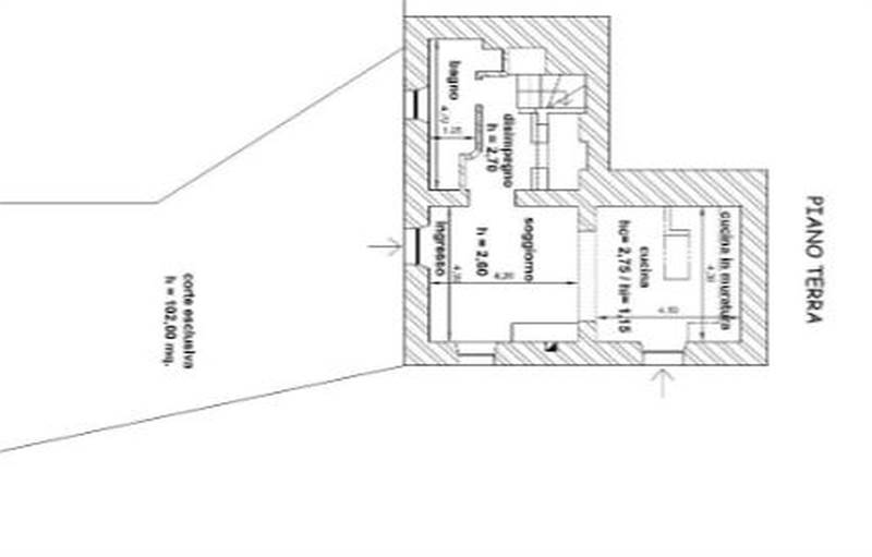
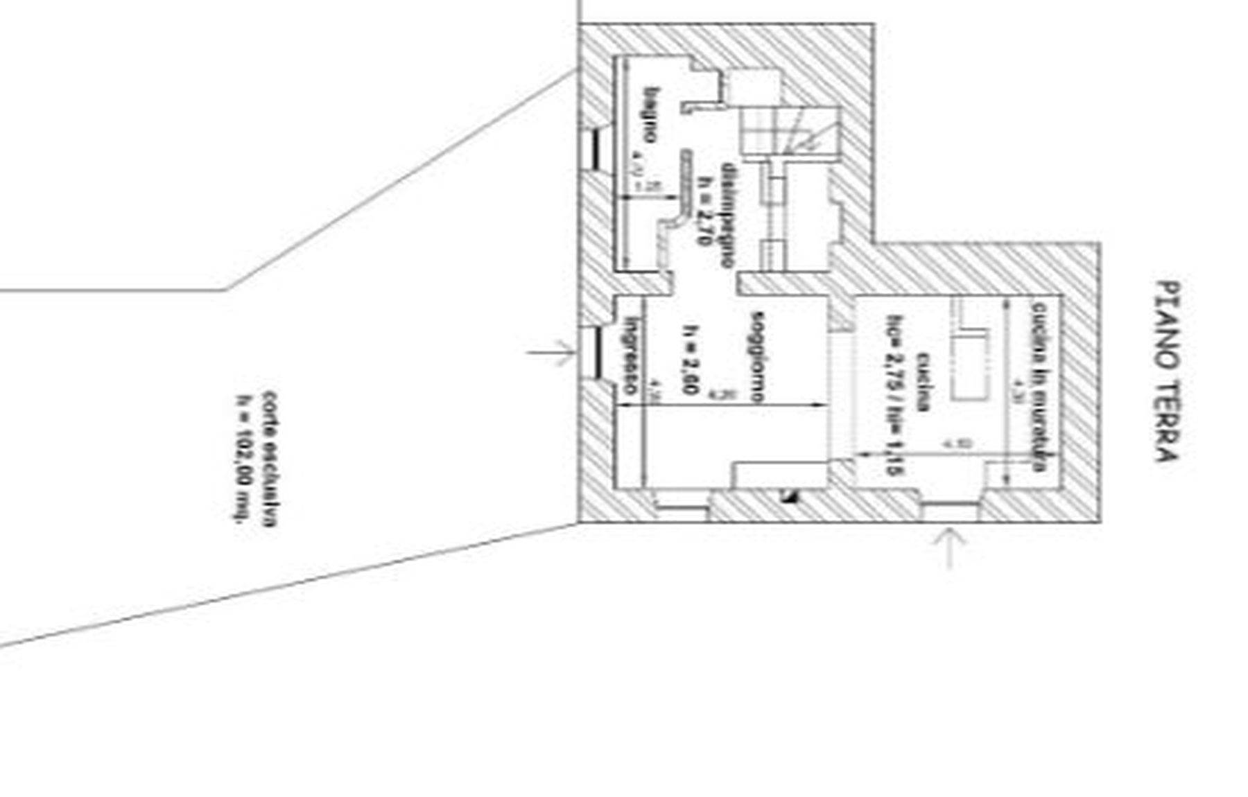
Indirizzo: Contrada Piano Cautolo n. 5 - Cugnoli(PE)
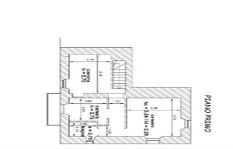
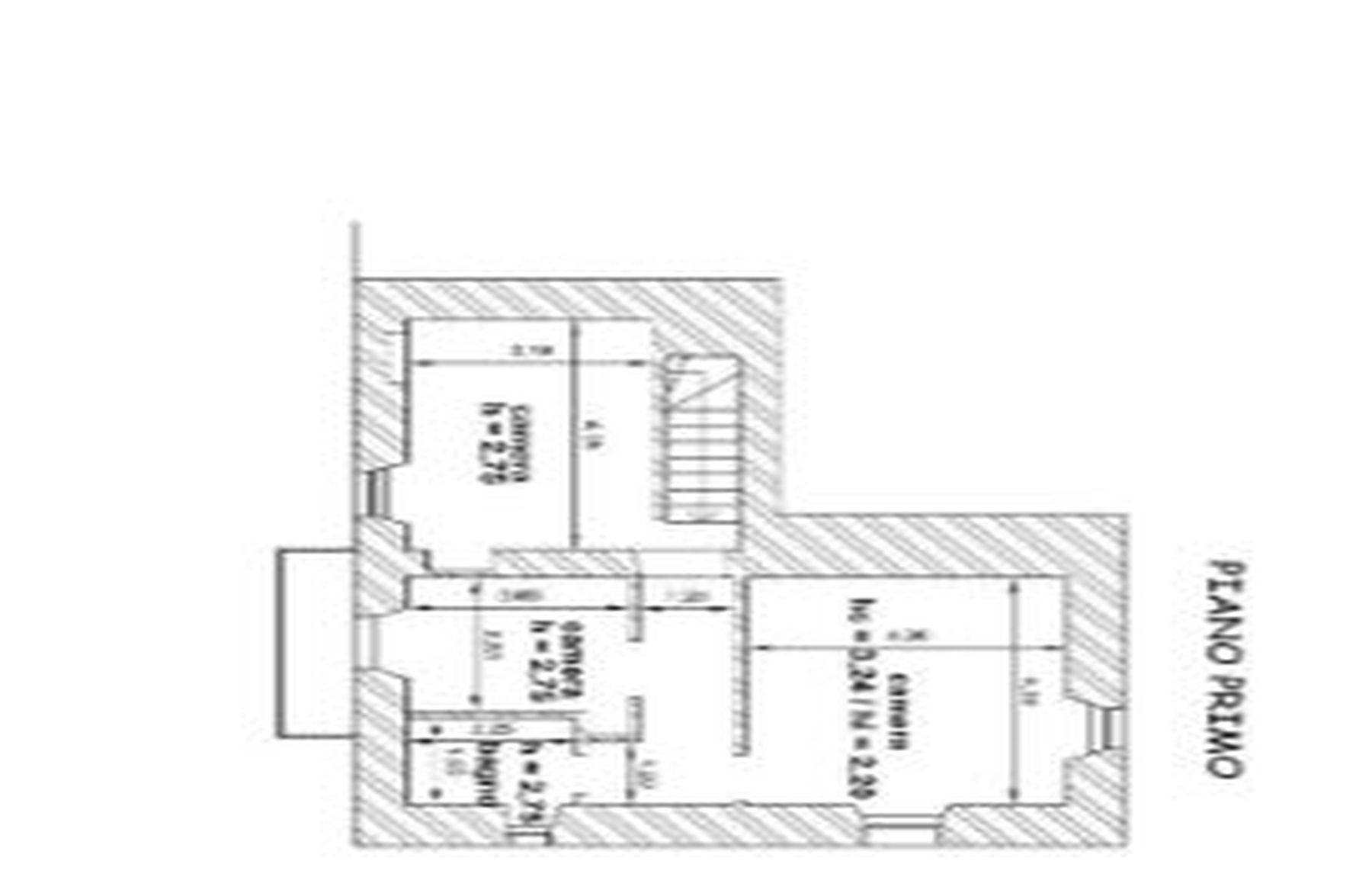
Descrizione sintetica:
Appartamento da cielo a terra con corte esterna (18,36mq), composto da un piano terra (zona giorno) e primo piano (zona notte). Al piano terra si trovano: cucina con mobili in muratura, zona pranzo con comodo camino, bagno, disimpegno e gradinata per accedere al piano superiore. Il piano primo, al quale si accede da suddetta gradinata interna, comprende: tre camere da letto, un disimpegno ed un servizio igienico.
Per un totale di 186,36 mq
Aste Agency SRL offre il servizio di assistenza per acquistare tramite un mutuo con banche convenzionate. Assiste ed indirizza, dall’aggiudicazione fino alla consegna delle chiavi.
PERCHE’ COMPRARE ALL’ASTA:
- Acquisto sicuro tramite Tribunale;
- Prezzo inferiore rispetto al mercato libero, quindi rata del mutuo più bassa;
- Banche convenzionate con i Tribunali;
- Nessun vincolo di prezzo nella rivendita e nella locazione.
Le Aste Giudiziarie sono soluzioni abitative a prezzi unici, in quanto si compera ad un prezzo inferiore, paragonato alla realtà proibitiva del mercato libero, e l’investimento immobiliare risulta essere sicuramente conveniente.
Per maggiori delucidazioni vi invitiamo a contattarci. Sarà nostra premura fissare un appuntamento in studio e trasferirvi tutte le informazioni necessarie per un’attenta e serena valutazione.
ASTE AGENCY SRL – Contattateci per un appuntamento presso uno dei nostri uffici o in videochiamata.