Acquisto Assistito - in Asta e Pre-Asta

In vendita
Appartamento
Lodi
167.625 €
Descrizione
Acquisto Assistito - in Asta e Pre-Asta
Per maggiori proposte visita il sito dell’agenzia: www.asteagency.com

Verifica fattibilità d’acquisto in PRE-ASTA

DATA ASTA: 11/03/2026

Disponibilità: Libero al Decreto di Trasferimento
UBICAZIONE E DESCRIZIONE:
VIALE LIGURIA N. 1/A e n. 1/B - 26900 - Lodi
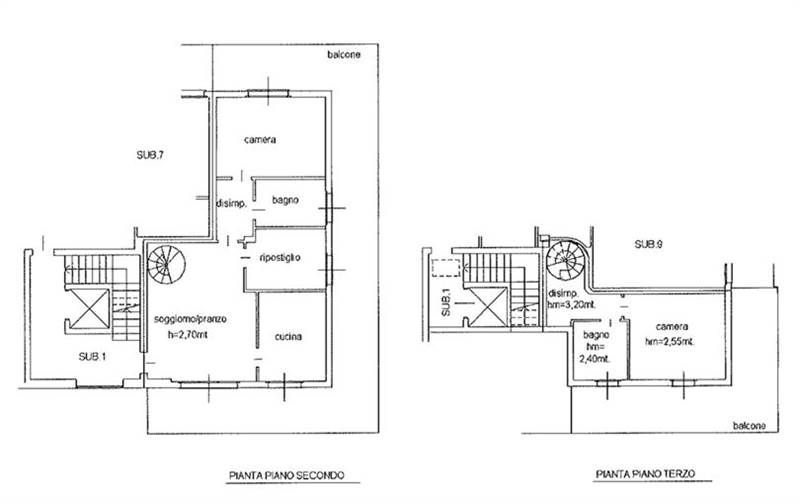
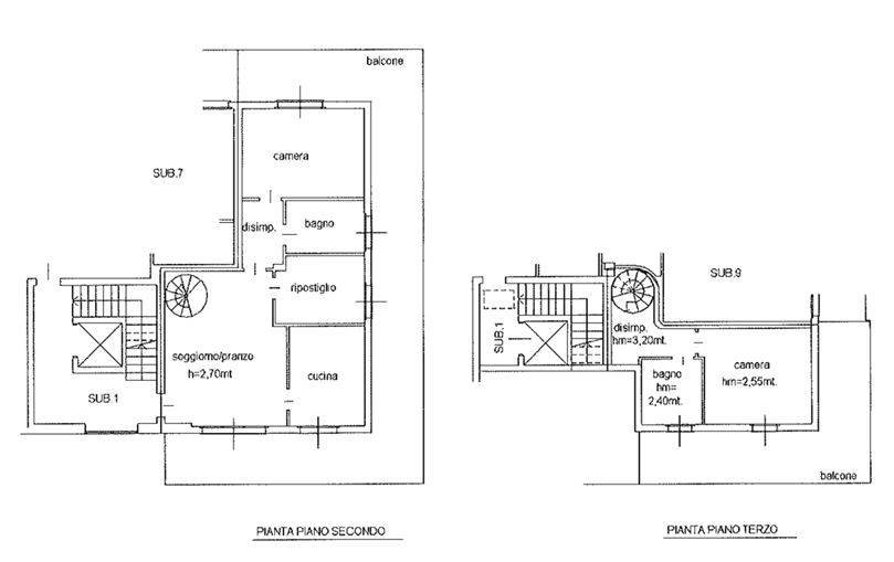
Descrizione sintetica: appartamento posto al piano secondo e terzo, composto da soggiorno, cucina, due camere, due servizi e due balconi di mq 82,00, al piano interrato un locale cantina di mq e due box di mq 15,00 e 16,00.

Aste Agency SRL offre il servizio di assistenza per acquistare tramite un mutuo con banche convenzionate. Assiste ed indirizza, dall’aggiudicazione fino alla consegna delle chi avi.

PERCHE’ COMPRARE ALL’ASTA:
- Acquisto sicuro tramite Tribunale;
- Prezzo inferiore rispetto al mercato libero, quindi rata del mutuo più bassa;
- Banche convenzionate con i Tribunali;
- Nessun vincolo di prezzo nella rivendita e nella locazione.

Le Aste Giudiziarie sono soluzioni abitative a prezzi unici, in quanto si compera ad un prezzo inferiore, paragonato alla realtà proibitiva del mercato libero, e l’investimento immobiliare risulta essere sicuramente conveniente.
Per maggiori delucidazioni vi invitiamo a contattarci. Sarà nostra premura fissare un appuntamento in studio e trasferirvi tutte le informazioni necessarie per un’attenta e serena valutazione.

ASTE AGENCY SRL – Contattateci per un appuntamento presso uno dei nostri uffici o in videochiamata.
Caratteristiche principali
Codice:
78.22.110326.LO
Città:
Lodi
Categoria:
Appartamento
Locali:
4
Camere:
2
Bagni:
2
Mq:
195
Box:
2
Terrazzi:
2
Piano:
2
Anno:
1967
Classe energetica:
G
Stato Immobile:
Buono
Grado:
Medio
Arredi:
Non Arredato
Tipo Cucina:
Abitabile
Riscaldamento:
Autonomo
Fonte Energetica:
Metano
Accesso Disabili:
No
Mappa
VIALE LIGURIA , 1/B - Lodi (LO)
Planimetrie
Richiedi informazioni
Invia
Cookie preference