Acquisto Assistito in Asta e Pre-Asta

In vendita
Appartamento
Canegrate
171.000 €
Descrizione
Acquisto Assistito in Asta e Pre-Asta
Per maggiori proposte visita il sito dell’agenzia: www.asteagency.com

Verifica fattibilità d’acquisto in PRE-ASTA

DATA ASTA: 18/06/2026

UBICAZIONE E DESCRIZIONE:
Via Leoncavallo 10, 20039 Canegrate (MI)


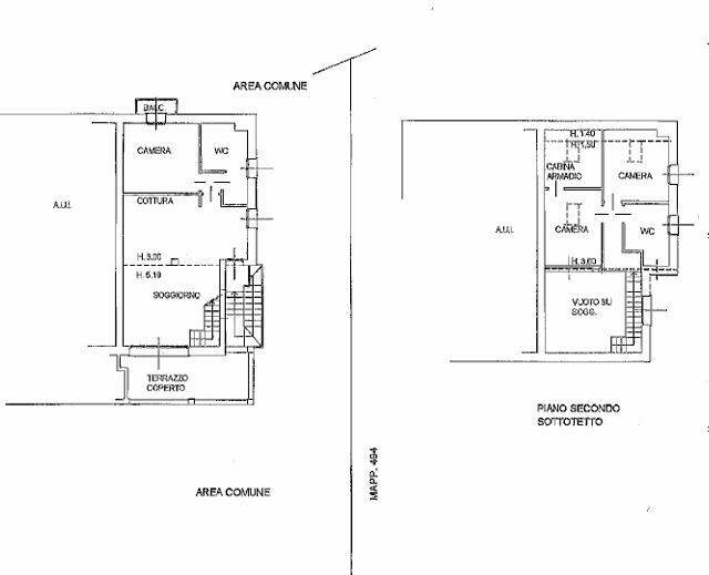
Descrizione sintetica: Appartamento disposto su due livelli, piano primo e piano secondo composto da soggiorno con angolo cottura, camera e bagno al primo piano, con ampio terrazzo coperto accessibile dal soggiorno e un balcone; al piano secondo/sottotetto due camere, cabina armadio, disimpegno e bagno. Terrazzo al piano primo di 19,94 mq. Balcone al piano primo di 1,92 mq.

Aste Agency SRL offre il servizio di assistenza per acquistare tramite un mutuo con banche convenzionate. Assiste ed indirizza, dall’aggiudicazione fino alla consegna delle chiavi.

PERCHE’ COMPRARE ALL’ASTA:
- Acquisto sicuro tramite Tribunale;
- Prezzo inferiore rispetto al mercato libero, quindi rata del mutuo più bassa;
- Banche convenzionate con i Tribunali;
- Nessun vincolo di prezzo nella rivendita e nella locazione.

Le Aste Giudiziarie sono soluzioni abitative a prezzi unici, in quanto si compera ad un prezzo inferiore, paragonato alla realtà proibitiva del mercato libero, e l’investimento immobiliare risulta essere sicuramente conveniente.
Per maggiori delucidazioni vi invitiamo a contattarci. Sarà nostra premura fissare un appuntamento in studio e trasferirvi tutte le informazioni necessarie per un’attenta e serena valutazione.

ASTE AGENCY SRL – Contattateci per un appuntamento presso uno dei nostri uffici o in videochiamata.
Caratteristiche principali
Codice:
73.24.180626.MI
Città:
Canegrate
Categoria:
Appartamento
Locali:
4
Camere:
3
Bagni:
2
Mq:
145
Balconi:
1
Terrazzi:
1
Piano:
1
Anno:
1977
Classe energetica:
G
Stato Immobile:
Buono
Grado:
Medio
Tipo Cucina:
Angolo Cottura
Riscaldamento:
Autonomo
Tipo Impianto:
Radiatori
Fonte Energetica:
Metano
Accesso Disabili:
No
Mappa
Via ruggero leoncavallo , 10 - Canegrate (MI)
Planimetrie
Richiedi informazioni
Invia
Cookie preference