Acquisto Assistito in Asta e Pre-Asta

In vendita
Appartamento
Cassano delle Murge
23.500 €
Descrizione
Acquisto Assistito in Asta Giudiziaria
Per maggiori proposte visita il sito dell’agenzia: www.asteagency.com

Verifica fattibilità d’acquisto in PRE-ASTA

DATA ASTA : 16/06/26

UBICAZIONE E DESCRIZIONE:
Via Antonio Gramsci, 72 Cassano delle Murge BA

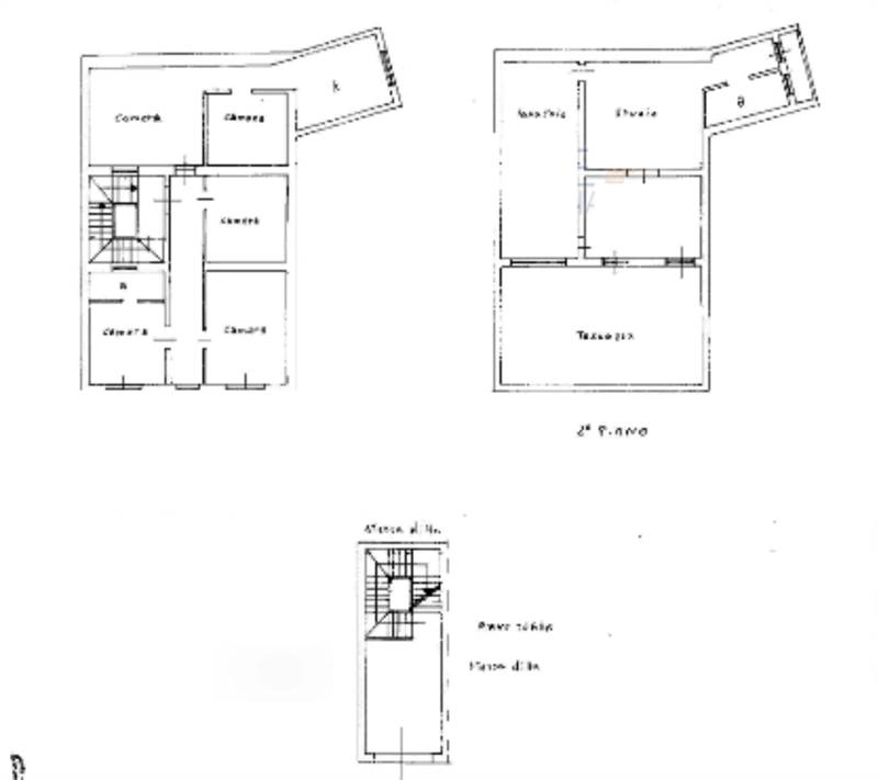
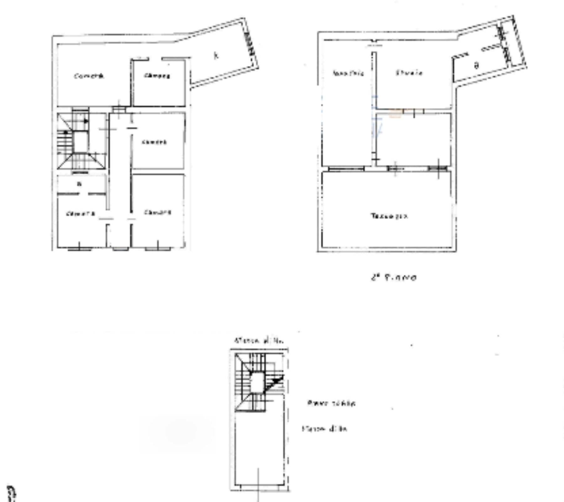
Descrizione sintetica: appartamento posto al piano primo, con accesso da vano scale comune al piano terra. Composto presumibilmente da ingresso, soggiorno/pranzo, cucina, disimpegno, due camere da letto e servizi igienici, con distribuzione interna tipica di unità residenziale di tipo economico.


Aste Agency SRL offre il servizio di assistenza per acquistare tramite un mutuo con banche convenzionate. Assiste ed indirizza, dall’aggiudicazione fino alla consegna delle chiavi.

PERCHE’ COMPRARE ALL’ASTA:
- Acquisto sicuro tramite Tribunale;
- Prezzo inferiore rispetto al mercato libero, quindi rata del mutuo più bassa;
- Banche convenzionate con i Tribunali;
- Nessun vincolo di prezzo nella rivendita e nella locazione.

Le Aste Giudiziarie sono soluzioni abitative a prezzi unici, in quanto si compera ad un prezzo inferiore, paragonato alla realtà proibitiva del mercato libero, e l’investimento immobiliare risulta essere sicuramente conveniente.
Per maggiori delucidazioni vi invitiamo a contattarci. Sarà nostra premura fissare un appuntamento in studio e trasferirvi tutte le informazioni necessarie per un’attenta e serena valutazione.

ASTE AGENCY SRL – Contattateci per un appuntamento presso uno dei nostri uffici o in videochiamata.
Caratteristiche principali
Codice:
73.20.1.160626.BA
Città:
Cassano delle Murge
Categoria:
Appartamento
Locali:
4
Camere:
2
Bagni:
1
Mq:
81
Piano:
1
Anno:
1971
Classe energetica:
G
Stato Immobile:
Abitabile
Grado:
Economico
Tipo Cucina:
Abitabile
Riscaldamento:
No
Accesso Disabili:
No
Mappa
via Antonio Gramsci , 72 - Cassano delle Murge (BA)
Planimetrie
Richiedi informazioni
Invia
Cookie preference