Acquisto Assistito in Asta e Pre-Asta

In vendita
Appartamento
Stra (San Pietro di Stra)
74.624 €
Descrizione
Acquisto Assistito in Asta Giudiziaria
Per maggiori proposte visita il sito dell’agenzia: www.asteagency.com

Verifica fattibilità d’acquisto in PRE-ASTA

DATA ASTA : 28/0426

UBICAZIONE E DESCRIZIONE:
San Pietro di Stra, Via Guido Galli, 10 Stra VE

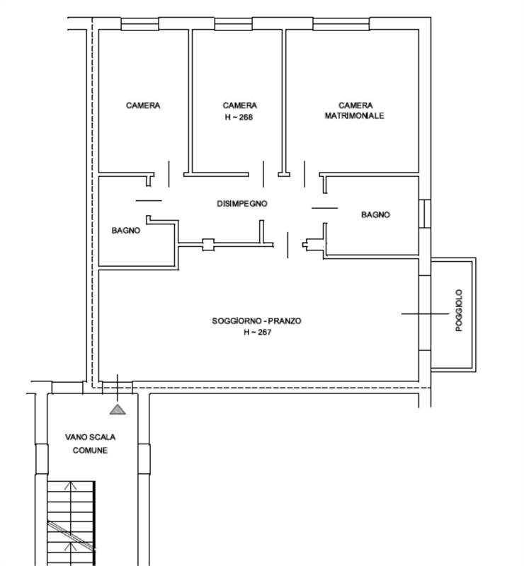
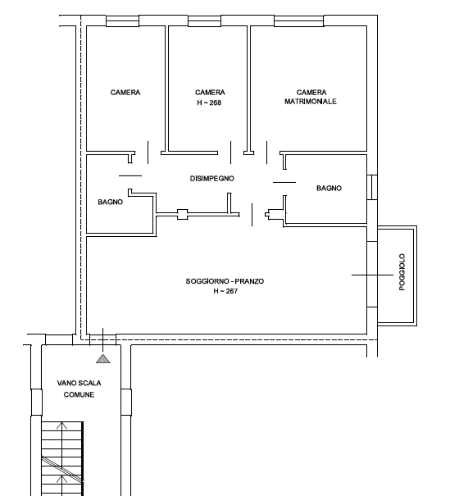
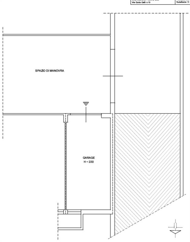
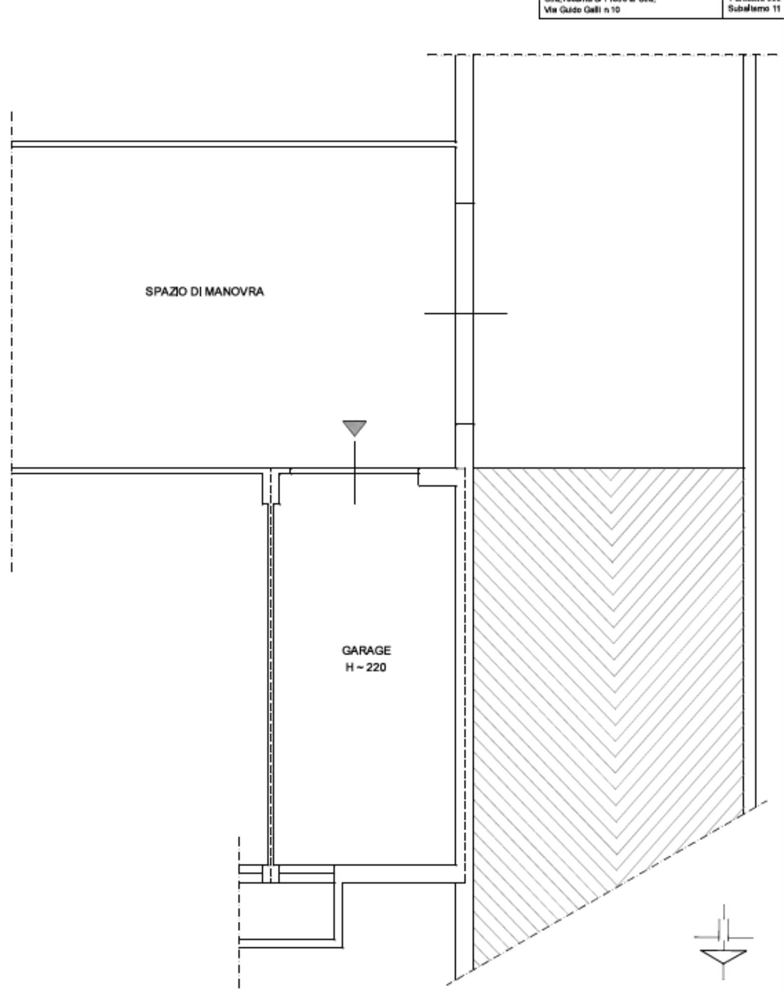
Descrizione sintetica: appartamento sviluppato al piano terra, interno 3, con locale ad uso ripostiglio ubicato al piano interrato, facente parte del Condominio denominato “Stella”, con garage sviluppato al piano interrato, della superficie catastale totale di 26,00. L'appartamento è composto da ingresso in soggiorno con zona pranzo e angolo cottura, balcone con accesso dal soggiorno, disimpegno, tre camere, due bagni.


Aste Agency SRL offre il servizio di assistenza per acquistare tramite un mutuo con banche convenzionate. Assiste ed indirizza, dall’aggiudicazione fino alla consegna delle chiavi.

PERCHE’ COMPRARE ALL’ASTA:
- Acquisto sicuro tramite Tribunale;
- Prezzo inferiore rispetto al mercato libero, quindi rata del mutuo più bassa;
- Banche convenzionate con i Tribunali;
- Nessun vincolo di prezzo nella rivendita e nella locazione.

Le Aste Giudiziarie sono soluzioni abitative a prezzi unici, in quanto si compera ad un prezzo inferiore, paragonato alla realtà proibitiva del mercato libero, e l’investimento immobiliare risulta essere sicuramente conveniente.
Per maggiori delucidazioni vi invitiamo a contattarci. Sarà nostra premura fissare un appuntamento in studio e trasferirvi tutte le informazioni necessarie per un’attenta e serena valutazione.

ASTE AGENCY SRL – Contattateci per un appuntamento presso uno dei nostri uffici o in videochiamata.
Caratteristiche principali
Codice:
71.25.280426.VE
Città:
Stra (San Pietro di Stra)
Categoria:
Appartamento
Locali:
4
Camere:
3
Bagni:
2
Mq:
106
Box:
1
Mq Box:
26
Balconi:
2
Piano:
Terra
Anno:
1991
Classe energetica:
G
Stato Immobile:
Buono
Grado:
Medio
Tipo Cucina:
Angolo Cottura
Riscaldamento:
Autonomo
Tipo Impianto:
Radiatori
Fonte Energetica:
Metano
Raffrescamento:
Split
Accesso Disabili:
No
Accessori
Aria Condizionata
Ripostiglio
Mappa
via guido galli, 10 - Stra (VE)
Richiedi informazioni
Invia
Cookie preference