Acquisto Assistito in Asta Giudiziaria

In vendita
Hotel
Trento (Sardagna)
220.500 €
Descrizione
Acquisto Assistito in Asta Giudiziaria
Per maggiori proposte visita il sito dell’agenzia: www.asteagency.com

Verifica fattibilità d’acquisto in Pre-Asta
DATA ASTA : 16/12/2025

Disponibilità: Libero al decreto di trasferimento

UBICAZIONE E DESCRIZIONE:
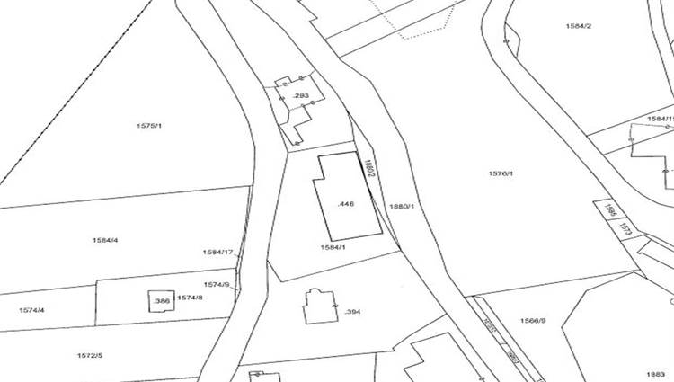
Indirizzo: Frazione Sardagna, Loc. Vaneze, Strada di Vaneze 33 - 38100 - Trento (TN)

Descrizione sintetica:
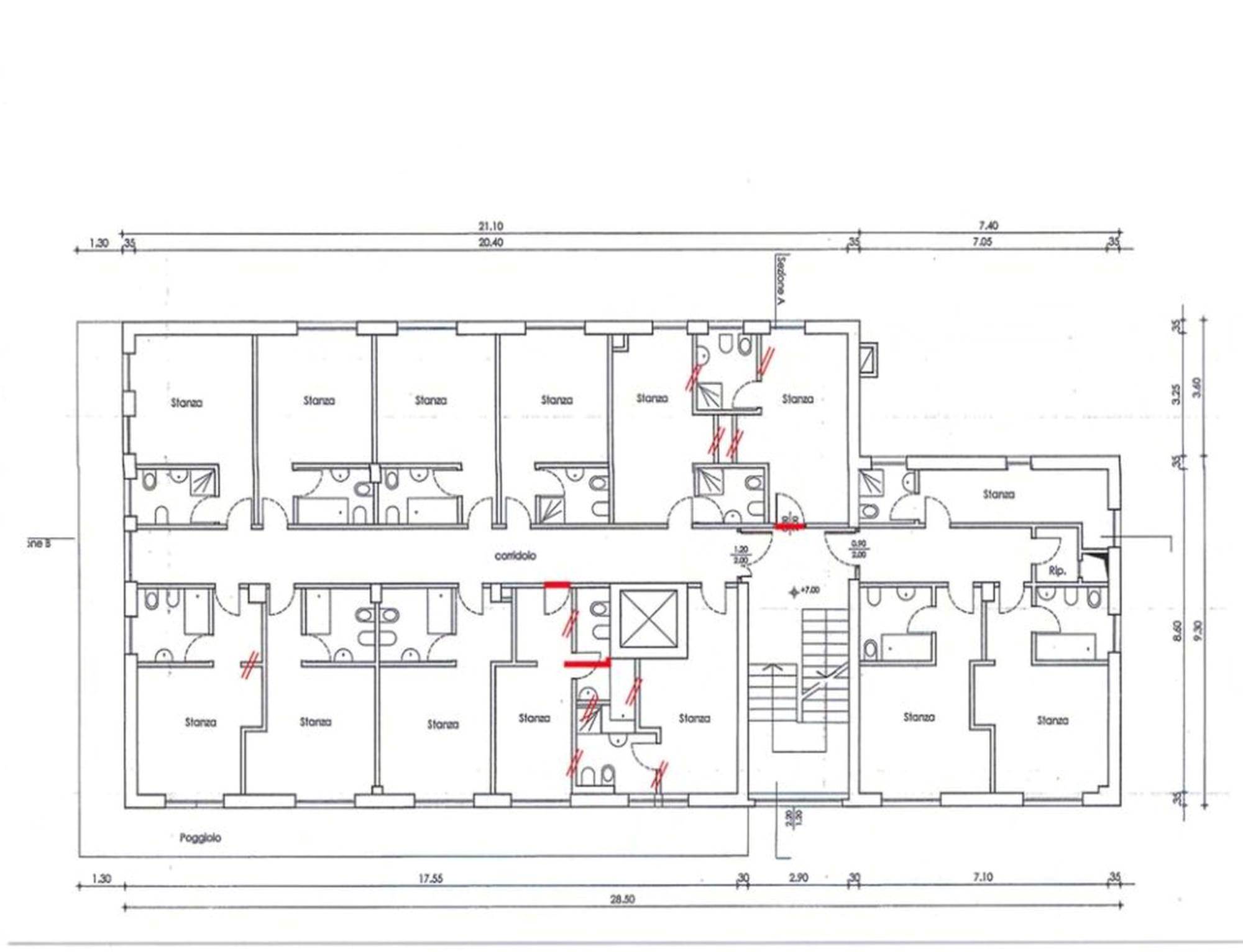
Trattasi di un edificio sviluppato su 5 livelli fuori terra ad uso alberghiero sito in Strada di Vaneze 33, Frazione Sardagna, Loc. Vaneze.
L'immobile è costituito da:
- a piano terra;
ingresso e reception, ascensore, sala pluriuso, deposito sci, cantina, ufficio, 2 stanze per il personale, lavanderia, bagno, depositi, disimpegno, filtro per la centrale termica, centrale termica, due scale ascendenti al primo piano, intercapedine.
- a primo piano;
sala da pranzo, bar, cucina, due wc, disimpegno, sala tv, ascensore scala ascendente al secondo piano, terrazino con scala antincendio, intercapedine.
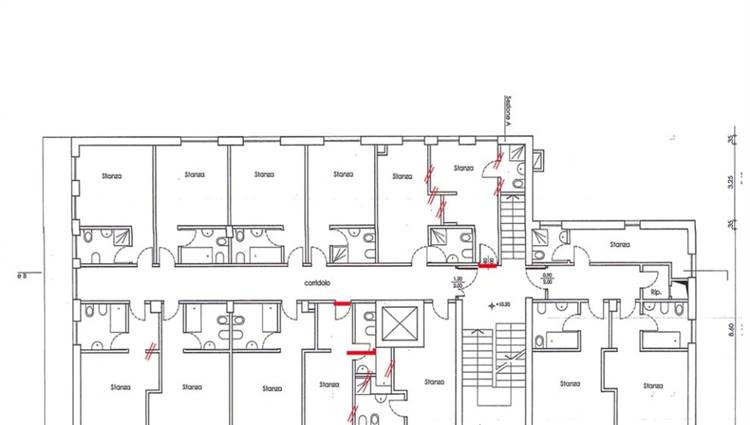
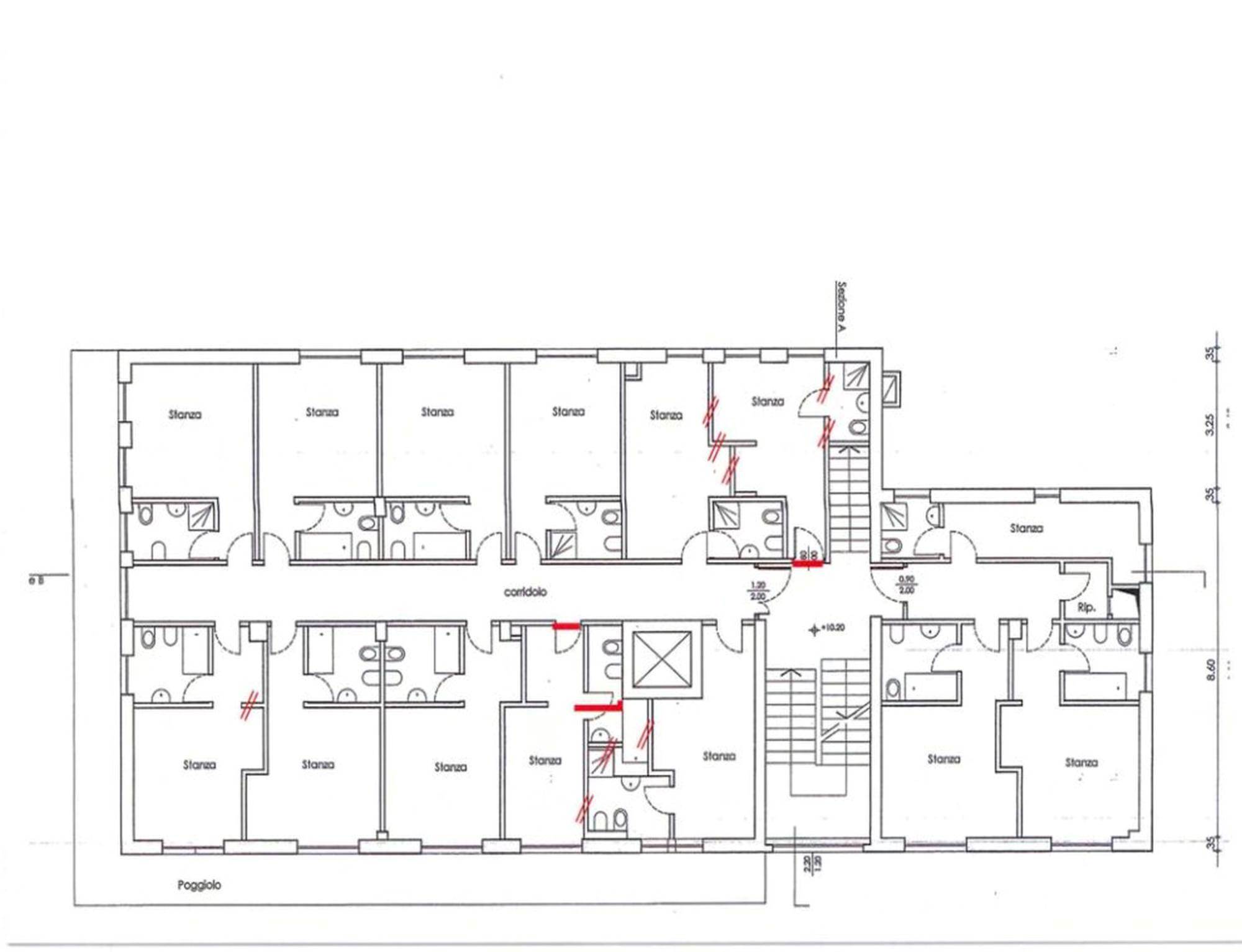
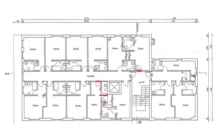
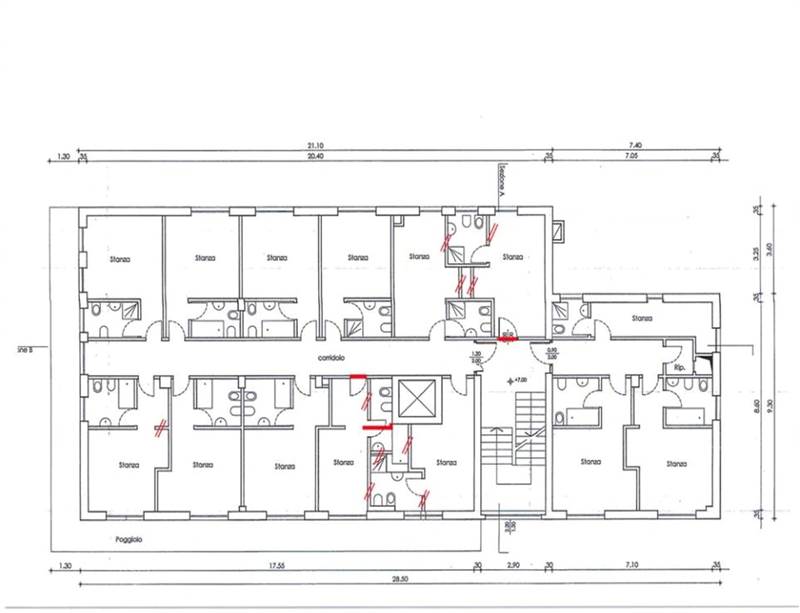
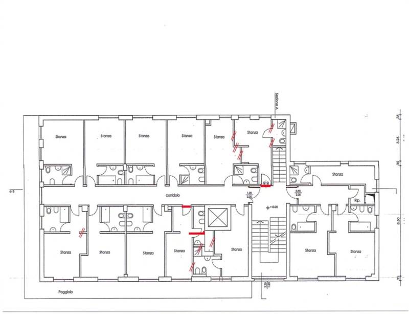
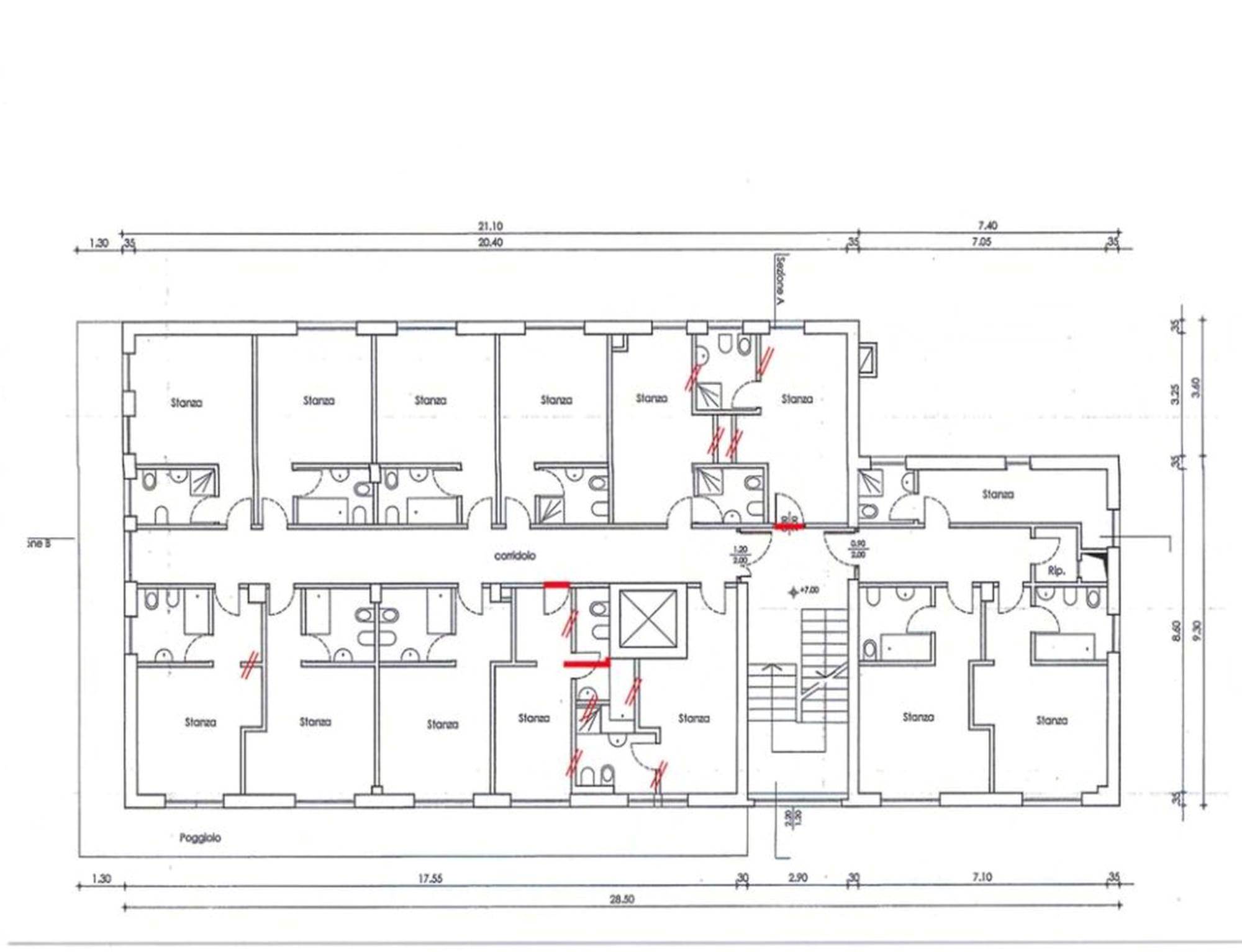
- a secondo piano:
12 stanze con bagno, ripostiglio, ascensore e scala ascendente al terzo piano.
- a terzo piano:
12 stanze con bagno, ripostiglio, ascensore, scala ascendente al quarto piano.
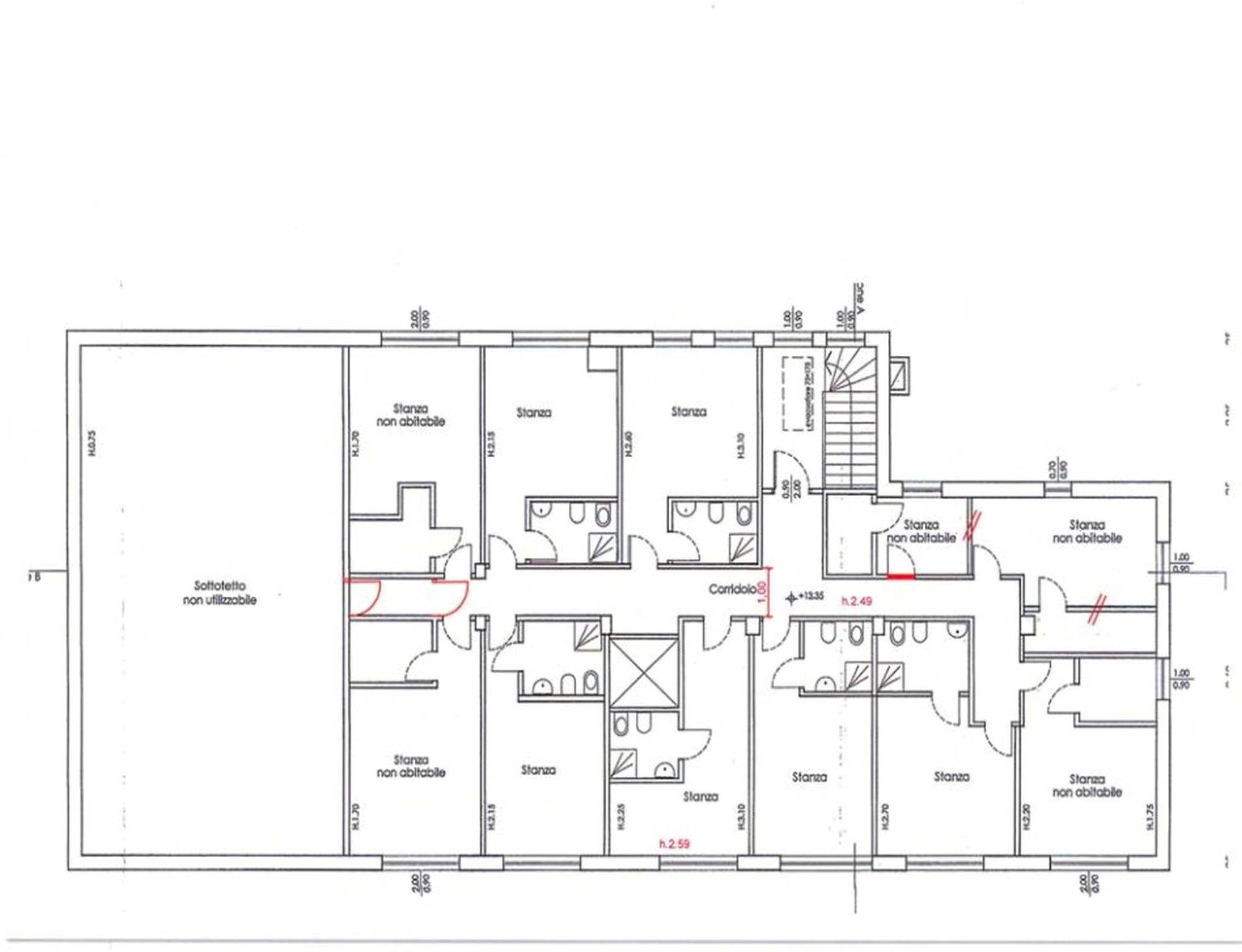
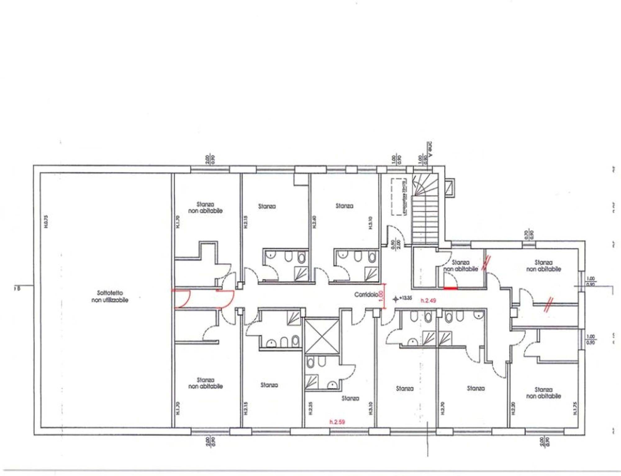
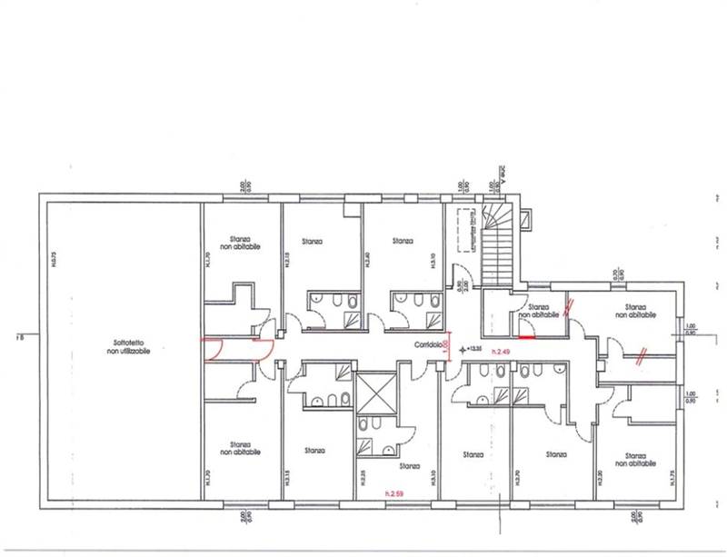
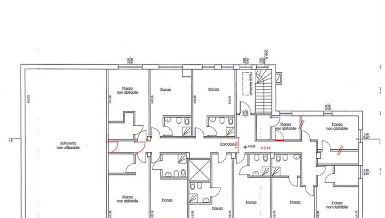
a quarto piano- sottotetto:
10 stanze con bagno, corridoio, sottotetto ad uso deposito.

Superficie lorda commerciale residenziale mq: 1722,22

Home Agency offre il servizio di assistenza per acquistare tramite un mutuo con banche convenzionate. Assiste ed indirizza, dall’aggiudicazione fino alla consegna delle chiavi.

PERCHE’ COMPRARE ALL’ASTA:
- Acquisto sicuro tramite Tribunale;
- Prezzo inferiore rispetto al mercato libero, quindi rata del mutuo più bassa;
- Banche convenzionate con i Tribunali;
- Nessun vincolo di prezzo nella rivendita e nella locazione.

Le Aste Giudiziarie sono soluzioni abitative a prezzi unici, in quanto si compera ad un prezzo inferiore, paragonato alla realtà proibitiva del mercato libero, e l’investimento immobiliare risulta essere sicuramente conveniente.
Per maggiori delucidazioni vi invitiamo a contattarci. Sarà nostra premura fissare un appuntamento in studio e trasferirvi tutte le informazioni necessarie per un’attenta e serena valutazione.

VERONA (VR) Vicolo Dietro Caserma Chiodo n. 22/C - previo appuntamento
Bologna - Padova - Rovigo - Treviso - Venezia - Vicenza
Caratteristiche principali
Codice:
71.20.1.161225.TN
Città:
Trento (Sardagna)
Categoria:
Hotel
Locali:
47
Camere:
34
Bagni:
34
Mq:
1722,22
Piano:
Terra
Anno:
1963
Anno ristrutturazione:
2006
Classe energetica:
G
Stato Immobile:
Buono
Grado:
Signorile
Posizione:
Montagna
Panorama:
Vista Monti
Lati Liberi:
4
Giardino:
Privato
Arredi:
Non Arredato
Riscaldamento:
Autonomo
Tipo Riscaldam.:
Caldaia
Tipo Impianto:
Radiatori
Fonte Energetica:
Gasolio
Acqua Calda:
Autonoma
Raffrescamento:
Fan Coil
Infissi:
Legno Doppio Vetro
Serramenti:
Buono
Persiana:
Tapparella PVC
Accesso Disabili:
Nessuna Barriera
Accesso interno disabili:
Pieno accesso
Appartamenti:
Dieci o Più
Mappa
Strada di Vaneze , 33 - Trento (TN)
Richiedi informazioni
Invia
Cookie preference