Acquisto Assistito - in Asta e Pre-Asta

In vendita
Appartamento
Nogara
72.000 €
Descrizione
Acquisto Assistito in Asta Giudiziaria
Per maggiori proposte visita il sito dell’agenzia: www.asteagency.com

Verifica fattibilità d’acquisto in PRE-ASTA

DATA ASTA : 11/06/26

UBICAZIONE E DESCRIZIONE:
Loc. Montalto, Via Spin, 14 Nogara VR

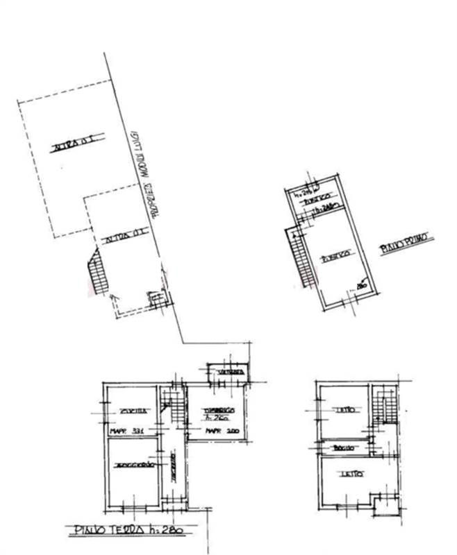
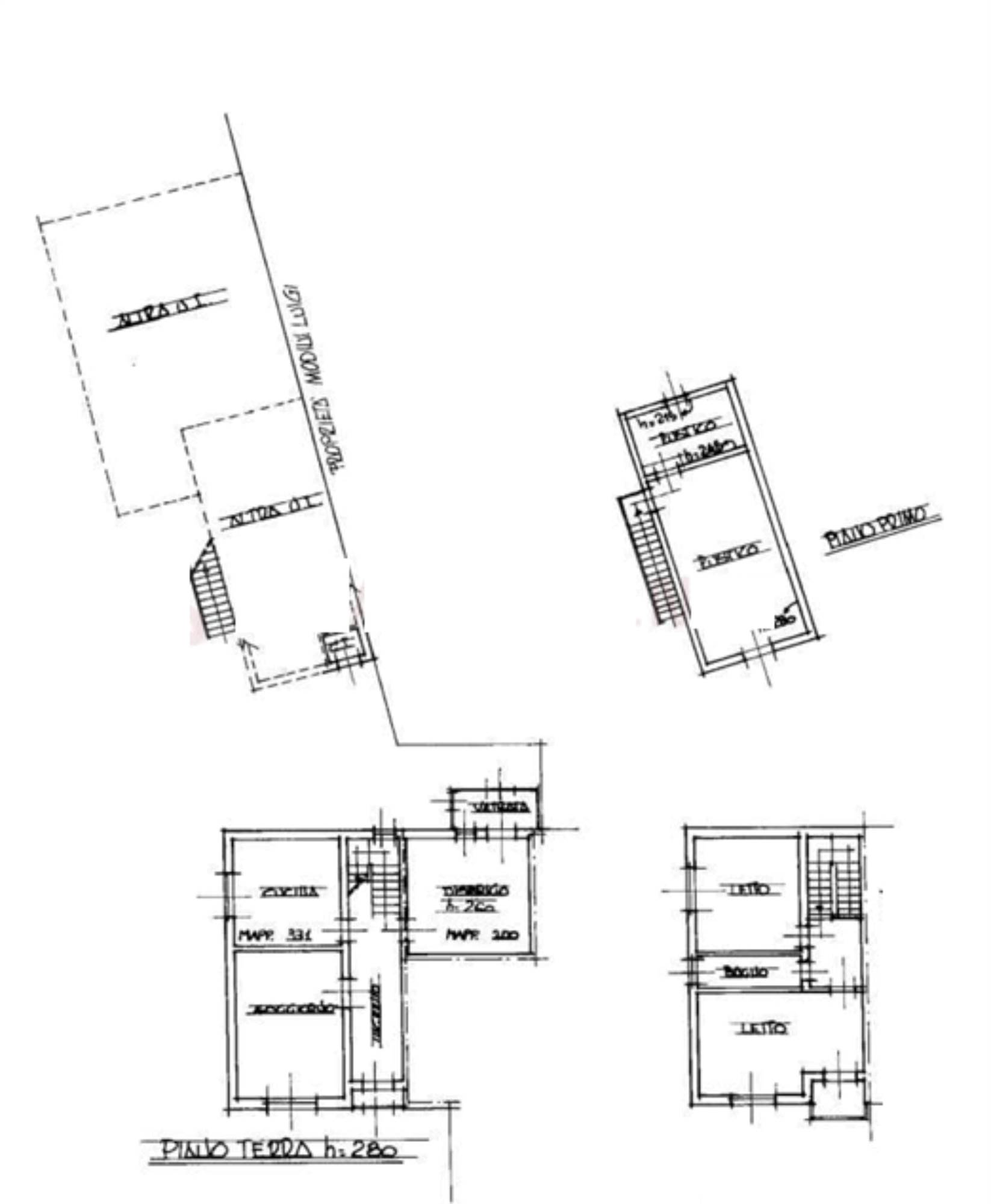
Descrizione sintetica: abitazione unifamiliare disposta su due piani oltre a rustico in corpo di fabbrica distinto, di un’autorimessa di mq 35,00, cantina di mq 9,00 e di un deposito di ma 56,00 con corte, nonché piena proprietà di terreno agricolo non coltivato di 632,00 mq. Si compone di soggiorno, cucina, pranzo, due camere e doppio bagno. Locale rustico in corpo staccato.


Aste Agency SRL offre il servizio di assistenza per acquistare tramite un mutuo con banche convenzionate. Assiste ed indirizza, dall’aggiudicazione fino alla consegna delle chiavi.

PERCHE’ COMPRARE ALL’ASTA:
- Acquisto sicuro tramite Tribunale;
- Prezzo inferiore rispetto al mercato libero, quindi rata del mutuo più bassa;
- Banche convenzionate con i Tribunali;
- Nessun vincolo di prezzo nella rivendita e nella locazione.

Le Aste Giudiziarie sono soluzioni abitative a prezzi unici, in quanto si compera ad un prezzo inferiore, paragonato alla realtà proibitiva del mercato libero, e l’investimento immobiliare risulta essere sicuramente conveniente.
Per maggiori delucidazioni vi invitiamo a contattarci. Sarà nostra premura fissare un appuntamento in studio e trasferirvi tutte le informazioni necessarie per un’attenta e serena valutazione.

ASTE AGENCY SRL – Contattateci per un appuntamento presso uno dei nostri uffici o in videochiamata.
Caratteristiche principali
Codice:
70.25.110626.VR
Città:
Nogara
Categoria:
Appartamento
Locali:
6
Camere:
3
Bagni:
2
Mq:
214
Box:
1
Piano:
Terra
Anno:
1967
Classe energetica:
G
Stato Immobile:
Buono
Grado:
Medio
Arredi:
Non Arredato
Tipo Cucina:
Abitabile
Riscaldamento:
Autonomo
Fonte Energetica:
Metano
Raffrescamento:
Split
Accesso Disabili:
No
Accessori
Aria Condizionata
Mappa
Via Spin , 14 - Nogara (VR)
Planimetrie
Richiedi informazioni
Invia
Cookie preference