Descrizione
Acquisto Assistito in Asta Giudiziaria
Per maggiori proposte visita il sito dell’agenzia: www.asteagency.com
Verifica fattibilità d’acquisto in PRE-ASTA
DATA ASTA : 07/04/26
UBICAZIONE E DESCRIZIONE:
Via di Mezzo, 31 A/B Castelmassa RO
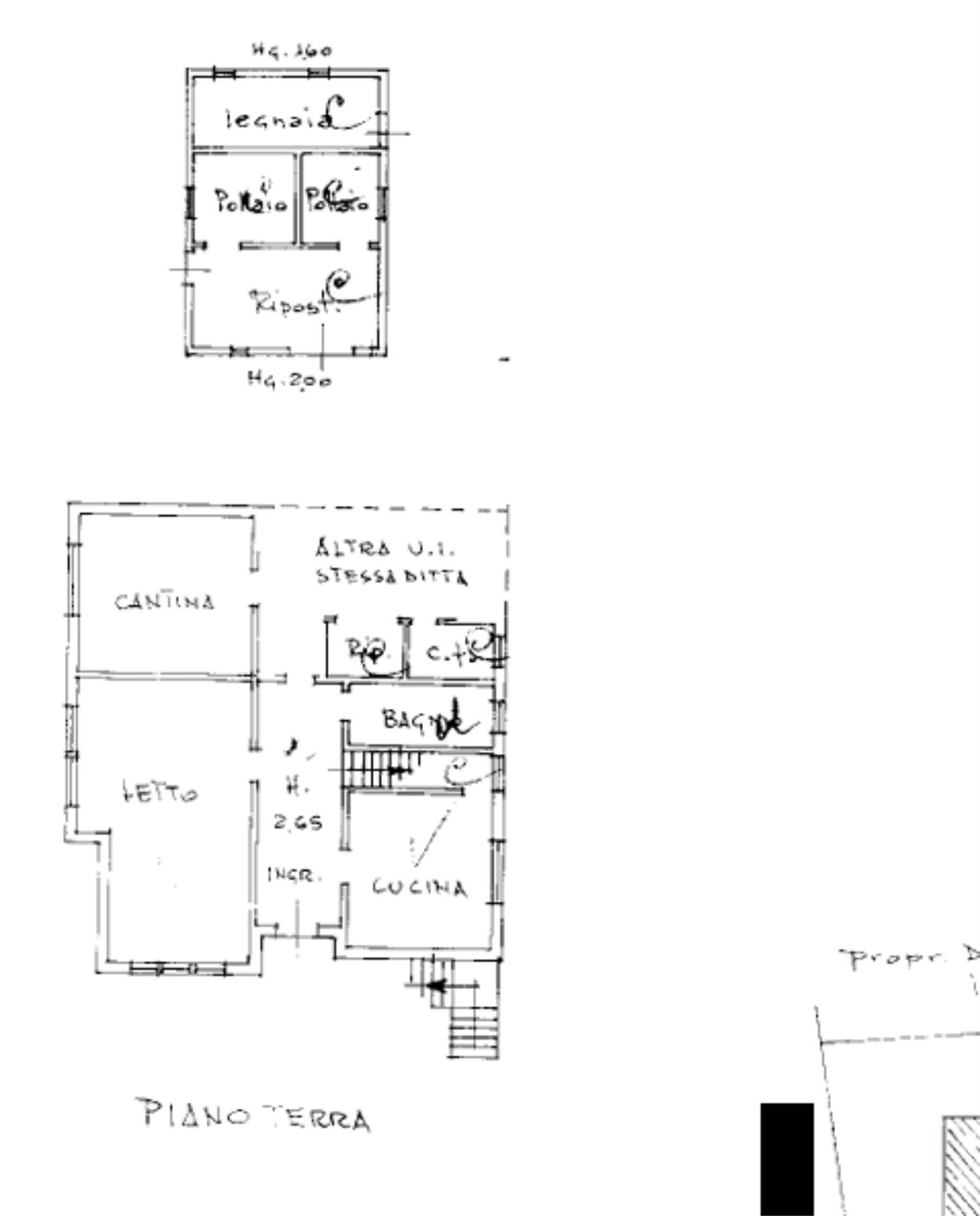
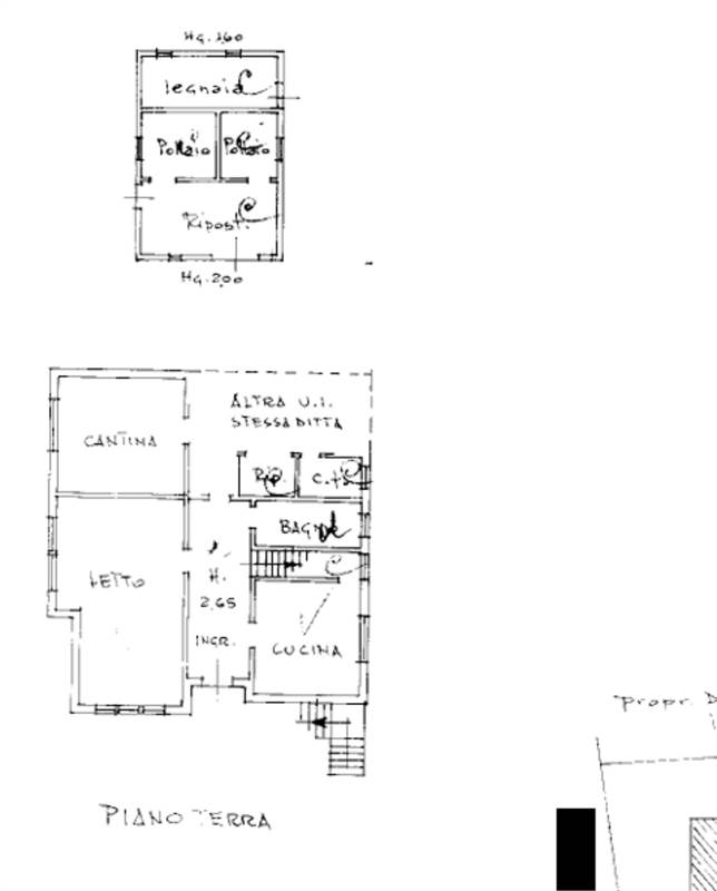
Descrizione sintetica: abitazione di tipo civile con area scoperta composta da due unità immobiliari collegate mediante scala interna, una posta al piano terra della superficie di 114,00 mq e l'altra al piano terra rialzato, della superficie di 75,00 mq). L'appartamento posto al piano terra rialzato si compone di soggiorno, cucina, due camere e bagno. L'appartamento al piano terra pollaio, legnaia, cantina, cucina con angolo soggiorno, camera e bagno. Terreno agricolo di mq 1.875,00.
Aste Agency SRL offre il servizio di assistenza per acquistare tramite un mutuo con banche convenzionate. Assiste ed indirizza, dall’aggiudicazione fino alla consegna delle chiavi.
PERCHE’ COMPRARE ALL’ASTA:
- Acquisto sicuro tramite Tribunale;
- Prezzo inferiore rispetto al mercato libero, quindi rata del mutuo più bassa;
- Banche convenzionate con i Tribunali;
- Nessun vincolo di prezzo nella rivendita e nella locazione.
Le Aste Giudiziarie sono soluzioni abitative a prezzi unici, in quanto si compera ad un prezzo inferiore, paragonato alla realtà proibitiva del mercato libero, e l’investimento immobiliare risulta essere sicuramente conveniente.
Per maggiori delucidazioni vi invitiamo a contattarci. Sarà nostra premura fissare un appuntamento in studio e trasferirvi tutte le informazioni necessarie per un’attenta e serena valutazione.
ASTE AGENCY SRL – Contattateci per un appuntamento presso uno dei nostri uffici o in videochiamata.