Acquisto Assistito - in Asta e Pre-Asta

In vendita
Appartamento
Verdellino
88.722 €
Descrizione
Acquisto Assistito in Asta Giudiziaria
Per maggiori proposte visita il sito dell’agenzia: www.asteagency.com

Verifica fattibilità d’acquisto in PRE-ASTA


DATA ASTA : 26/03/26


Disponibilità: Libero al decreto di trasferimento

UBICAZIONE E DESCRIZIONE:
Indirizzo: Via Enrico Fermi 1 24040 Verdellino BG

Descrizione sintetica:
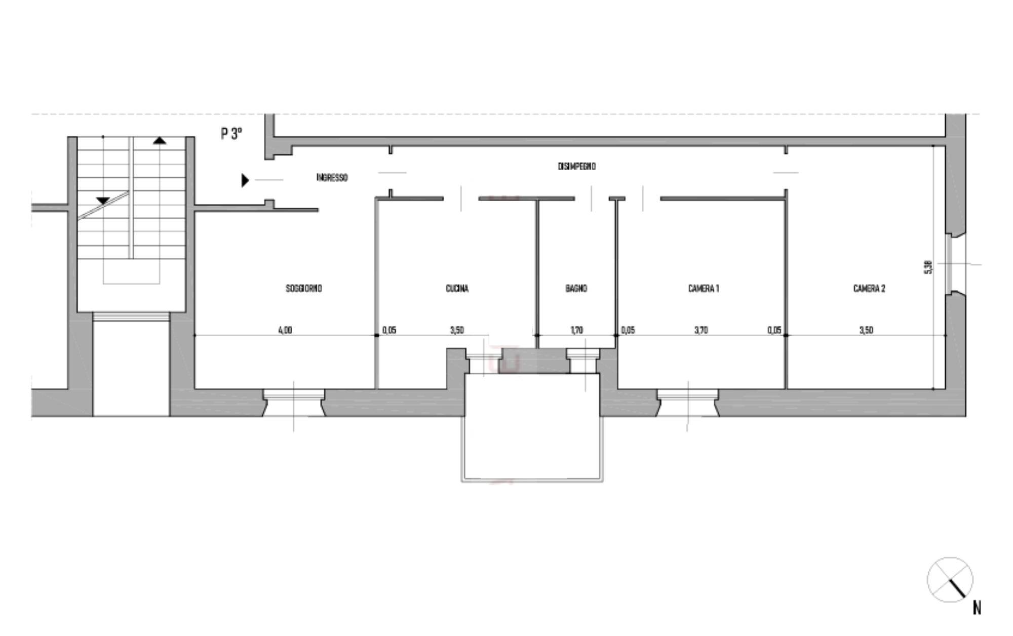
Appartamento posto a piano terzo di un condominio di 16 unità, dotato di scensore.
L’appartamento è composto da ingresso, soggiorno con cucina a vista, disimpegno, due camere da letto, un balcone di mq 7,00 e un bagno. Completa la proprietà un balcone cui si accede dalla cucina. Garage al piano terra di mq 20,00.


Aste Agency SRL offre il servizio di assistenza per acquistare tramite un mutuo con banche convenzionate. Assiste ed indirizza, dall’aggiudicazione fino alla consegna delle chiavi.

PERCHE’ COMPRARE ALL’ASTA:
- Acquisto sicuro tramite Tribunale;
- Prezzo inferiore rispetto al mercato libero, quindi rata del mutuo più bassa;
- Banche convenzionate con i Tribunali;
- Nessun vincolo di prezzo nella rivendita e nella locazione.

Le Aste Giudiziarie sono soluzioni abitative a prezzi unici, in quanto si compera ad un prezzo inferiore, paragonato alla realtà proibitiva del mercato libero, e l’investimento immobiliare risulta essere sicuramente conveniente.
Per maggiori delucidazioni vi invitiamo a contattarci. Sarà nostra premura fissare un appuntamento in studio e trasferirvi tutte le informazioni necessarie per un’attenta e serena valutazione.

ASTE AGENCY SRL – Contattateci per un appuntamento presso uno dei nostri uffici o in videochiamata.
Caratteristiche principali
Codice:
598.24.260326.BG
Città:
Verdellino
Categoria:
Appartamento
Locali:
3
Camere:
1
Bagni:
1
Mq:
122
Balconi:
1
Piano:
3
Anno:
1968
Classe energetica:
G
Stato Immobile:
Buono
Grado:
Medio
Lati Liberi:
3
Arredi:
Non Arredato
Tipo Cucina:
Abitabile
Riscaldamento:
Autonomo
Fonte Energetica:
Metano
Accesso Disabili:
No
Mappa
Via Enrico Fermi , 1 - Verdellino (BG)
Virtual tour
Richiedi informazioni
Invia
Cookie preference