Acquisto Assistito - in Asta e Pre-Asta

In vendita
Appartamento
Porto Sant'Elpidio
75.537 €
Descrizione
Acquisto Assistito in Asta Giudiziaria
Per maggiori proposte visita il sito dell’agenzia: www.asteagency.com

Verifica fattibilità d’acquisto in PRE-ASTA


DATA ASTA : 26/11/25


Disponibilità: Libero al decreto di trasferimento

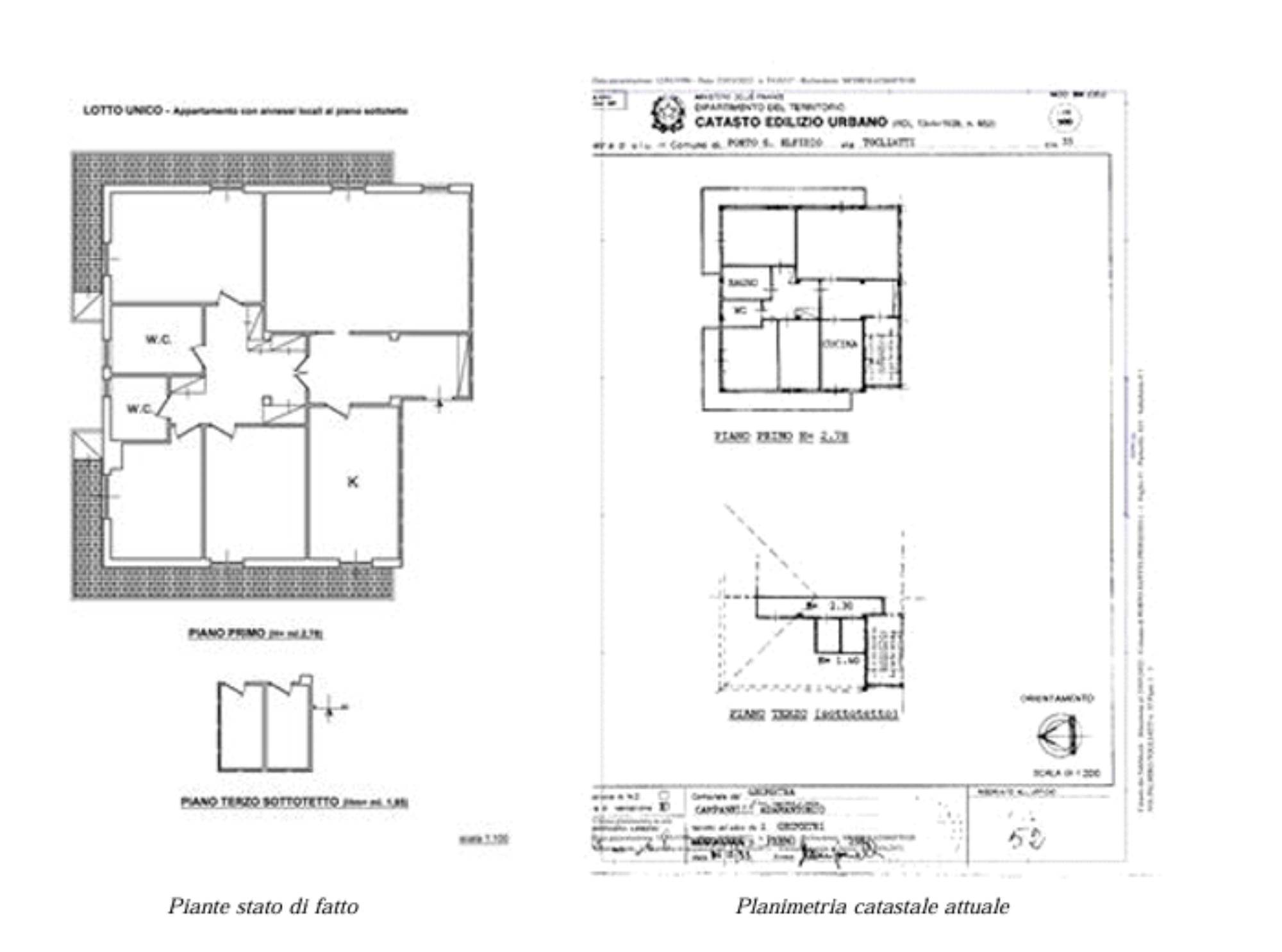
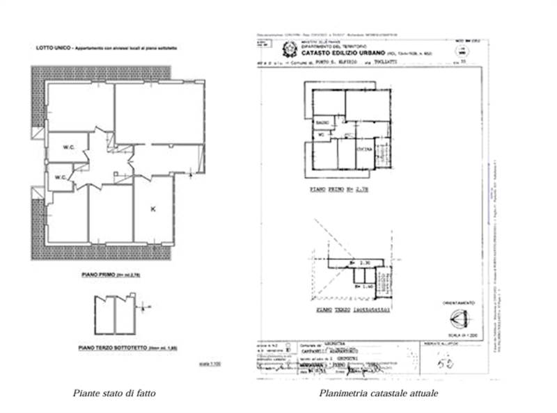
UBICAZIONE E DESCRIZIONE:
Indirizzo: Via Palmiro Togliatti, 35 Porto Sant'Elpidio FM

Descrizione sintetica:
Appartamento posto al piano terra e primo di un complesso residenziale di tipologia a schiera.
Si compone di soggiorno, cucina, due camere, due balconi di mq 11,00 e due bagni. Dotato di scoperto esclusivo adibito a giardino di mq 85,00 e soffitta di mq 60,00.

Aste Agency SRL offre il servizio di assistenza per acquistare tramite un mutuo con banche convenzionate. Assiste ed indirizza, dall’aggiudicazione fino alla consegna delle chiavi.

PERCHE’ COMPRARE ALL’ASTA:
- Acquisto sicuro tramite Tribunale;
- Prezzo inferiore rispetto al mercato libero, quindi rata del mutuo più bassa;
- Banche convenzionate con i Tribunali;
- Nessun vincolo di prezzo nella rivendita e nella locazione.

Le Aste Giudiziarie sono soluzioni abitative a prezzi unici, in quanto si compera ad un prezzo inferiore, paragonato alla realtà proibitiva del mercato libero, e l’investimento immobiliare risulta essere sicuramente conveniente.
Per maggiori delucidazioni vi invitiamo a contattarci. Sarà nostra premura fissare un appuntamento in studio e trasferirvi tutte le informazioni necessarie per un’attenta e serena valutazione.

ASTE AGENCY SRL – Contattateci per un appuntamento presso uno dei nostri uffici o in videochiamata.
Caratteristiche principali
Codice:
57.17.261125.FM
Città:
Porto Sant'Elpidio
Categoria:
Appartamento
Locali:
5
Camere:
3
Bagni:
2
Mq:
285
Balconi:
2
Piano:
1
Anno:
1976
Classe energetica:
G
Stato Immobile:
Buono
Grado:
Medio
Arredi:
Non Arredato
Tipo Cucina:
Abitabile
Riscaldamento:
Autonomo
Fonte Energetica:
Metano
Accesso Disabili:
No
Accessori
Ripostiglio
Mappa
Via Palmiro Togliatti, 35 - Porto Sant'Elpidio (FM)
Virtual tour
Planimetrie
Richiedi informazioni
Invia
Cookie preference