Acquisto Assistito in Asta e Pre-Asta

In vendita
Appartamento
Taranto
184.219 €
Descrizione
Acquisto Assistito in Asta Giudiziaria
Per maggiori proposte visita il sito dell’agenzia: www.asteagency.com

Verifica fattibilità d’acquisto in PRE-ASTA

DATA ASTA : 28/04/26

UBICAZIONE E DESCRIZIONE:
Via Giovanni Paisiello, 38 Taranto TA

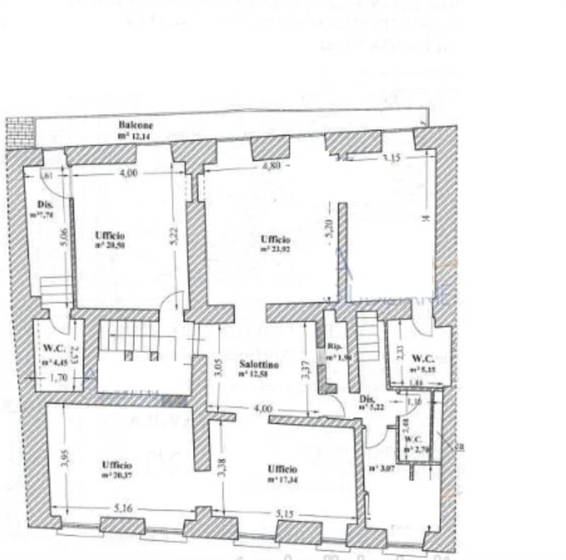
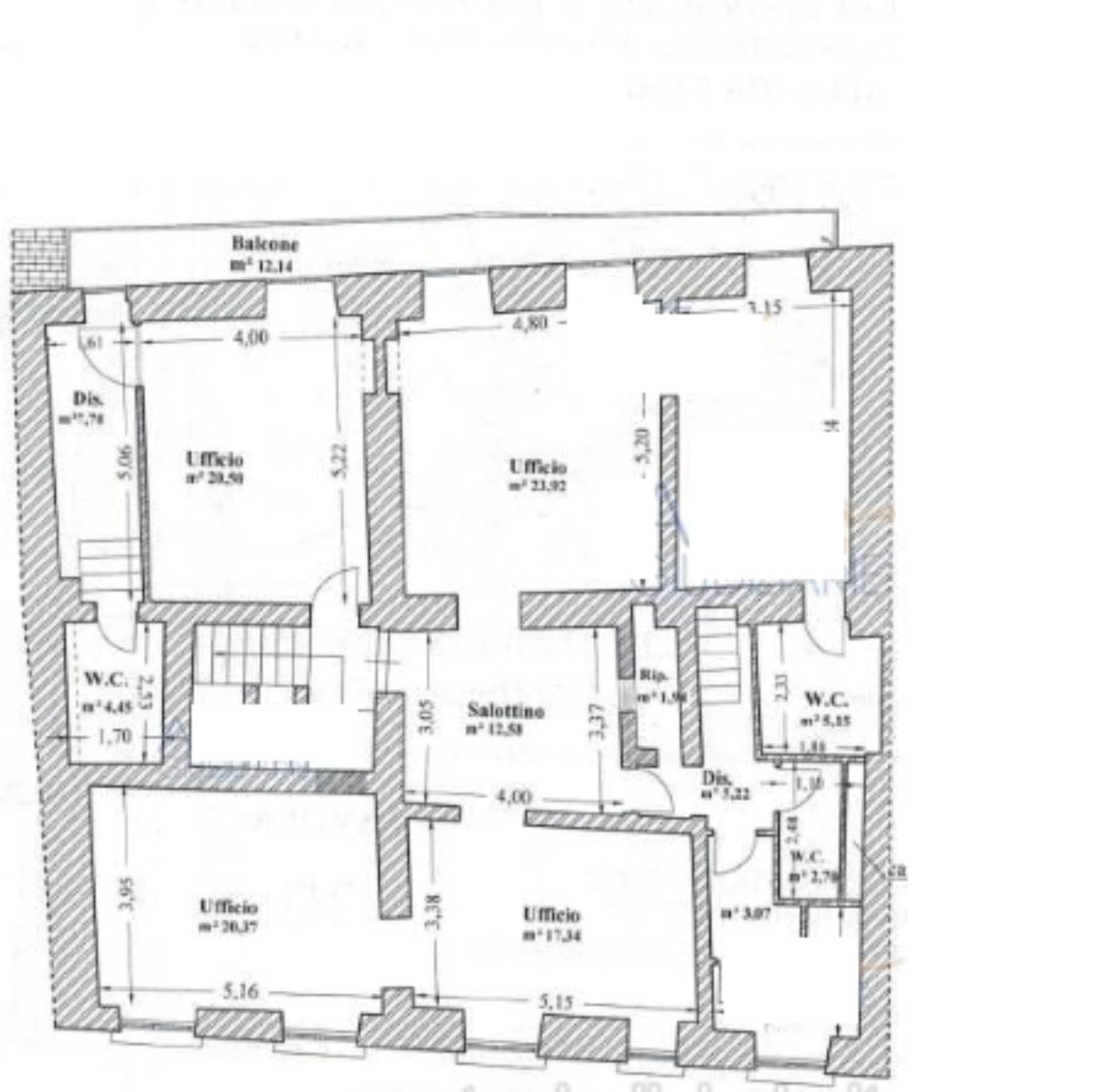
Descrizione sintetica: abitazione con ingresso dai due androni al piano terra di un edificio di pregio recentemente restaurato nel centro storico della città vecchia di Taranto. Si colloca al piano primo e si compone di tre soggiorni, cucina, pranzo, due camere e tre bagni.


Aste Agency SRL offre il servizio di assistenza per acquistare tramite un mutuo con banche convenzionate. Assiste ed indirizza, dall’aggiudicazione fino alla consegna delle chiavi.

PERCHE’ COMPRARE ALL’ASTA:
- Acquisto sicuro tramite Tribunale;
- Prezzo inferiore rispetto al mercato libero, quindi rata del mutuo più bassa;
- Banche convenzionate con i Tribunali;
- Nessun vincolo di prezzo nella rivendita e nella locazione.

Le Aste Giudiziarie sono soluzioni abitative a prezzi unici, in quanto si compera ad un prezzo inferiore, paragonato alla realtà proibitiva del mercato libero, e l’investimento immobiliare risulta essere sicuramente conveniente.
Per maggiori delucidazioni vi invitiamo a contattarci. Sarà nostra premura fissare un appuntamento in studio e trasferirvi tutte le informazioni necessarie per un’attenta e serena valutazione.

ASTE AGENCY SRL – Contattateci per un appuntamento presso uno dei nostri uffici o in videochiamata.
Caratteristiche principali
Codice:
51.24.3.280426.TA
Città:
Taranto
Categoria:
Appartamento
Locali:
7
Camere:
2
Bagni:
3
Mq:
142
Piano:
1
Anno:
1967
Anno ristrutturazione:
2019
Classe energetica:
G
Stato Immobile:
Buono
Grado:
Medio
Tipo Cucina:
Abitabile
Riscaldamento:
Autonomo
Tipo Impianto:
Radiatori
Fonte Energetica:
Metano
Accesso Disabili:
No
Mappa
Via Giovanni Paisiello, 38 - Taranto (TA)
Planimetrie
Richiedi informazioni
Invia
Cookie preference