Acquisto Assistito - in Asta e Pre-Asta

In vendita
Casa singola
Cingia de' Botti (Gurata)
15.306 €
Descrizione
Acquisto Assistito - in Asta e Pre-Asta
Per maggiori proposte visita il sito dell’agenzia: www.asteagency.com

Verifica fattibilità d’acquisto in PRE-ASTA

DATA ASTA: 22/04/2026

UBICAZIONE E DESCRIZIONE:
Via Gurata 60, 26042 Cingia de' Botti Cremona
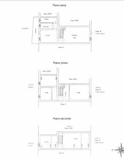
Descrizione sintetica: Abitazione su tre livelli collegati tra di essi da rampe scala, è costituito al piano terra, oltre che da piccola porzione esterna prospiciente la Via Gurata, da due locali, un disimpegno, un bagno; al piano primo da tre locali e due disimpegni e al piano secondo da due locali soffitta.

Aste Agency SRL offre il servizio di assistenza per acquistare tramite un mutuo con banche convenzionate. Assiste ed indirizza, dall’aggiudicazione fino alla consegna delle chiavi.

PERCHE’ COMPRARE ALL’ASTA:
- Acquisto sicuro tramite Tribunale;
- Prezzo inferiore rispetto al mercato libero, quindi rata del mutuo più bassa;
- Banche convenzionate con i Tribunali;
- Nessun vincolo di prezzo nella rivendita e nella locazione.

Le Aste Giudiziarie sono soluzioni abitative a prezzi unici, in quanto si compera ad un prezzo inferiore, paragonato alla realtà proibitiva del mercato libero, e l’investimento immobiliare risulta essere sicuramente conveniente.
Per maggiori delucidazioni vi invitiamo a contattarci. Sarà nostra premura fissare un appuntamento in studio e trasferirvi tutte le informazioni necessarie per un’attenta e serena valutazione.

ASTE AGENCY SRL – Contattateci per un appuntamento presso uno dei nostri uffici o in videochiamata.
Caratteristiche principali
Codice:
50.23.220426.CR
Città:
Cingia de' Botti (Gurata)
Categoria:
Casa singola
Locali:
5
Camere:
3
Bagni:
1
Mq:
145
Piano:
Terra
Anno:
1967
Classe energetica:
G
Stato Immobile:
Da Ristrutturare
Grado:
Medio
Tipo Cucina:
Abitabile
Riscaldamento:
No
Accesso Disabili:
No
Mappa
Via Gurata , 60 - Cingia de' Botti (CR)
Planimetrie
Richiedi informazioni
Invia
Cookie preference