Acquisto Assistito - in Asta e Pre-Asta

In vendita
Appartamento
Roseto degli Abruzzi
36.563 €
Descrizione
Acquisto Assistito in Asta Giudiziaria
Per maggiori proposte visita il sito dell’agenzia: www.asteagency.com

Verifica fattibilità d’acquisto in PRE-ASTA

DATA ASTA : 25/03/26

UBICAZIONE E DESCRIZIONE:
Via Masci, 8 Roseto degli Abruzzi TE

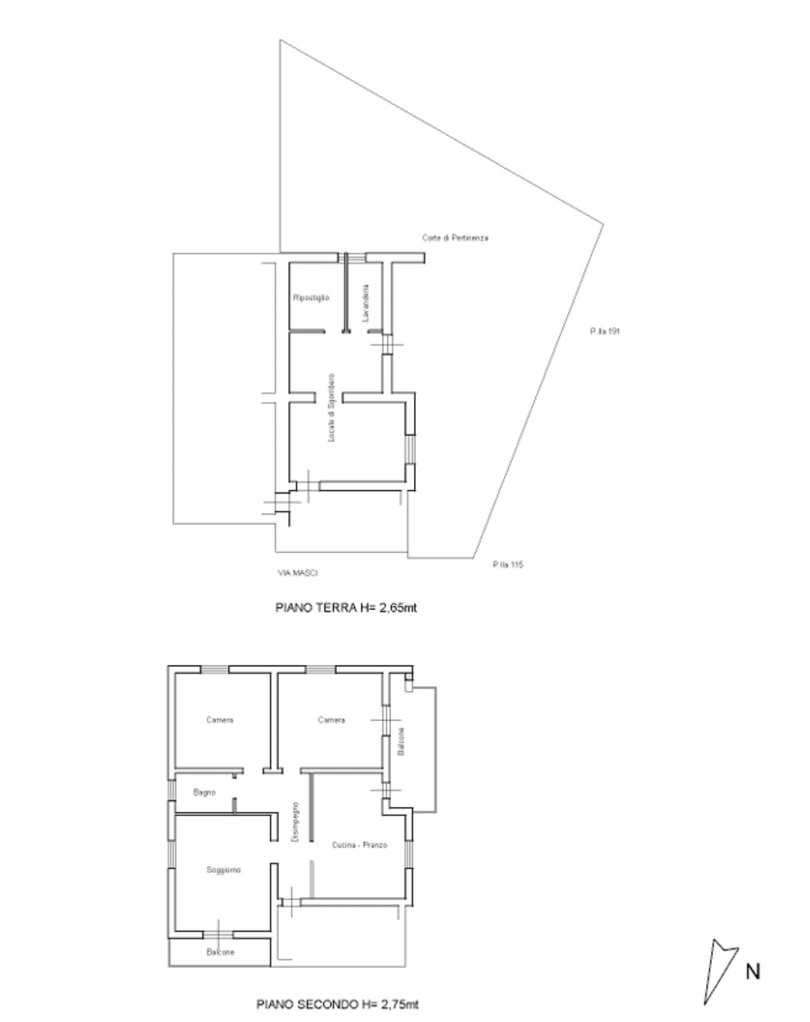
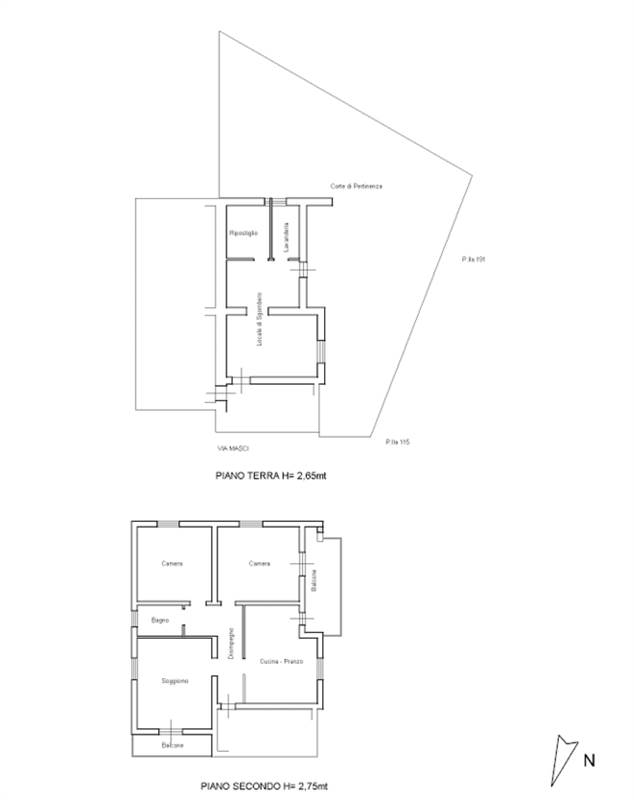
Descrizione sintetica: Appartamento con annesse pertinenze. Il compendio immobiliare si sviluppa al piano terra e secondo di un fabbricato condominiale di maggiore consistenza a destinazione residenziale. L'appartamento, al piano secondo, si articola in un ingresso su disimpegno, soggiorno, cucina-pranzo, due camere e due bagni, oltre alla presenza di una loggia e due balconi a livello di complessivi mq 15,00. Sono annessi all’appartamento dei locali di sgombero al piano terra di mq 45,00 e una corte esterna ad uso esclusivo.


Aste Agency SRL offre il servizio di assistenza per acquistare tramite un mutuo con banche convenzionate. Assiste ed indirizza, dall’aggiudicazione fino alla consegna delle chiavi.

PERCHE’ COMPRARE ALL’ASTA:
- Acquisto sicuro tramite Tribunale;
- Prezzo inferiore rispetto al mercato libero, quindi rata del mutuo più bassa;
- Banche convenzionate con i Tribunali;
- Nessun vincolo di prezzo nella rivendita e nella locazione.

Le Aste Giudiziarie sono soluzioni abitative a prezzi unici, in quanto si compera ad un prezzo inferiore, paragonato alla realtà proibitiva del mercato libero, e l’investimento immobiliare risulta essere sicuramente conveniente.
Per maggiori delucidazioni vi invitiamo a contattarci. Sarà nostra premura fissare un appuntamento in studio e trasferirvi tutte le informazioni necessarie per un’attenta e serena valutazione.

ASTE AGENCY SRL – Contattateci per un appuntamento presso uno dei nostri uffici o in videochiamata.
Caratteristiche principali
Codice:
5.25.250326.TE
Città:
Roseto degli Abruzzi
Categoria:
Appartamento
Locali:
4
Camere:
2
Bagni:
2
Mq:
148
Balconi:
2
Piano:
2
Anno:
1970
Classe energetica:
G
Stato Immobile:
Buono
Grado:
Medio
Tipo Cucina:
Abitabile
Riscaldamento:
Autonomo
Fonte Energetica:
Metano
Accesso Disabili:
No
Mappa
via Masci , 8 - Roseto degli Abruzzi (TE)
Planimetrie
Richiedi informazioni
Invia
Cookie preference