Acquisto Assistito - in Asta e Pre-Asta

In vendita
Appartamento
Porto Recanati
19.688 €
Descrizione
Acquisto Assistito in Asta Giudiziaria
Per maggiori proposte visita il sito dell’agenzia: www.asteagency.com

Verifica fattibilità d’acquisto in PRE-ASTA

DATA ASTA : 27/05/26

UBICAZIONE E DESCRIZIONE:
Indirizzo: Via Santa Maria in Potenza, 8 Porto Recanati MC

Descrizione sintetica:
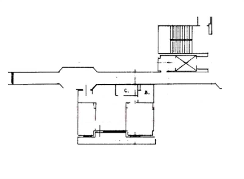
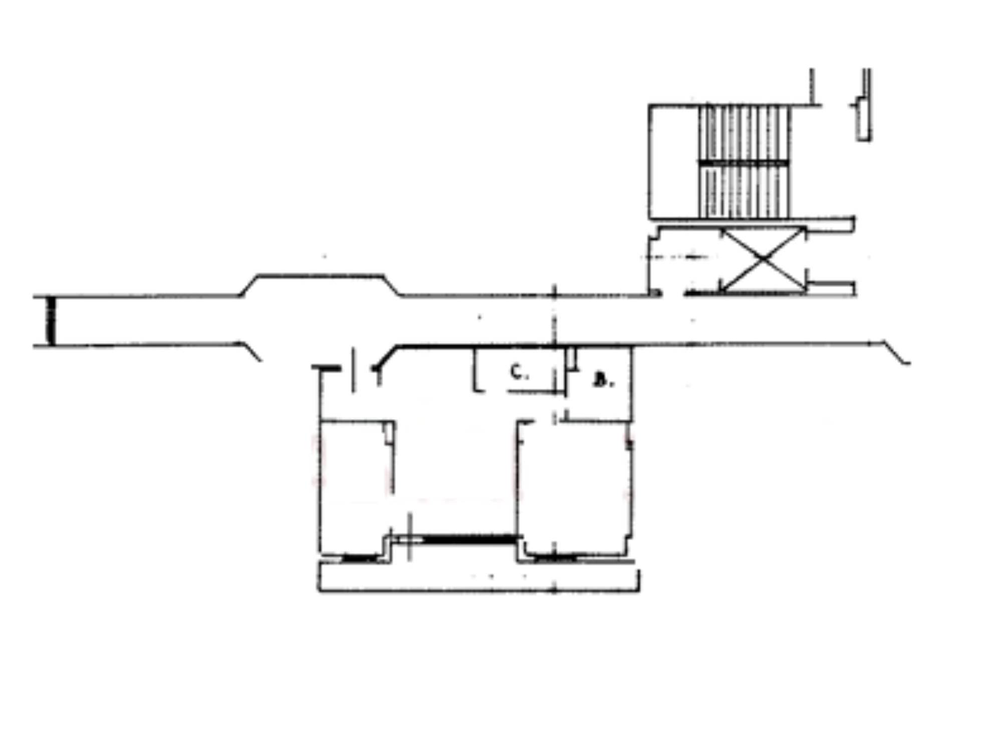
Il complesso si eleva per 17 piani fuori terra più un piano seminterrato. Al piano terra troviamo attività commerciali mentre i piani in elevazione sono tutti destinati a residenza. Gli appartamenti, progettati e realizzati come case vacanze, sono allo stato attuale occupati in maniera stabile da famiglie di diverse etnie e culture. L’appartamento all’interno 182 affaccia a sud-ovest, è situato al tredicesimo piano ed accessibile dalla scala A. L'unità immobiliare ha una superficie commerciale di circa 66,00 mq e un'altezza interna di mt 3,00. L’appartamento si articola in un mini-ingresso collegato alla zona giorno, di circa 20,00 mq, un locale cottura di circa 4,00 mq, un bagno di circa 4,00 mq, una camera da letto di circa 12,00 mq ed uno studio (utilizzato come camera) di circa 8,00 mq. Dalla zona giorno si accede al balcone che corre per tutto il lato sud-ovest.


Aste Agency SRL offre il servizio di assistenza per acquistare tramite un mutuo con banche convenzionate. Assiste ed indirizza, dall’aggiudicazione fino alla consegna delle chiavi.

PERCHE’ COMPRARE ALL’ASTA:
- Acquisto sicuro tramite Tribunale;
- Prezzo inferiore rispetto al mercato libero, quindi rata del mutuo più bassa;
- Banche convenzionate con i Tribunali;
- Nessun vincolo di prezzo nella rivendita e nella locazione.

Le Aste Giudiziarie sono soluzioni abitative a prezzi unici, in quanto si compera ad un prezzo inferiore, paragonato alla realtà proibitiva del mercato libero, e l’investimento immobiliare risulta essere sicuramente conveniente.
Per maggiori delucidazioni vi invitiamo a contattarci. Sarà nostra premura fissare un appuntamento in studio e trasferirvi tutte le informazioni necessarie per un’attenta e serena valutazione.

ASTE AGENCY SRL – Contattateci per un appuntamento presso uno dei nostri uffici o in videochiamata.
Caratteristiche principali
Codice:
44.23.270526.MC
Città:
Porto Recanati
Categoria:
Appartamento
Locali:
3
Camere:
2
Bagni:
1
Mq:
66
Balconi:
1
Piano:
13
Anno:
1967
Classe energetica:
G
Stato Immobile:
Buono
Grado:
Medio
Arredi:
Non Arredato
Tipo Cucina:
Angolo Cottura
Riscaldamento:
Autonomo
Fonte Energetica:
Metano
Accesso Disabili:
No
Mappa
Via Santa Maria in Potenza, 8 - Porto Recanati (MC)
Planimetrie
Richiedi informazioni
Invia
Cookie preference