Acquisto Assistito - in Asta e Pre-Asta

In vendita
Casa singola
Almenno San Bartolomeo
23.035 €
Descrizione
Acquisto Assistito - in Asta e Pre-Asta
Per maggiori proposte visita il sito dell’agenzia: www.asteagency.com

Verifica fattibilità d’acquisto in PRE-ASTA

DATA ASTA: 05/05/2026

UBICAZIONE E DESCRIZIONE:
Via Casucco, 14/15, 24030 Albenza - Almenno San Bartolomeo BG
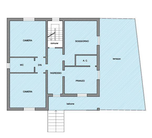
Descrizione sintetica: Appartamento al piano terra in edificio bifamiliare composto da portico di mq 3,58, soggiorno, cucina, due camere e bagno oltre a terrazza di mq 61,96 e balcone di mq 14,57, al piano seminterrato locali deposito, box auto doppio e terreno.
Appartamento al piano primo in edificio bifamiliare composto da soggiorno, cucina, due camere, bagno e balcone di mq 20,8 5oltre a sottotetto di mq 135,00, cantina di mq 77,00 e portico di mq 7,87.

Aste Agency SRL offre il servizio di assistenza per acquistare tramite un mutuo con banche convenzionate. Assiste ed indirizza, dall’aggiudicazione fino alla consegna delle chiavi.

PERCHE’ COMPRARE ALL’ASTA:
- Acquisto sicuro tramite Tribunale;
- Prezzo inferiore rispetto al mercato libero, quindi rata del mutuo più bassa;
- Banche convenzionate con i Tribunali;
- Nessun vincolo di prezzo nella rivendita e nella locazione.

Le Aste Giudiziarie sono soluzioni abitative a prezzi unici, in quanto si compera ad un prezzo inferiore, paragonato alla realtà proibitiva del mercato libero, e l’investimento immobiliare risulta essere sicuramente conveniente.
Per maggiori delucidazioni vi invitiamo a contattarci. Sarà nostra premura fissare un appuntamento in studio e trasferirvi tutte le informazioni necessarie per un’attenta e serena valutazione.

ASTE AGENCY SRL – Contattateci per un appuntamento presso uno dei nostri uffici o in videochiamata.
Caratteristiche principali
Codice:
429.23.050526.BG
Città:
Almenno San Bartolomeo
Categoria:
Casa singola
Locali:
8
Camere:
4
Bagni:
2
Mq:
329
Box:
1
Balconi:
2
Terrazzi:
2
Piano:
Terra
Anno:
1967
Classe energetica:
G
Stato Immobile:
Buono
Grado:
Medio
Arredi:
Non Arredato
Tipo Cucina:
Abitabile
Riscaldamento:
Autonomo
Tipo Impianto:
Radiatori
Fonte Energetica:
Metano
Accesso Disabili:
No
Mappa
Via casucco 24030, 14/15 - Almenno San Bartolomeo (BG)
Richiedi informazioni
Invia
Cookie preference