Acquisto Assistito in Asta Giudiziaria

In vendita
Appartamento
Darfo Boario Terme
82.446 €
Descrizione
Acquisto Assistito in Asta Giudiziaria
Per maggiori proposte visita il sito dell’agenzia:
www.asteagency.com

Verifica fattibilità d’acquisto in PRE-ASTA
DATA ASTA : 07/05/2026

UBICAZIONE E DESCRIZIONE:
Indirizzo: VIA GIUSEPPE MAZZINI N.102 - Darfo Boario Terme (BS)
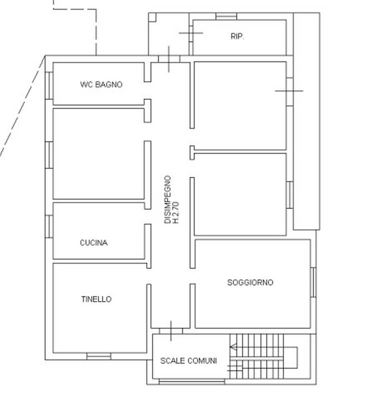
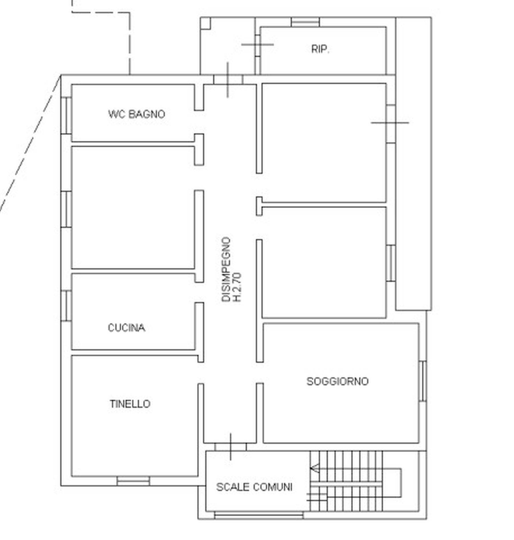
Descrizione sintetica: Appartamento di 152 mq posto al primo piano con tettoia, locali di deposito al piano terra e piano terzo, autorimessa e locale deposito al piano terra di 58 mq, l'appartamento è composto da cucina, soggiorno, tinello, ripostiglio, 3 camere, disimpegno, bagno e due balconi. L'appartamento è provvisto di impianto elettrico funzionante e di impianto termico costituito da caloriferi e caldaia a metano autonoma. Nel disimpegno è inoltre presente una stufa a pellet.

Aste Agency SRL offre il servizio di assistenza per acquistare tramite un mutuo con banche convenzionate. Assiste ed indirizza, dall’aggiudicazione fino alla consegna delle chiavi.

PERCHE’ COMPRARE ALL’ASTA:
- Acquisto sicuro tramite Tribunale;
- Prezzo inferiore rispetto al mercato libero, quindi rata del mutuo più bassa;
- Banche convenzionate con i Tribunali;
- Nessun vincolo di prezzo nella rivendita e nella locazione.

Le Aste Giudiziarie sono soluzioni abitative a prezzi unici, in quanto si compera ad un prezzo inferiore, paragonato alla realtà proibitiva del mercato libero, e l’investimento immobiliare risulta essere sicuramente conveniente.
Per maggiori delucidazioni vi invitiamo a contattarci. Sarà nostra premura fissare un appuntamento in studio e trasferirvi tutte le informazioni necessarie per un’attenta e serena valutazione.

ASTE AGENCY SRL – Contattateci per un appuntamento presso uno dei nostri uffici o in videochiamata.
Caratteristiche principali
Codice:
420.24.070526.BS
Città:
Darfo Boario Terme
Categoria:
Appartamento
Locali:
7
Camere:
3
Bagni:
1
Mq:
152
Box:
1
Balconi:
2
Piano:
1
Anno:
1966
Classe energetica:
G
Stato Immobile:
Buono
Grado:
Medio
Arredi:
Non Arredato
Tipo Cucina:
Abitabile
Riscaldamento:
Autonomo
Tipo Impianto:
Radiatori
Fonte Energetica:
Metano
Acqua Calda:
Autonoma
Accesso Disabili:
No
Accessori
Stufa a Pellet
Mappa
VIA GIUSEPPE MAZZINI, 102 - Darfo Boario Terme (BS)
Planimetrie
Richiedi informazioni
Invia
Cookie preference