Acquisto Assistito in Asta e Pre-Asta

In vendita
Appartamento
Sossano
108.000 €
Descrizione
Acquisto Assistito in Asta Giudiziaria
Per maggiori proposte visita il sito dell’agenzia: www.asteagency.com

Verifica fattibilità d’acquisto in PRE-ASTA

DATA ASTA : 22/04/26

UBICAZIONE E DESCRIZIONE:
Via Monticelli, 34/36 Sossano VI

Descrizione sintetica: Lotto composto da due unità abitative indipendenti con deposito collegato e ampia corte esclusiva.
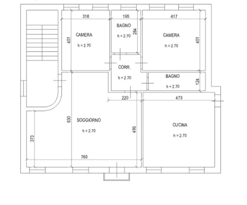
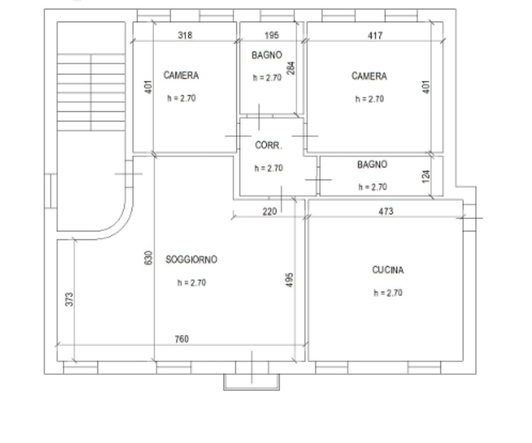
Appartamento Piano Terra (sub. 2): ingresso, cucina, soggiorno, corridoio, due bagni, due camere. Appartamento Piano Primo (sub. 3): ingresso da vano scale, cucina, soggiorno, corridoio, due bagni, due camere.
Deposito (part. 502): sviluppato su tre livelli (PT-P1-P2) con portico, locali deposito, lavanderie con centrale termica, ripostigli e sottotetto. Area esterna: ampia corte esclusiva con annessi accessori (ripostigli, cantina interrata, ex officina con tettoia e piazzale in cemento).Totale mq accessori 322,88.



Aste Agency SRL offre il servizio di assistenza per acquistare tramite un mutuo con banche convenzionate. Assiste ed indirizza, dall’aggiudicazione fino alla consegna delle chiavi.

PERCHE’ COMPRARE ALL’ASTA:
- Acquisto sicuro tramite Tribunale;
- Prezzo inferiore rispetto al mercato libero, quindi rata del mutuo più bassa;
- Banche convenzionate con i Tribunali;
- Nessun vincolo di prezzo nella rivendita e nella locazione.

Le Aste Giudiziarie sono soluzioni abitative a prezzi unici, in quanto si compera ad un prezzo inferiore, paragonato alla realtà proibitiva del mercato libero, e l’investimento immobiliare risulta essere sicuramente conveniente.
Per maggiori delucidazioni vi invitiamo a contattarci. Sarà nostra premura fissare un appuntamento in studio e trasferirvi tutte le informazioni necessarie per un’attenta e serena valutazione.

ASTE AGENCY SRL – Contattateci per un appuntamento presso uno dei nostri uffici o in videochiamata.
Caratteristiche principali
Codice:
411.23.2.220426.VI
Città:
Sossano
Categoria:
Appartamento
Locali:
8
Camere:
4
Bagni:
4
Mq:
665
Piano:
Terra
Anno:
1967
Classe energetica:
G
Stato Immobile:
Abitabile
Grado:
Medio
Giardino:
Privato
Tipo Cucina:
Abitabile
Riscaldamento:
Autonomo
Tipo Impianto:
Radiatori
Fonte Energetica:
GPL
Accesso Disabili:
No
Accessori
Canna Fumaria
Lavanderia
Ripostiglio
Stufa a Pellet
Mappa
Via Monticelli, 34 - Sossano (VI)
Richiedi informazioni
Invia
Cookie preference