Acquisto Assistito in Asta Giudiziaria

In vendita
Appartamento
Pieve del Cairo
38.963 €
Descrizione
Acquisto Assistito in Asta Giudiziaria
Per maggiori proposte visita il sito dell’agenzia:
www.asteagency.com

Verifica fattibilità d’acquisto in PRE-ASTA
DATA ASTA : 24/03/2026

Disponibilità: Libero al Decreto di Trasferimento

UBICAZIONE E DESCRIZIONE:
Indirizzo: Via Angeleri n. 25/B - Pieve del Cairo (PV)
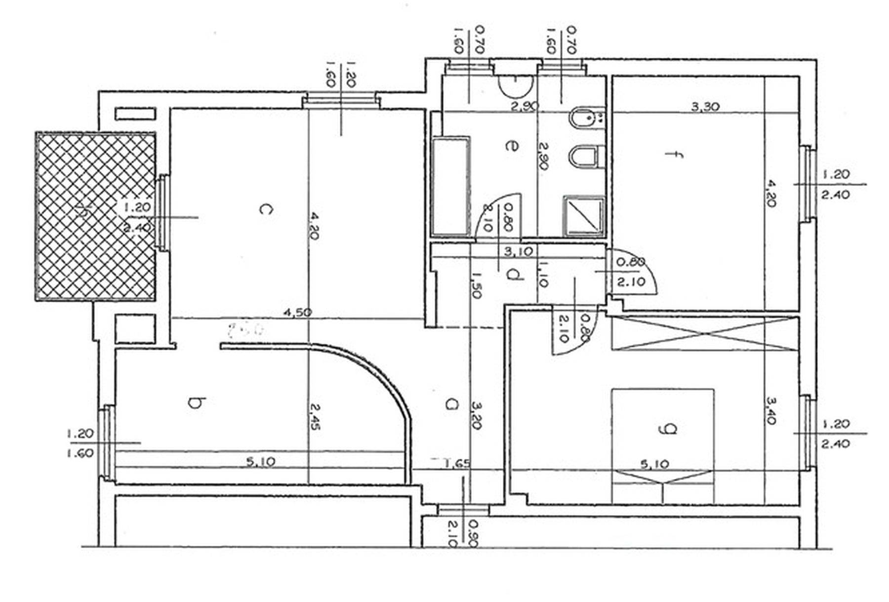
Descrizione sintetica: Appartamento posto al primo piano con ascensore e completo di autorimessa. L'appartamento è composto da ingresso, soggiorno di 19 mq e balcone, cucina di 11 mq, disimpegno, due camere, bagno di 4 mq. Al piano terra vano cantina di pertinenza e box. E' presente riscaldamento autonomo e condizionatore.

Aste Agency SRL offre il servizio di assistenza per acquistare tramite un mutuo con banche convenzionate. Assiste ed indirizza, dall’aggiudicazione fino alla consegna delle chiavi.

PERCHE’ COMPRARE ALL’ASTA:
- Acquisto sicuro tramite Tribunale;
- Prezzo inferiore rispetto al mercato libero, quindi rata del mutuo più bassa;
- Banche convenzionate con i Tribunali;
- Nessun vincolo di prezzo nella rivendita e nella locazione.

Le Aste Giudiziarie sono soluzioni abitative a prezzi unici, in quanto si compera ad un prezzo inferiore, paragonato alla realtà proibitiva del mercato libero, e l’investimento immobiliare risulta essere sicuramente conveniente.
Per maggiori delucidazioni vi invitiamo a contattarci. Sarà nostra premura fissare un appuntamento in studio e trasferirvi tutte le informazioni necessarie per un’attenta e serena valutazione.

ASTE AGENCY SRL – Contattateci per un appuntamento presso uno dei nostri uffici o in videochiamata.
Caratteristiche principali
Codice:
399.24.240326.PV
Città:
Pieve del Cairo
Categoria:
Appartamento
Locali:
5
Camere:
2
Bagni:
1
Mq:
118
Box:
1
Balconi:
1
Piano:
1
Anno:
1981
Classe energetica:
G
Stato Immobile:
Buono
Grado:
Medio
Arredi:
Non Arredato
Tipo Soggiorno:
Soggiorno
Tipo Cucina:
Abitabile
Riscaldamento:
Autonomo
Tipo Riscaldam.:
Caldaia
Tipo Impianto:
Radiatori
Fonte Energetica:
Metano
Acqua Calda:
Autonoma
Accesso Disabili:
No
Mappa
Via angeleri , 25 - Pieve del Cairo (PV)
Richiedi informazioni
Invia
Cookie preference