Acquisto Assistito - in Asta e Pre-Asta

In vendita
Villetta schiera
Montegranaro
117.000 €
Descrizione
Acquisto Assistito in Asta Giudiziaria
Per maggiori proposte visita il sito dell’agenzia: www.asteagency.com

Verifica fattibilità d’acquisto in PRE-ASTA

DATA ASTA : 27/04/26

UBICAZIONE E DESCRIZIONE:
Indirizzo: Via Elpidiense sud, Montegranaro, FM.

Descrizione sintetica:
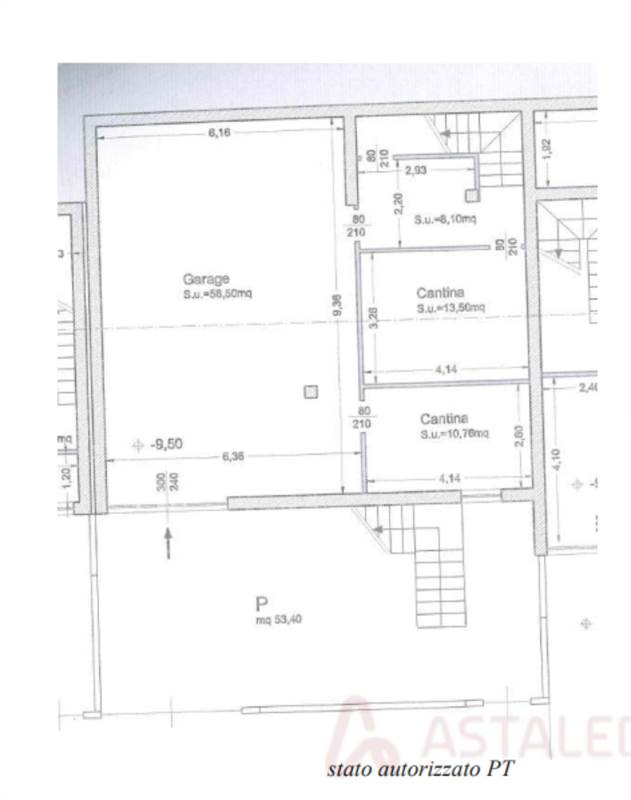
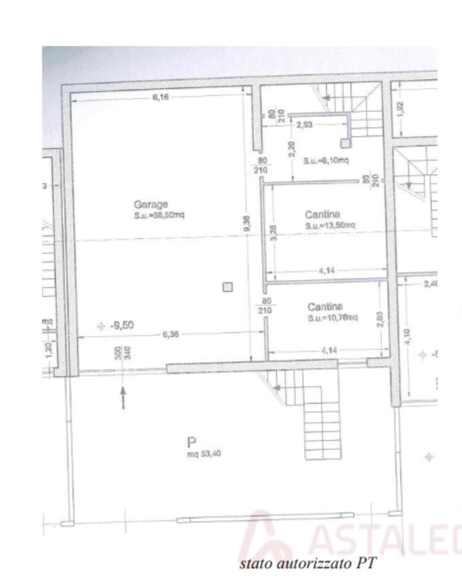
Villetta a schiera con corte esclusiva di 53,00 mq e garage di 90,00 mq, al primo piano soggiorno, sala pranzo/cucina e un bagno con balcone di 18,00 mq , al secondo piano tre camere ed un bagno con balcone di 12,00 mq.

Aste Agency SRL offre il servizio di assistenza per acquistare tramite un mutuo con banche convenzionate. Assiste ed indirizza, dall’aggiudicazione fino alla consegna delle chiavi.

PERCHE’ COMPRARE ALL’ASTA:
- Acquisto sicuro tramite Tribunale;
- Prezzo inferiore rispetto al mercato libero, quindi rata del mutuo più bassa;
- Banche convenzionate con i Tribunali;
- Nessun vincolo di prezzo nella rivendita e nella locazione.

Le Aste Giudiziarie sono soluzioni abitative a prezzi unici, in quanto si compera ad un prezzo inferiore, paragonato alla realtà proibitiva del mercato libero, e l’investimento immobiliare risulta essere sicuramente conveniente.
Per maggiori delucidazioni vi invitiamo a contattarci. Sarà nostra premura fissare un appuntamento in studio e trasferirvi tutte le informazioni necessarie per un’attenta e serena valutazione.

ASTE AGENCY SRL – Contattateci per un appuntamento presso uno dei nostri uffici o in videochiamata.


Caratteristiche principali
Codice:
39.24.270426.FM
Città:
Montegranaro
Categoria:
Villetta schiera
Locali:
5
Camere:
3
Bagni:
2
Mq:
218
Box:
1
Mq Box:
90
Mq Giardino:
53
Balconi:
2
Mq Balcone:
30
Piano:
1
Anno:
2001
Classe energetica:
G
Stato Immobile:
Buono
Grado:
Medio
Tipo Cucina:
Angolo Cottura
Riscaldamento:
No
Accesso Disabili:
No
Mappa
VIA ELPIDIENSE SUD , 6 - Montegranaro (FM)
Richiedi informazioni
Invia
Cookie preference