Acquisto Assistito in Asta e Pre-Asta

In vendita
Appartamento
Solza
70.523 €
Descrizione
Acquisto Assistito in Asta e Pre-Asta
Per maggiori proposte visita il sito dell’agenzia: www.asteagency.com

Verifica fattibilità d’acquisto in PRE-ASTA

DATA ASTA: 17/06/2026

UBICAZIONE E DESCRIZIONE:
via San Protasio 7, 24030 Solza (BG)

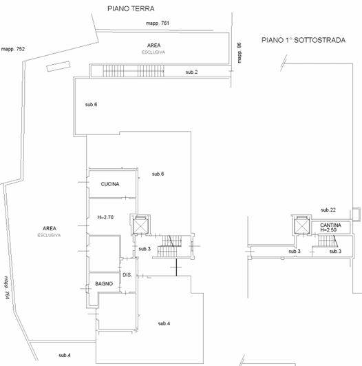
Descrizione sintetica: appartamento al piano terra composto da ingresso/disimpegno, cucina, soggiorno, disimpegno, due camere e un bagno, area esterna esclusiva di 110 mq (giardino), cantina di 6 mq al piano interrato.

Aste Agency SRL offre il servizio di assistenza per acquistare tramite un mutuo con banche convenzionate. Assiste ed indirizza, dall’aggiudicazione fino alla consegna delle chiavi.

PERCHE’ COMPRARE ALL’ASTA:
- Acquisto sicuro tramite Tribunale;
- Prezzo inferiore rispetto al mercato libero, quindi rata del mutuo più bassa;
- Banche convenzionate con i Tribunali;
- Nessun vincolo di prezzo nella rivendita e nella locazione.

Le Aste Giudiziarie sono soluzioni abitative a prezzi unici, in quanto si compera ad un prezzo inferiore, paragonato alla realtà proibitiva del mercato libero, e l’investimento immobiliare risulta essere sicuramente conveniente.
Per maggiori delucidazioni vi invitiamo a contattarci. Sarà nostra premura fissare un appuntamento in studio e trasferirvi tutte le informazioni necessarie per un’attenta e serena valutazione.

ASTE AGENCY SRL – Contattateci per un appuntamento presso uno dei nostri uffici o in videochiamata.
Caratteristiche principali
Codice:
346.24.170626.BG
Città:
Solza
Categoria:
Appartamento
Locali:
4
Camere:
2
Bagni:
1
Mq:
95
Piano:
Terra
Anno:
2003
Classe energetica:
G
Stato Immobile:
Buono
Grado:
Medio
Tipo Cucina:
Abitabile
Riscaldamento:
Autonomo
Tipo Impianto:
Radiatori
Fonte Energetica:
Metano
Accesso Disabili:
No
Accessori
Aria Condizionata
Ascensore
Mappa
Via san protasio, 7 - Solza (BG)
Planimetrie
Richiedi informazioni
Invia
Cookie preference