Acquisto Assistito - in Asta e Pre-Asta

In vendita
Casa singola
Montegaldella
204.000 €
Descrizione
Per maggiori proposte visita il sito dell’agenzia: www.asteagency.com
Verifica fattibilità d’acquisto in pre-asta

DATA ASTA : 13/04/26

UBICAZIONE E DESCRIZIONE:
Indirizzo: Via Roma, 12, 36047 Montegaldella VI

Descrizione sintetica:
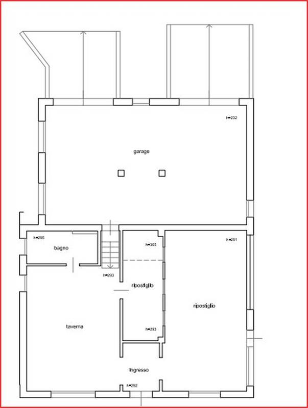
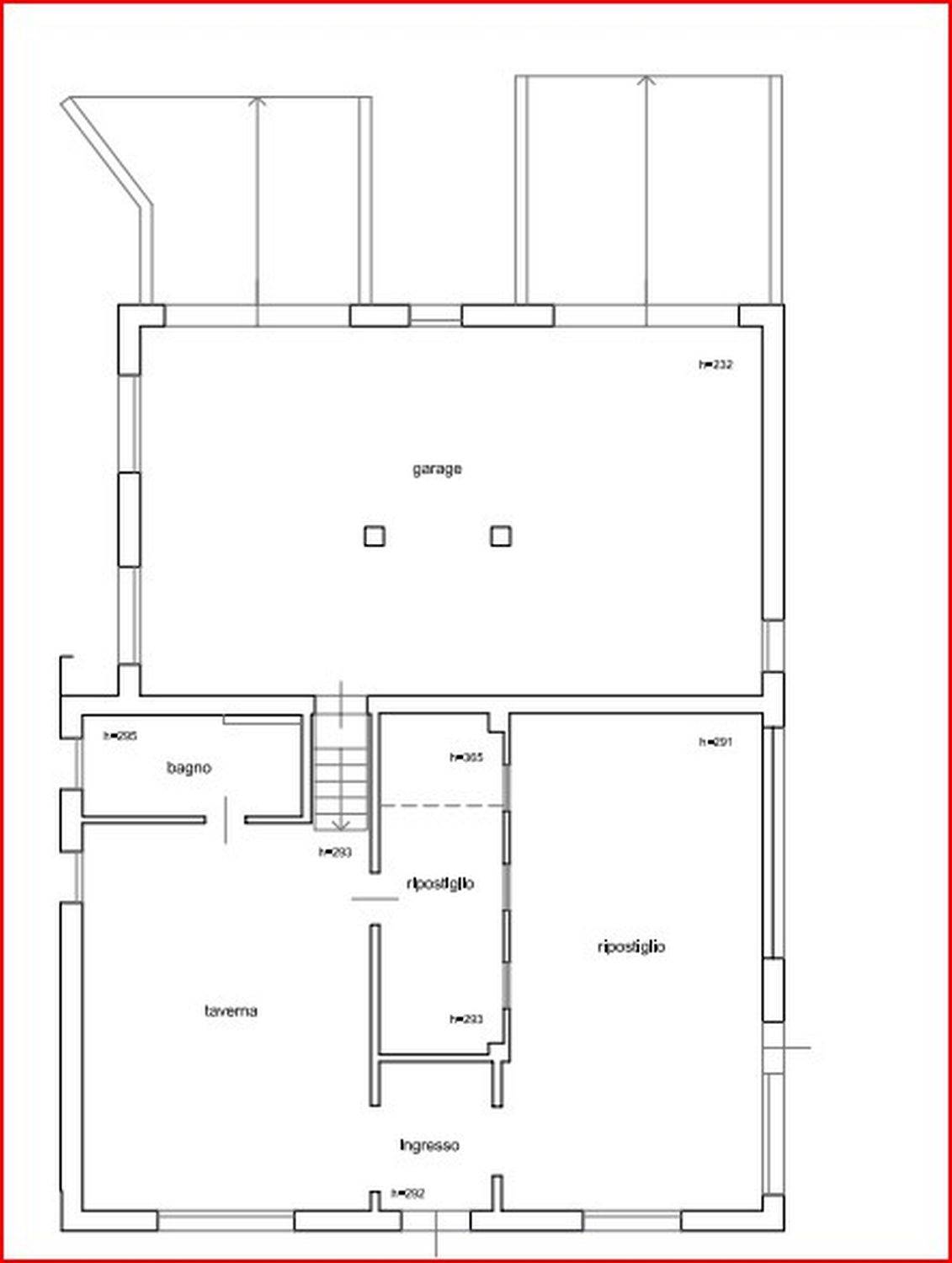
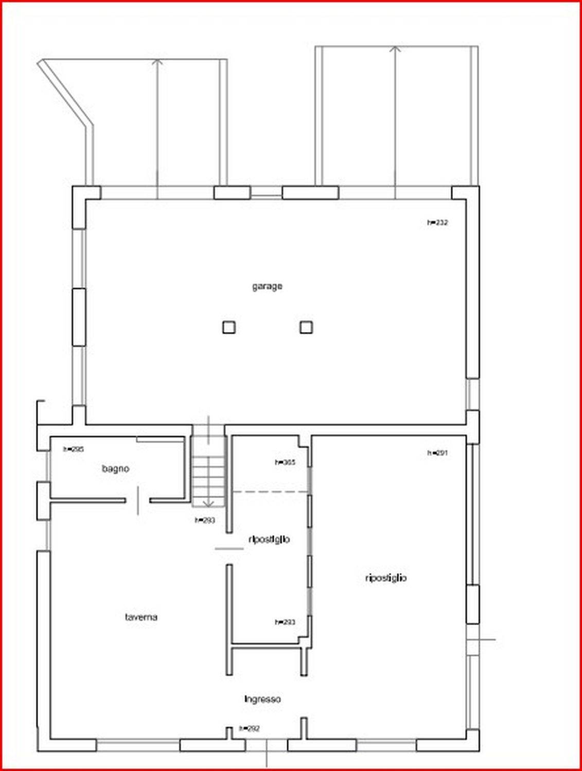
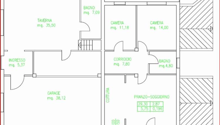
Trattasi di abitazione unifamiliare composta, al piano terra, da taverna, bagno e ripostiglio; al piano primo da cucina, soggiorno, camera, ripostiglio, bagno e disbrigo; al piano seminterrato, si trova il garage.

Superficie lorda commerciale mq: 195,50

Aste Agency SRL offre il servizio di assistenza per acquistare tramite un mutuo con banche convenzionate. Assiste ed indirizza, dall’aggiudicazione fino alla consegna delle chiavi.

PERCHE’ COMPRARE ALL’ASTA:
- Acquisto sicuro tramite Tribunale;
- Prezzo inferiore rispetto al mercato libero, quindi rata del mutuo più bassa;
- Banche convenzionate con i Tribunali;
- Nessun vincolo di prezzo nella rivendita e nella locazione.

Le Aste Giudiziarie sono soluzioni abitative a prezzi unici, in quanto si compera ad un prezzo inferiore, paragonato alla realtà proibitiva del mercato libero, e l’investimento immobiliare risulta essere sicuramente conveniente.
Per maggiori delucidazioni vi invitiamo a contattarci. Sarà nostra premura fissare un appuntamento in studio e trasferirvi tutte le informazioni necessarie per un’attenta e serena valutazione.

ASTE AGENCY SRL – Contattateci per un appuntamento presso uno dei nostri uffici o in videochiamata.
Caratteristiche principali
Codice:
324.24.130426.VI
Città:
Montegaldella
Categoria:
Casa singola
Locali:
6
Camere:
1
Bagni:
2
Mq:
195,5
Box:
1
Mq Box:
77,9
mq Terrazzo:
10,3
Piano:
Rialzato
Anno:
1972
Anno ristrutturazione:
2001
Classe energetica:
E
Stato Immobile:
Buono
Grado:
Signorile
Lati Liberi:
4
Giardino:
Privato
Arredi:
Non Arredato
Tipo Soggiorno:
Soggiorno
Tipo Cucina:
Abitabile
Riscaldamento:
Autonomo
Tipo Riscaldam.:
Caldaia
Tipo Impianto:
Radiatori
Fonte Energetica:
Metano
Acqua Calda:
Autonoma
Infissi:
Legno Doppio Vetro
Serramenti:
Buono
Persiana:
Tapparella PVC
Pavimento:
Gres Porcellanato
Accesso Disabili:
No
Mappa
Via Roma, 12 - Montegaldella (VI)
Richiedi informazioni
Invia
Cookie preference