Acquisto Assistito in Asta Giudiziaria

In vendita
Villa
Borgo San Giacomo
251.438 €
Descrizione
Acquisto Assistito in Asta Giudiziaria
Per maggiori proposte visita il sito dell’agenzia:
www.asteagency.com

Verifica fattibilità d’acquisto in PRE-ASTA
DATA ASTA : 05/11/2025

Disponibilità: Occupato con regolare contratto di locazione

UBICAZIONE E DESCRIZIONE:
Indirizzo: Strada Provinciale 11 n°24 - Borgo San Giacomo (BS)
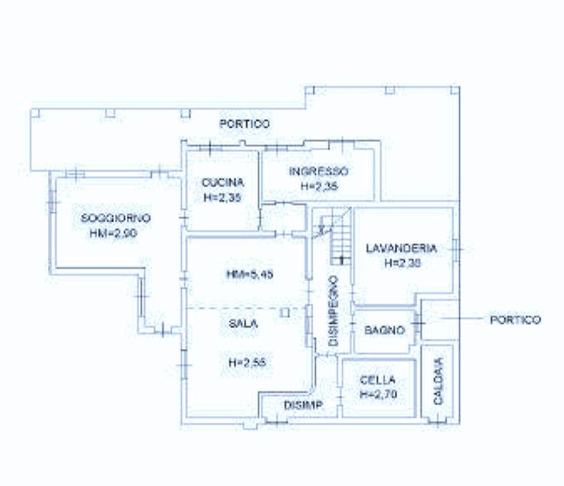
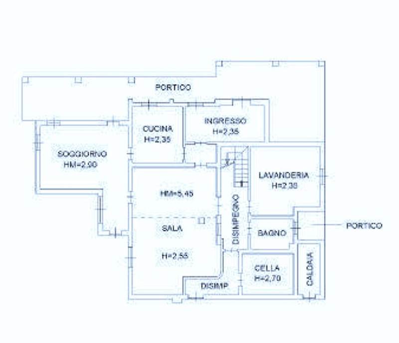
Descrizione sintetica: Villa indipendente di 318 mq con giardino privato per un totale di 500 mq così composto: al piano si accede dall'ingresso, tre disimpegni, cucina, soggiorno, sala, lavanderia, bagno cella frigorifera. Al piano primo vi sono tre camere da letto, due bagni, e una cabina armadio. Esternamente in angolo sud ovest è presente un piccolo fabbricato accessorio adibito a deposito ripostiglio costituito da un piccolo ambiente con annesso portico.

Aste Agency SRL offre il servizio di assistenza per acquistare tramite un mutuo con banche convenzionate. Assiste ed indirizza, dall’aggiudicazione fino alla consegna delle chiavi.

PERCHE’ COMPRARE ALL’ASTA:
- Acquisto sicuro tramite Tribunale;
- Prezzo inferiore rispetto al mercato libero, quindi rata del mutuo più bassa;
- Banche convenzionate con i Tribunali;
- Nessun vincolo di prezzo nella rivendita e nella locazione.

Le Aste Giudiziarie sono soluzioni abitative a prezzi unici, in quanto si compera ad un prezzo inferiore, paragonato alla realtà proibitiva del mercato libero, e l’investimento immobiliare risulta essere sicuramente conveniente.
Per maggiori delucidazioni vi invitiamo a contattarci. Sarà nostra premura fissare un appuntamento in studio e trasferirvi tutte le informazioni necessarie per un’attenta e serena valutazione.

ASTE AGENCY SRL – Contattateci per un appuntamento presso uno dei nostri uffici o in videochiamata.
Caratteristiche principali
Codice:
295.23.1.051125.BS
Città:
Borgo San Giacomo
Categoria:
Villa
Locali:
13
Camere:
3
Bagni:
4
Mq:
318
Box:
1
Piano:
Terra
Anno:
1967
Classe energetica:
G
Stato Immobile:
Buono
Grado:
Medio
Arredi:
Non Arredato
Tipo Soggiorno:
Soggiorno
Tipo Cucina:
Abitabile
Riscaldamento:
Autonomo
Tipo Riscaldam.:
Caldaia
Tipo Impianto:
Radiatori
Fonte Energetica:
Metano
Acqua Calda:
Autonoma
Accesso Disabili:
No
Mappa
strada Provinciale 11 25022, 24 - Borgo San Giacomo (BS)
Virtual tour
Richiedi informazioni
Invia
Cookie preference