Acquisto Assistito in Asta e Pre-Asta

In vendita
Appartamento
Gualdo Tadino
30.000 €
Descrizione
Acquisto Assistito in Asta e Pre-Asta
Per maggiori proposte visita il sito dell’agenzia: www.asteagency.com

Verifica fattibilità d’acquisto in PRE-ASTA

DATA ASTA: 27/05/2026

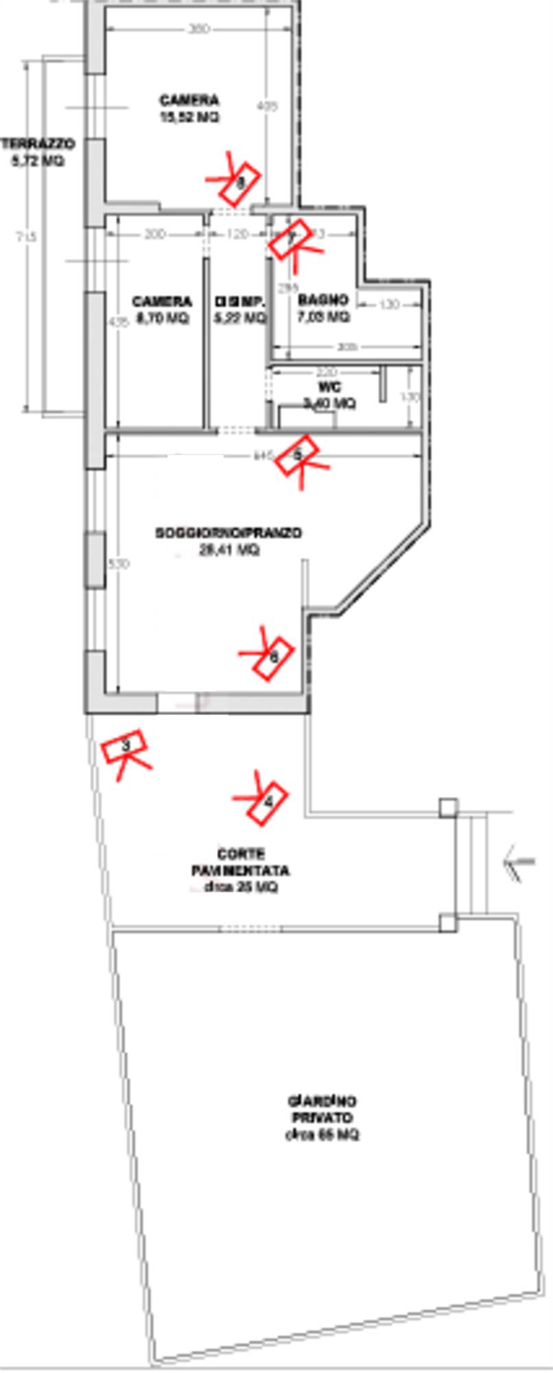
UBICAZIONE E DESCRIZIONE:
Via V Luglio, 19, 06023 Gualdo Tadino PG
Descrizione sintetica: appartamento al piano terra, composto da zona giorno con angolo cottura, due bagni, camera matrimoniale e cameretta/studio. L’unità immobiliare è articolata su un unico livello con ingresso autonomo e corte esclusiva, che risulta in parte pavimentata ed in parte lasciata a giardino di mq 90,00. Terrazza di 5,72 mq.

Aste Agency SRL offre il servizio di assistenza per acquistare tramite un mutuo con banche convenzionate. Assiste ed indirizza, dall’aggiudicazione fino alla consegna delle chiavi.

PERCHE’ COMPRARE ALL’ASTA:
- Acquisto sicuro tramite Tribunale;
- Prezzo inferiore rispetto al mercato libero, quindi rata del mutuo più bassa;
- Banche convenzionate con i Tribunali;
- Nessun vincolo di prezzo nella rivendita e nella locazione.

Le Aste Giudiziarie sono soluzioni abitative a prezzi unici, in quanto si compera ad un prezzo inferiore, paragonato alla realtà proibitiva del mercato libero, e l’investimento immobiliare risulta essere sicuramente conveniente.
Per maggiori delucidazioni vi invitiamo a contattarci. Sarà nostra premura fissare un appuntamento in studio e trasferirvi tutte le informazioni necessarie per un’attenta e serena valutazione.

ASTE AGENCY SRL – Contattateci per un appuntamento presso uno dei nostri uffici o in videochiamata.
Caratteristiche principali
Codice:
275.24.270526.PG
Città:
Gualdo Tadino
Categoria:
Appartamento
Locali:
3
Camere:
2
Bagni:
2
Mq:
82
Terrazzi:
1
Piano:
Terra
Anno:
1967
Classe energetica:
G
Stato Immobile:
Buono
Grado:
Medio
Tipo Cucina:
Angolo Cottura
Riscaldamento:
Autonomo
Tipo Impianto:
Radiatori
Fonte Energetica:
Metano
Accesso Disabili:
No
Mappa
Via V Luglio, 19 - Gualdo Tadino (PG)
Planimetrie
Richiedi informazioni
Invia
Cookie preference