Acquisto Assistito - in Asta e Pre-Asta

In vendita
Appartamento
Valdagno
37.575 €
Descrizione
Acquisto Assistito - in Asta e Pre-Asta
Per maggiori proposte visita il sito dell’agenzia: www.asteagency.com

Verifica fattibilità d’acquisto in PRE-ASTA
DATA ASTA : 19/05/26

UBICAZIONE E DESCRIZIONE:
Indirizzo: Via Chiesa di Cerealto 8/B, 36078 Valdagno Vicenza

Descrizione sintetica:
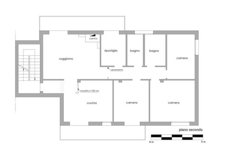
Appartamento al piano secondo composto da disimpegno, ambiente costituito da ampio soggiorno, cucina e sala da pranzo strutturato come open space diviso da pareti interne ma senza porte, corridoio, ripostiglio, due bagni, una camera doppia, due camere singole, due poggioli.

Aste Agency SRL offre il servizio di assistenza per acquistare tramite un mutuo con banche convenzionate. Assiste ed indirizza, dall’aggiudicazione fino alla consegna delle chi avi.

PERCHE’ COMPRARE ALL’ASTA:
- Acquisto sicuro tramite Tribunale;
- Prezzo inferiore rispetto al mercato libero, quindi rata del mutuo più bassa;
- Banche convenzionate con i Tribunali;
- Nessun vincolo di prezzo nella rivendita e nella locazione.

Le Aste Giudiziarie sono soluzioni abitative a prezzi unici, in quanto si compera ad un prezzo inferiore, paragonato alla realtà proibitiva del mercato libero, e l’investimento immobiliare risulta essere sicuramente conveniente.
Per maggiori delucidazioni vi invitiamo a contattarci. Sarà nostra premura fissare un appuntamento in studio e trasferirvi tutte le informazioni necessarie per un’attenta e serena valutazione.

ASTE AGENCY SRL – Contattateci per un appuntamento presso uno dei nostri uffici o in videochiamata.
Caratteristiche principali
Codice:
239.24.1.190526.VI
Città:
Valdagno
Categoria:
Appartamento
Locali:
5
Camere:
3
Bagni:
2
Mq:
142
Piano:
2
Anno:
1970
Classe energetica:
D
Stato Immobile:
Buono
Grado:
Signorile
Arredi:
Non Arredato
Riscaldamento:
Autonomo
Fonte Energetica:
Metano
Accesso Disabili:
No
Mappa
Via Chiesa di Cerealto , 8 - Valdagno (VI)
Planimetrie
Richiedi informazioni
Invia
Cookie preference