Acquisto Assistito - in Asta e Pre-Asta

In vendita
Appartamento
Mira (Dogaletto)
50.342 €
Descrizione
Per maggiori proposte visita il sito dell’agenzia: www.asteagency.com

Verifica fattibilità d’acquisto in PRE-ASTA

DATA ASTA: 24/04/26

UBICAZIONE E DESCRIZIONE:
Via bastie, 134 (Loc. Dogaletto) – 30034 Mira (VE)
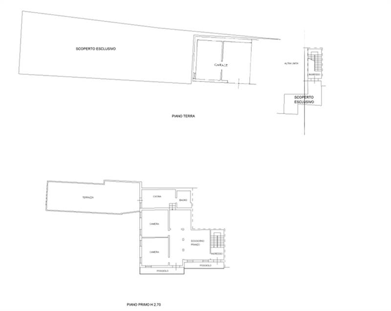
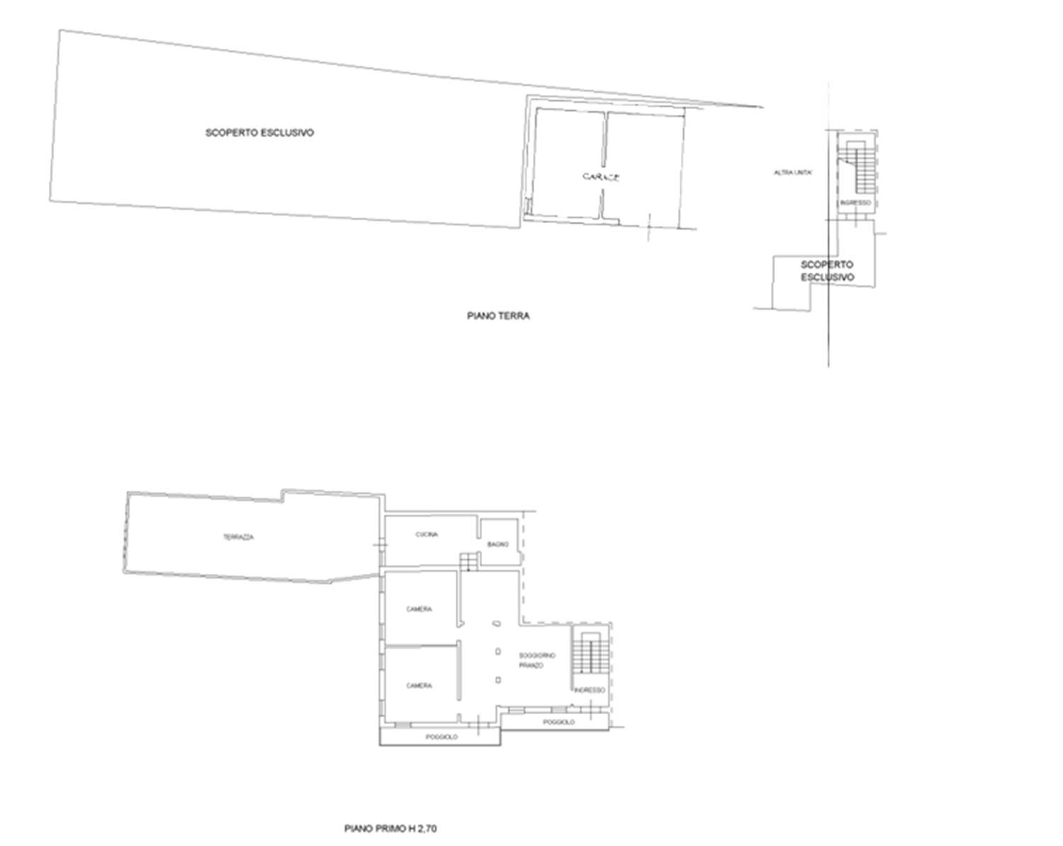
Descrizione sintetica: Unità abitativa, avente una superficie di 104,66 mq, è composta da un piano terra (con ingresso e vano scale indipendente) e da un primo piano. Il primo piano include un pranzo-soggiorno, due camere, disimpegno, cucina e un bagno. Sono presenti due terrazzi a est, con una superficie complessiva di 14,24 mq, e un ampio terrazzo a sud di 61,37 mq, ubicato sopra i locali garage. La proprietà comprende inoltre un garage al piano terra di mq 25,00

Aste Agency SRL offre il servizio di assistenza per acquistare tramite un mutuo con banche convenzionate. Assiste ed indirizza, dall’aggiudicazione fino alla consegna delle chiavi.

PERCHE’ COMPRARE ALL’ASTA:
- Acquisto sicuro tramite Tribunale;
- Prezzo inferiore rispetto al mercato libero, quindi rata del mutuo più bassa;
- Banche convenzionate con i Tribunali;
- Nessun vincolo di prezzo nella rivendita e nella locazione.

Le Aste Giudiziarie sono soluzioni abitative a prezzi unici, in quanto si compera ad un prezzo inferiore, paragonato alla realtà proibitiva del mercato libero, e l’investimento immobiliare risulta essere sicuramente conveniente.
Per maggiori delucidazioni vi invitiamo a contattarci. Sarà nostra premura fissare un appuntamento in studio e trasferirvi tutte le informazioni necessarie per un’attenta e serena valutazione.

ASTE AGENCY SRL – Contattateci per un appuntamento presso uno dei nostri uffici o in videochiamata.
Caratteristiche principali
Codice:
237.24.1.240426.VE
Città:
Mira (Dogaletto)
Categoria:
Appartamento
Locali:
4
Camere:
2
Bagni:
1
Mq:
136
Box:
1
Balconi:
2
Terrazzi:
1
Piano:
1
Anno:
1967
Classe energetica:
G
Stato Immobile:
Buono
Grado:
Signorile
Arredi:
Non Arredato
Tipo Cucina:
Abitabile
Riscaldamento:
Autonomo
Fonte Energetica:
Gas
Accesso Disabili:
No
Mappa
Via bastie, 134 - Mira (VE)
Planimetrie
Richiedi informazioni
Invia
Cookie preference