Acquisto Assistito in Asta e Pre-Asta

In vendita
Appartamento
Cerignola
104.610 €
Descrizione
Acquisto Assistito in Asta Giudiziaria
Per maggiori proposte visita il sito dell’agenzia: www.asteagency.com

Verifica fattibilità d’acquisto in PRE-ASTA

DATA ASTA : 09/06/26

UBICAZIONE E DESCRIZIONE:
Piano San Rocco, 16 Cerignola FG

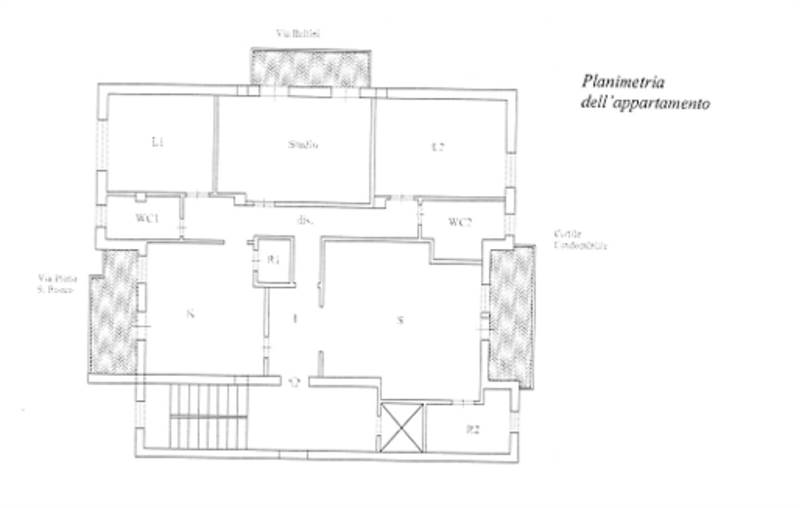
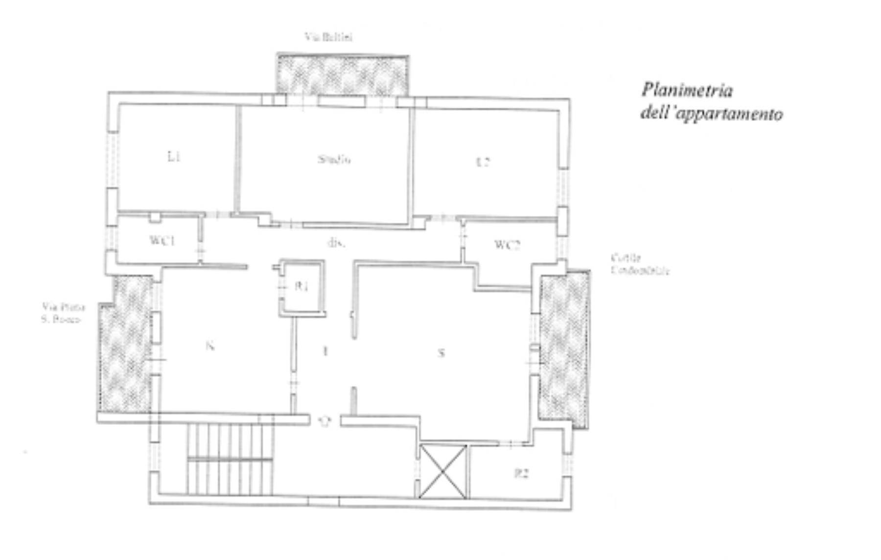
Descrizione sintetica: Appartamento per civile abitazione posto al piano primo, composto da ingresso, sala, cucina, tre camere da letto e due bagni. Box auto di mq 22,00.


Aste Agency SRL offre il servizio di assistenza per acquistare tramite un mutuo con banche convenzionate. Assiste ed indirizza, dall’aggiudicazione fino alla consegna delle chiavi.

PERCHE’ COMPRARE ALL’ASTA:
- Acquisto sicuro tramite Tribunale;
- Prezzo inferiore rispetto al mercato libero, quindi rata del mutuo più bassa;
- Banche convenzionate con i Tribunali;
- Nessun vincolo di prezzo nella rivendita e nella locazione.

Le Aste Giudiziarie sono soluzioni abitative a prezzi unici, in quanto si compera ad un prezzo inferiore, paragonato alla realtà proibitiva del mercato libero, e l’investimento immobiliare risulta essere sicuramente conveniente.
Per maggiori delucidazioni vi invitiamo a contattarci. Sarà nostra premura fissare un appuntamento in studio e trasferirvi tutte le informazioni necessarie per un’attenta e serena valutazione.

ASTE AGENCY SRL – Contattateci per un appuntamento presso uno dei nostri uffici o in videochiamata.
Caratteristiche principali
Codice:
229.21.090626.FG
Città:
Cerignola
Categoria:
Appartamento
Locali:
5
Camere:
3
Bagni:
2
Mq:
188
Box:
1
Mq Box:
22
Piano:
1
Anno:
1970
Classe energetica:
G
Stato Immobile:
Buono
Grado:
Medio
Tipo Cucina:
Abitabile
Riscaldamento:
Autonomo
Tipo Impianto:
Radiatori
Fonte Energetica:
Gas
Accesso Disabili:
No
Mappa
Via piano san rocco, 16 - Cerignola (FG)
Planimetrie
Richiedi informazioni
Invia
Cookie preference