Acquisto Assistito in Asta Giudiziaria

In vendita
Casa singola
Civitanova Marche
44.925 €
Descrizione
Acquisto Assistito in Asta Giudiziaria
Per maggiori proposte visita il sito dell’agenzia: www.asteagency.com

Verifica fattibilità d’acquisto in PRE-ASTA
DATA ASTA: 04/11/2025

Disponibilità: Libero
UBICAZIONE E DESCRIZIONE:
Indirizzo: Contrada Molino 15 - 62012 - Civitanova Marche(MC)
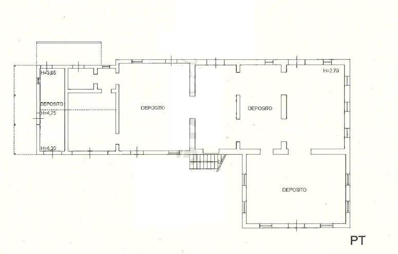
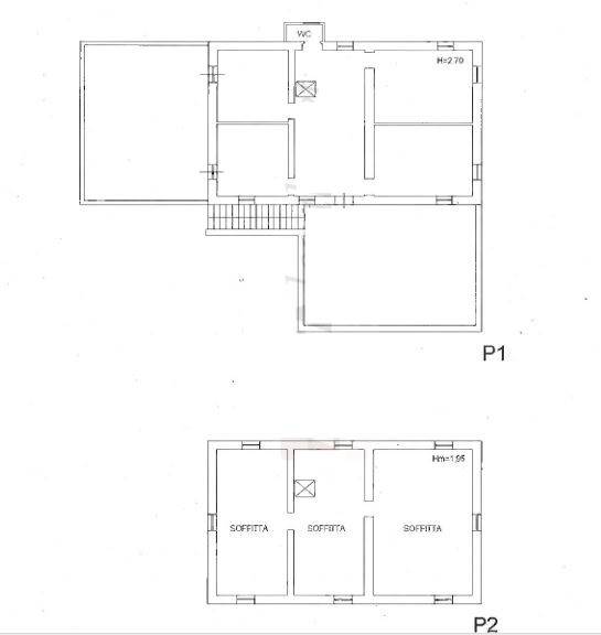
Descrizione sintetica: ex fabbricato colonico con locali deposito, della superficie commerciale di mq 479,56. Trattasi di edificio allo stato grezzo dei primi anni del 1800, oggetto di una ristrutturazione nel 2001, che si eleva su tre piani fuori terra. E’ composto da quattro locali deposito al piano terra, da soggiorno, cucina, due camere, bagno e due terrazze di mq 110,44 al piano primo, da tre locali soffitta di mq 112,34 al piano secondo.

Superficie lorda commerciale mq: 479,56

Aste Agency SRL offre il servizio di assistenza per acquistare tramite un mutuo con banche convenzionate. Assiste ed indirizza, dall’aggiudicazione fino alla consegna delle chiavi.

PERCHE’ COMPRARE ALL’ASTA:
- Acquisto sicuro tramite Tribunale;
- Prezzo inferiore rispetto al mercato libero, quindi rata del mutuo più bassa;
- Banche convenzionate con i Tribunali;
- Nessun vincolo di prezzo nella rivendita e nella locazione.

Le Aste Giudiziarie sono soluzioni abitative a prezzi unici, in quanto si compera ad un prezzo inferiore, paragonato alla realtà proibitiva del mercato libero, e l’investimento immobiliare risulta essere sicuramente conveniente.
Per maggiori delucidazioni vi invitiamo a contattarci. Sarà nostra premura fissare un appuntamento in studio e trasferirvi tutte le informazioni necessarie per un’attenta e serena valutazione.

ASTE AGENCY SRL – Contattateci per un appuntamento presso uno dei nostri uffici o in videochiamata.
Caratteristiche principali
Codice:
214.19.1.041125.MC
Città:
Civitanova Marche
Categoria:
Casa singola
Locali:
4
Camere:
2
Bagni:
1
Mq:
479
Terrazzi:
2
mq Terrazzo:
110,44
Piano:
Terra
Anno:
1967
Classe energetica:
G
Stato Immobile:
Da Ristrutturare
Grado:
Medio
Lati Liberi:
4
Arredi:
Non Arredato
Tipo Cucina:
Abitabile
Riscaldamento:
No
Fonte Energetica:
Metano
Infissi:
Legno
Accesso Disabili:
No
Mappa
Contrada Molino 62012, 15 - Civitanova Marche (MC)
Virtual tour
Richiedi informazioni
Invia
Cookie preference