Acquisto Assistito - in Asta e Pre-Asta

In vendita
Appartamento
Cadegliano Viconago
60.000 €
Descrizione
Acquisto Assistito - in Asta e Pre-Asta
Per maggiori proposte visita il sito dell’agenzia: www.asteagency.com

Verifica fattibilità d’acquisto in PRE-ASTA

DATA ASTA: 29/04/2026

UBICAZIONE E DESCRIZIONE:
Via Pradaccio n. 7, 21031 Cadegliano-Viconago Varese

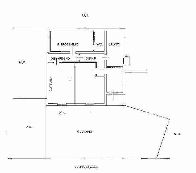
Descrizione sintetica: appartamento al piano terra composto da soggiorno-ingresso-cucina, disimpegno, locale ripostiglio con WC/lavanderia, bagno, camera, locale accessorio con loggia di mq 3,50. Giardino di mq 111,72.


Aste Agency SRL offre il servizio di assistenza per acquistare tramite un mutuo con banche convenzionate. Assiste ed indirizza, dall’aggiudicazione fino alla consegna delle chiavi.

PERCHE’ COMPRARE ALL’ASTA:
- Acquisto sicuro tramite Tribunale;
- Prezzo inferiore rispetto al mercato libero, quindi rata del mutuo più bassa;
- Banche convenzionate con i Tribunali;
- Nessun vincolo di prezzo nella rivendita e nella locazione.

Le Aste Giudiziarie sono soluzioni abitative a prezzi unici, in quanto si compera ad un prezzo inferiore, paragonato alla realtà proibitiva del mercato libero, e l’investimento immobiliare risulta essere sicuramente conveniente.
Per maggiori delucidazioni vi invitiamo a contattarci. Sarà nostra premura fissare un appuntamento in studio e trasferirvi tutte le informazioni necessarie per un’attenta e serena valutazione.

ASTE AGENCY SRL – Contattateci per un appuntamento presso uno dei nostri uffici o in videochiamata.
Caratteristiche principali
Codice:
17.25.1.290426.VA
Città:
Cadegliano Viconago
Categoria:
Appartamento
Locali:
2
Camere:
1
Bagni:
2
Mq:
125
Piano:
Terra
Anno:
1967
Classe energetica:
G
Stato Immobile:
Buono
Grado:
Medio
Tipo Cucina:
Abitabile
Riscaldamento:
Autonomo
Tipo Impianto:
Radiatori
Fonte Energetica:
GPL
Accesso Disabili:
No
Mappa
Via Pradaccio, 7 - Cadegliano Viconago (VA)
Planimetrie
Richiedi informazioni
Invia
Cookie preference