Acquisto Assistito in Asta e Pre-Asta

In vendita
Casa singola
Crocetta del Montello (Ciano del Montello)
363.000 €
Descrizione
Acquisto Assistito in Asta Giudiziaria
Per maggiori proposte visita il sito dell’agenzia: www.asteagency.com

Verifica fattibilità d’acquisto in PRE-ASTA

DATA ASTA : 22/05/26

UBICAZIONE E DESCRIZIONE:
Crocetta del Montello (TV), via Ivo Lollini / Montebelluna (TV), via XVIII Giugno

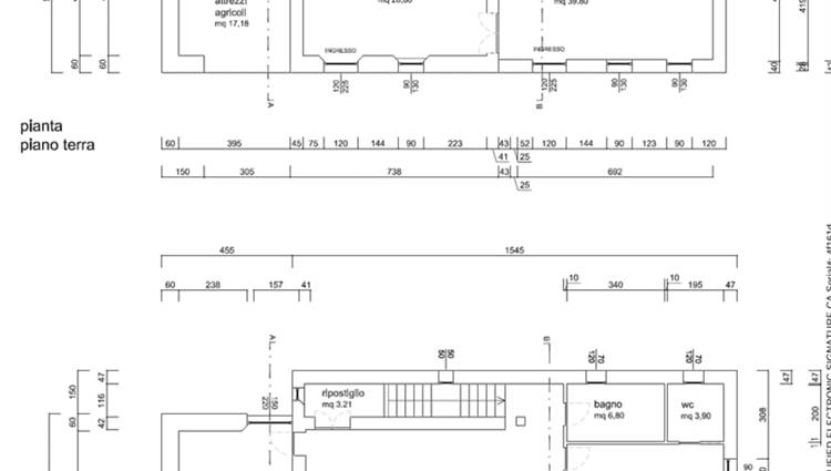
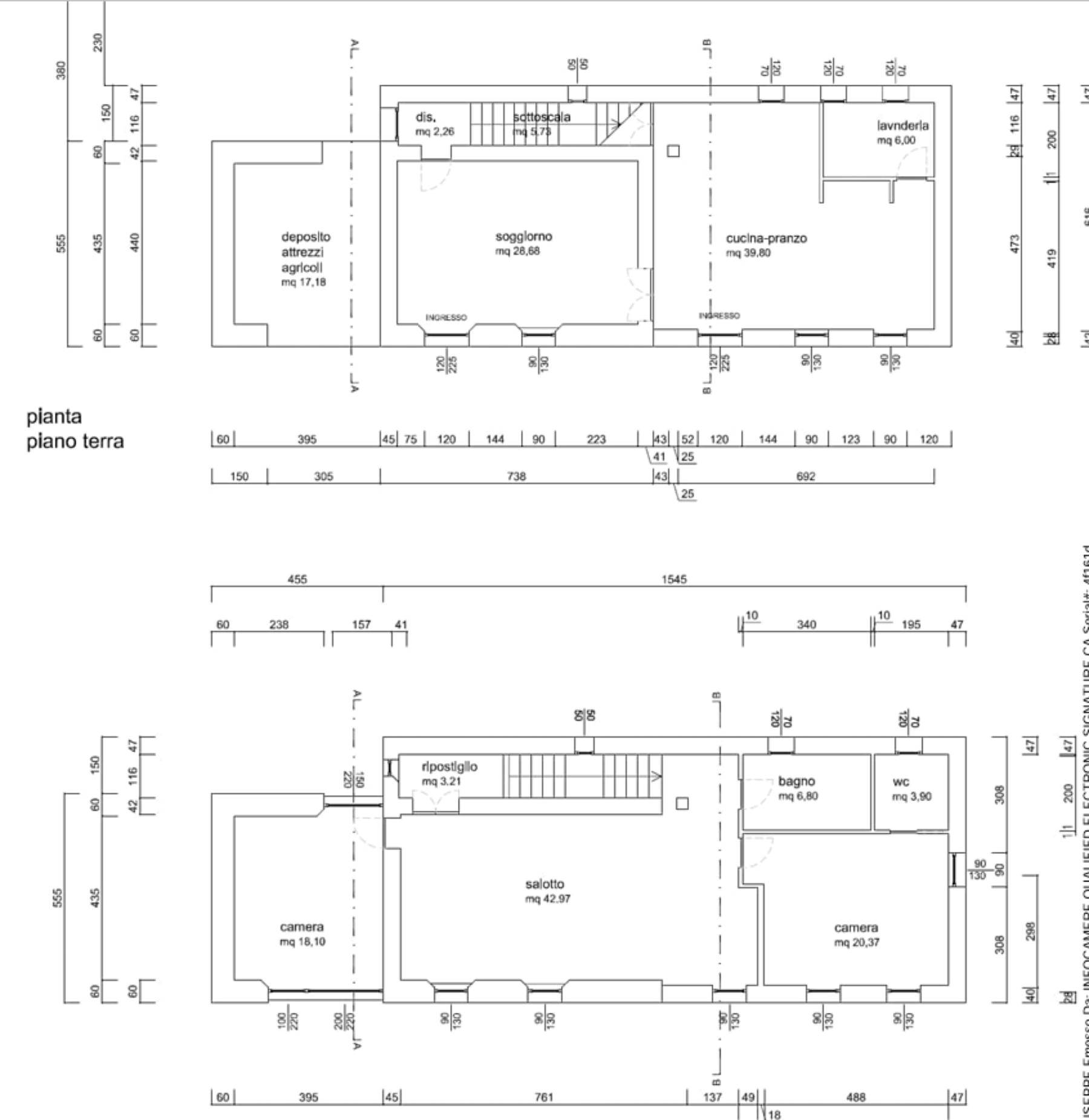
Descrizione sintetica: fabbricato unifamiliare allo stato grezzo, disposto su due livelli, derivante dalla ristrutturazione e ampliamento di un rudere, con struttura portante in muratura e travi in legno a vista. L'immobile risulta così composto:
Piano Terra: soggiorno, cucina pranzo, lavanderia, sottoscala, disimpegno, vano scale, deposito attrezzi agricoli di mq 24,00.
Piano Primo: salotto, camera padronale con bagno, camera doppia, bagno, ripostiglio.
Attualmente l’immobile è privo di impianti, pavimenti, intonaci, serramenti, scala interna e divisori completi; il solaio del primo piano è presente solo con travature in legno.
Terreni pertinenziali ad uso cortile e agricolo di mq 25.176,00.


Aste Agency SRL offre il servizio di assistenza per acquistare tramite un mutuo con banche convenzionate. Assiste ed indirizza, dall’aggiudicazione fino alla consegna delle chiavi.

PERCHE’ COMPRARE ALL’ASTA:
- Acquisto sicuro tramite Tribunale;
- Prezzo inferiore rispetto al mercato libero, quindi rata del mutuo più bassa;
- Banche convenzionate con i Tribunali;
- Nessun vincolo di prezzo nella rivendita e nella locazione.

Le Aste Giudiziarie sono soluzioni abitative a prezzi unici, in quanto si compera ad un prezzo inferiore, paragonato alla realtà proibitiva del mercato libero, e l’investimento immobiliare risulta essere sicuramente conveniente.
Per maggiori delucidazioni vi invitiamo a contattarci. Sarà nostra premura fissare un appuntamento in studio e trasferirvi tutte le informazioni necessarie per un’attenta e serena valutazione.

ASTE AGENCY SRL – Contattateci per un appuntamento presso uno dei nostri uffici o in videochiamata.
Caratteristiche principali
Codice:
167.24.2.220526.TV
Città:
Crocetta del Montello (Ciano del Montello)
Categoria:
Casa singola
Locali:
5
Camere:
2
Bagni:
2
Mq:
250
Mq Giardino:
25176
Piano:
Terra
Anno:
1967
Anno ristrutturazione:
2022
Classe energetica:
Non dichiarata
Stato Immobile:
In Costruzione
Grado:
Medio
Tipo Cucina:
Abitabile
Riscaldamento:
No
Accesso Disabili:
No
Accessori
Lavanderia
Ripostiglio
Mappa
Via XVIII Giugno - Crocetta del Montello (TV)
Planimetrie
Richiedi informazioni
Invia
Cookie preference