Acquisto Assistito - in Asta e Pre-Asta

In vendita
Appartamento
Salgareda
29.475 €
Descrizione
Per maggiori proposte visita il sito dell’agenzia: www.asteagency.com

Verifica fattibilità d’acquisto in PRE-ASTA

DATA ASTA: 26/03/26

UBICAZIONE E DESCRIZIONE:
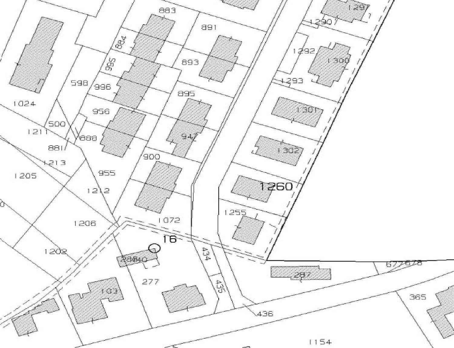
Via Europa n. 41 - 31040 Salgareda (TV)
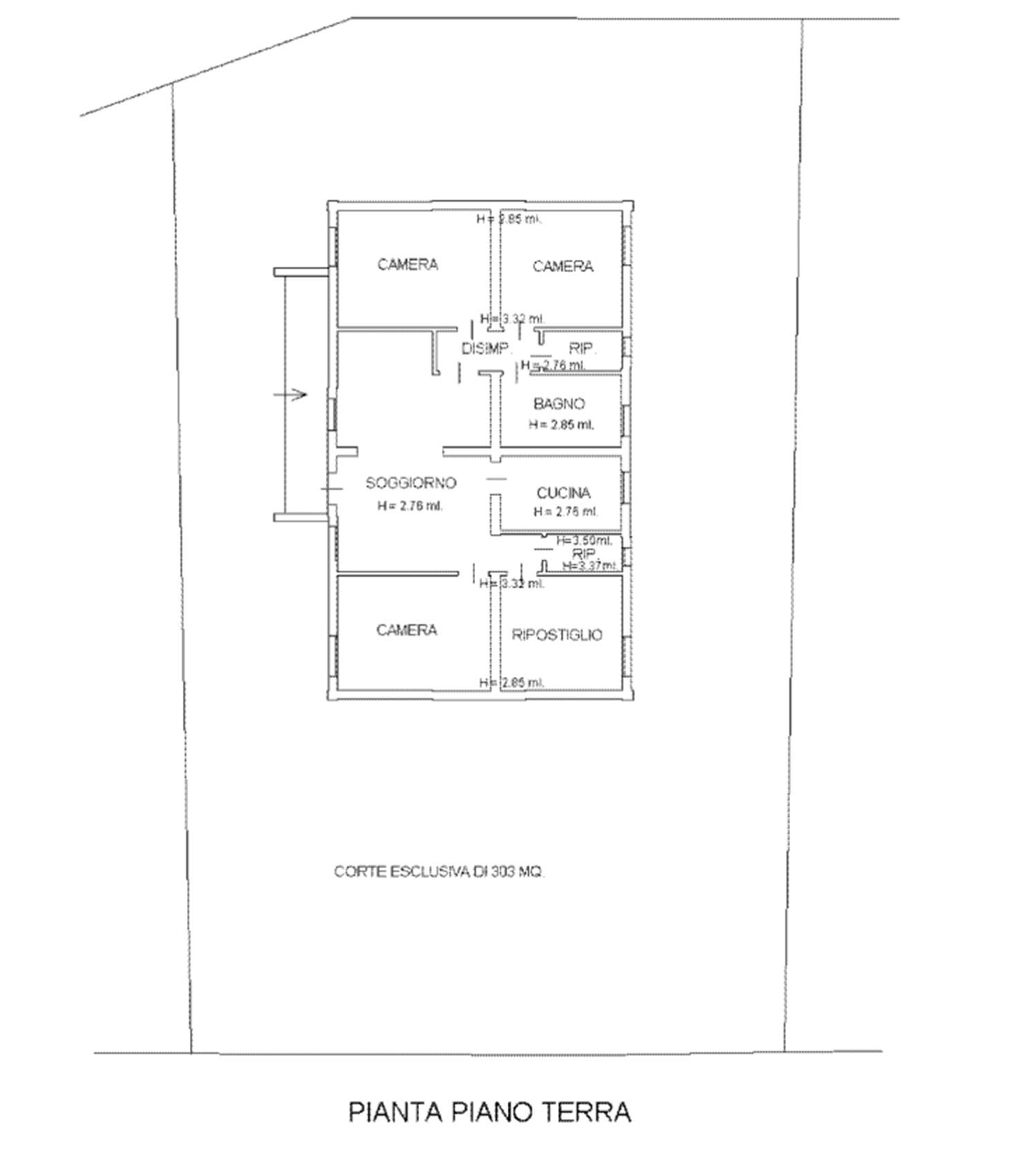
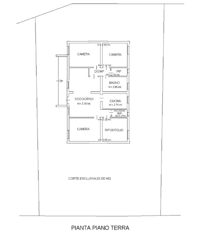
Descrizione sintetica: Trattasi di unità immobiliare di mq 102,00 catastali, composta da una cucina, un soggiorno, un bagno, tre camere, tre ripostigli e un disimpegno, compreso di area scoperta esclusiva di circa 303,00 mq.

Aste Agency SRL offre il servizio di assistenza per acquistare tramite un mutuo con banche convenzionate. Assiste ed indirizza, dall’aggiudicazione fino alla consegna delle chiavi.

PERCHE’ COMPRARE ALL’ASTA:
- Acquisto sicuro tramite Tribunale;
- Prezzo inferiore rispetto al mercato libero, quindi rata del mutuo più bassa;
- Banche convenzionate con i Tribunali;
- Nessun vincolo di prezzo nella rivendita e nella locazione.

Le Aste Giudiziarie sono soluzioni abitative a prezzi unici, in quanto si compera ad un prezzo inferiore, paragonato alla realtà proibitiva del mercato libero, e l’investimento immobiliare risulta essere sicuramente conveniente.
Per maggiori delucidazioni vi invitiamo a contattarci. Sarà nostra premura fissare un appuntamento in studio e trasferirvi tutte le informazioni necessarie per un’attenta e serena valutazione.

ASTE AGENCY SRL – Contattateci per un appuntamento presso uno dei nostri uffici o in videochiamata.
Caratteristiche principali
Codice:
162.16.260326.TV
Città:
Salgareda
Categoria:
Appartamento
Locali:
5
Camere:
3
Bagni:
1
Mq:
102
Piano:
Terra
Anno:
1967
Classe energetica:
G
Stato Immobile:
Abitabile
Grado:
Signorile
Arredi:
Non Arredato
Tipo Cucina:
Abitabile
Riscaldamento:
No
Accesso Disabili:
Nessuna Barriera
Mappa
Via europa, 41 - Salgareda (TV)
Planimetrie
Richiedi informazioni
Invia
Cookie preference