Acquisto Assistito in Asta e Pre-Asta

In vendita
Casa singola
Santeramo in Colle
93.087 €
Descrizione
Acquisto Assistito in Asta e Pre-Asta
Per maggiori proposte visita il sito dell’agenzia: www.asteagency.com

Verifica fattibilità d’acquisto in PRE-ASTA

DATA ASTA: 19/05/2026

UBICAZIONE E DESCRIZIONE:
C.da Gravinella – De Luca II, 3/A, 70029 Santeramo in Colle Bari

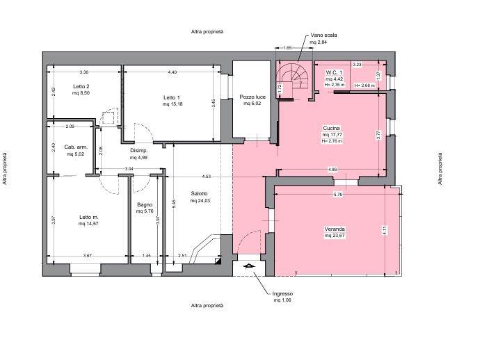
Descrizione sintetica: Abitazione indipendente al piano terra e deposito posto al piano seminterrato di mq 74,87 al quale si accede attraverso una scala interna. L’abitazione al piano terra si compone di salotto, cucina, W.C., disimpegno, tre camere da letto, bagno e veranda di mq 23,67.

Aste Agency SRL offre il servizio di assistenza per acquistare tramite un mutuo con banche convenzionate. Assiste ed indirizza, dall’aggiudicazione fino alla consegna delle chiavi.

PERCHE’ COMPRARE ALL’ASTA:
- Acquisto sicuro tramite Tribunale;
- Prezzo inferiore rispetto al mercato libero, quindi rata del mutuo più bassa;
- Banche convenzionate con i Tribunali;
- Nessun vincolo di prezzo nella rivendita e nella locazione.

Le Aste Giudiziarie sono soluzioni abitative a prezzi unici, in quanto si compera ad un prezzo inferiore, paragonato alla realtà proibitiva del mercato libero, e l’investimento immobiliare risulta essere sicuramente conveniente.
Per maggiori delucidazioni vi invitiamo a contattarci. Sarà nostra premura fissare un appuntamento in studio e trasferirvi tutte le informazioni necessarie per un’attenta e serena valutazione.

ASTE AGENCY SRL – Contattateci per un appuntamento presso uno dei nostri uffici o in videochiamata.
Caratteristiche principali
Codice:
160.24.190526.BA
Città:
Santeramo in Colle
Categoria:
Casa singola
Locali:
5
Camere:
3
Bagni:
2
Mq:
195
Piano:
Terra
Anno:
1967
Classe energetica:
G
Stato Immobile:
Buono
Grado:
Medio
Tipo Cucina:
Abitabile
Riscaldamento:
Autonomo
Tipo Impianto:
Radiatori
Fonte Energetica:
Metano
Accesso Disabili:
No
Mappa
SP 128 C.da Gravinella – De Luca II, 3/A - Santeramo in Colle (BA)
Richiedi informazioni
Invia
Cookie preference