Descrizione
Acquisto Assistito in Asta Giudiziaria
Per maggiori proposte visita il sito dell’agenzia: www.asteagency.com
Verifica fattibilità d’acquisto in PRE-ASTA
DATA ASTA : 17/04/26
Disponibilità: Libero
UBICAZIONE E DESCRIZIONE:
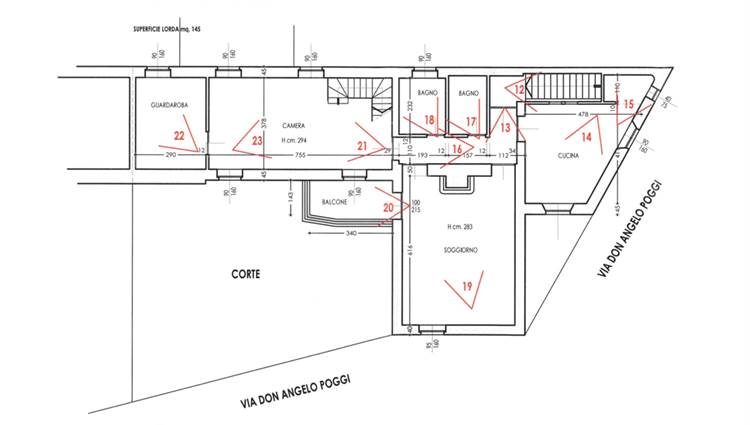
Indirizzo: Via Don Angelo Poggi 9, Borghetto Lodigiano LO
Descrizione sintetica:
Abitazione unifamiliare, con accesso indipendente, composta da un ingresso al piano terra e quattro locali più servizi al piano primo, precisamente: soggiorno, cucina abitabile, ampia camera da letto, locale guardaroba, doppi servizi e balcone di mq 7,00. Negozio, parte del fabbricato composto da due ampi locali, della superficie totale di 99,00 mq.
Aste Agency SRL offre il servizio di assistenza per acquistare tramite un mutuo con banche convenzionate. Assiste ed indirizza, dall’aggiudicazione fino alla consegna delle chiavi.
PERCHE’ COMPRARE ALL’ASTA:
- Acquisto sicuro tramite Tribunale;
- Prezzo inferiore rispetto al mercato libero, quindi rata del mutuo più bassa;
- Banche convenzionate con i Tribunali;
- Nessun vincolo di prezzo nella rivendita e nella locazione.
Le Aste Giudiziarie sono soluzioni abitative a prezzi unici, in quanto si compera ad un prezzo inferiore, paragonato alla realtà proibitiva del mercato libero, e l’investimento immobiliare risulta essere sicuramente conveniente.
Per maggiori delucidazioni vi invitiamo a contattarci. Sarà nostra premura fissare un appuntamento in studio e trasferirvi tutte le informazioni necessarie per un’attenta e serena valutazione.
ASTE AGENCY SRL – Contattateci per un appuntamento presso uno dei nostri uffici o in videochiamata.