Acquisto Assistito - in Asta e Pre-Asta

In vendita
Appartamento
Bonemerse
241.538 €
Descrizione
Acquisto Assistito in Asta Giudiziaria
Per maggiori proposte visita il sito dell’agenzia: www.asteagency.com

Verifica fattibilità d’acquisto in PRE-ASTA

DATA ASTA : 21/05/26

UBICAZIONE E DESCRIZIONE:
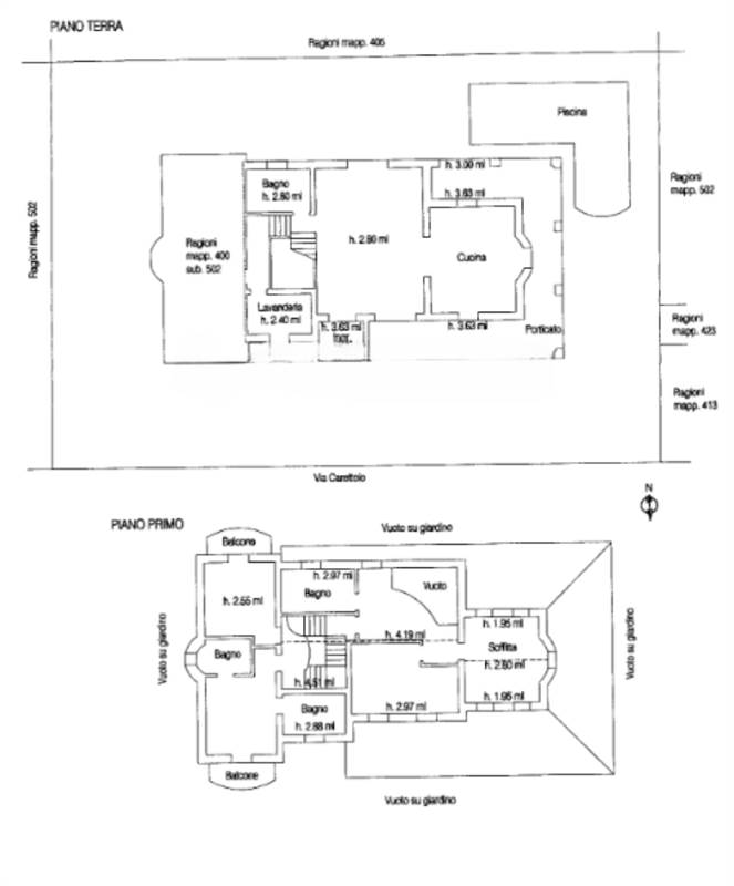
Indirizzo: Via Carettolo, 6 Bonemerse (CR)
Descrizione sintetica:
Villa con giardino e piscina, al piano interrato ci sono locali accessori, al piano terra si trovano soggiorno, cucina, bagno, porticato e garage di 36,00 mq, al primo piano quattro camere da letto e due bagni e due balconi.
 

Aste Agency SRL offre il servizio di assistenza per acquistare tramite un mutuo con banche convenzionate. Assiste ed indirizza, dall’aggiudicazione fino alla consegna delle chiavi.

PERCHE’ COMPRARE ALL’ASTA:
- Acquisto sicuro tramite Tribunale;
- Prezzo inferiore rispetto al mercato libero, quindi rata del mutuo più bassa;
- Banche convenzionate con i Tribunali;
- Nessun vincolo di prezzo nella rivendita e nella locazione.

Le Aste Giudiziarie sono soluzioni abitative a prezzi unici, in quanto si compera ad un prezzo inferiore, paragonato alla realtà proibitiva del mercato libero, e l’investimento immobiliare risulta essere sicuramente conveniente.
Per maggiori delucidazioni vi invitiamo a contattarci. Sarà nostra premura fissare un appuntamento in studio e trasferirvi tutte le informazioni necessarie per un’attenta e serena valutazione.

ASTE AGENCY SRL – Contattateci per un appuntamento presso uno dei nostri uffici o in videochiamata.


Caratteristiche principali
Codice:
155.22.210526.CR
Città:
Bonemerse
Categoria:
Appartamento
Locali:
6
Camere:
4
Bagni:
3
Mq:
248
Piano:
Terra
Anno:
2006
Classe energetica:
G
Stato Immobile:
Buono
Grado:
Medio
Arredi:
Non Arredato
Tipo Cucina:
Abitabile
Riscaldamento:
Autonomo
Tipo Impianto:
Radiatori
Fonte Energetica:
Metano
Accesso Disabili:
No
Mappa
Via Carettolo , 6 - Bonemerse (CR)
Planimetrie
Richiedi informazioni
Invia
Cookie preference