Acquisto Assistito in Asta Giudiziaria

In vendita
Porzione di Casa
Fagnano Olona
136.875 €
Descrizione
Acquisto Assistito in Asta Giudiziaria
Per maggiori proposte visita il sito dell’agenzia:
www.asteagency.com

Verifica fattibilità d’acquisto in PRE-ASTA
DATA ASTA : 05/05/2026

UBICAZIONE E DESCRIZIONE:
Indirizzo: Via Salvo D'Acquisto 4/c - Fagnano Olona (VA)
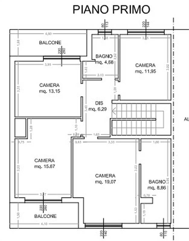
Descrizione sintetica: porzione di bifamiliare di 256 mq. Al piano terra/rialzato è presente un ampio locale adibito a soggiorno-pranzo, disimpegno e bagno, vano scala di collegamento ai vari piani, cucina con portico esterno che permette l'accesso al terrazzo sovrastante l'autorimessa di proprietà. Al piano primo, accessibile tramite vano scala interno, è presente la zona notte dell'abitazione, dove sono presenti un disimpegno, quattro camere da letto e due bagni, oltre a due balconi con affaccio su area di proprietà. Si segnala inoltre la presenza sul soffitto di botola di accesso al sottotetto non agibile dell'unità. Al piano interrato, accessibile da vano scala interno e da autorimessa adiacente e di proprietà, sono presenti i locali accessori dell'abitazione principale e caratterizzati da locali cantina, disimpegno e centrale termica.

Aste Agency SRL offre il servizio di assistenza per acquistare tramite un mutuo con banche convenzionate. Assiste ed indirizza, dall’aggiudicazione fino alla consegna delle chiavi.

PERCHE’ COMPRARE ALL’ASTA:
- Acquisto sicuro tramite Tribunale;
- Prezzo inferiore rispetto al mercato libero, quindi rata del mutuo più bassa;
- Banche convenzionate con i Tribunali;
- Nessun vincolo di prezzo nella rivendita e nella locazione.

Le Aste Giudiziarie sono soluzioni abitative a prezzi unici, in quanto si compera ad un prezzo inferiore, paragonato alla realtà proibitiva del mercato libero, e l’investimento immobiliare risulta essere sicuramente conveniente.
Per maggiori delucidazioni vi invitiamo a contattarci. Sarà nostra premura fissare un appuntamento in studio e trasferirvi tutte le informazioni necessarie per un’attenta e serena valutazione.

ASTE AGENCY SRL – Contattateci per un appuntamento presso uno dei nostri uffici o in videochiamata.
Caratteristiche principali
Codice:
153.25.1.050526.VA
Città:
Fagnano Olona
Categoria:
Porzione di Casa
Locali:
9
Camere:
4
Bagni:
2
Mq:
256,5
Box:
1
Balconi:
2
Piano:
Terra
Anno:
1970
Anno ristrutturazione:
2003
Classe energetica:
G
Stato Immobile:
Buono
Grado:
Medio
Giardino:
Privato
Arredi:
Non Arredato
Tipo Cucina:
Abitabile
Riscaldamento:
Autonomo
Fonte Energetica:
Metano
Acqua Calda:
Autonoma
Accesso Disabili:
No
Mappa
Via salvo d'acquisto, 4/c - Fagnano Olona (VA)
Planimetrie
Richiedi informazioni
Invia
Cookie preference