Acquisto Assistito in Asta Giudiziaria

In vendita
Appartamento
Milano
697.500 €
Descrizione
Acquisto Assistito in Asta Giudiziaria
Per maggiori proposte visita il sito dell’agenzia:
www.asteagency.com

Verifica fattibilità d’acquisto in PRE-ASTA
DATA ASTA : 29/05/2026

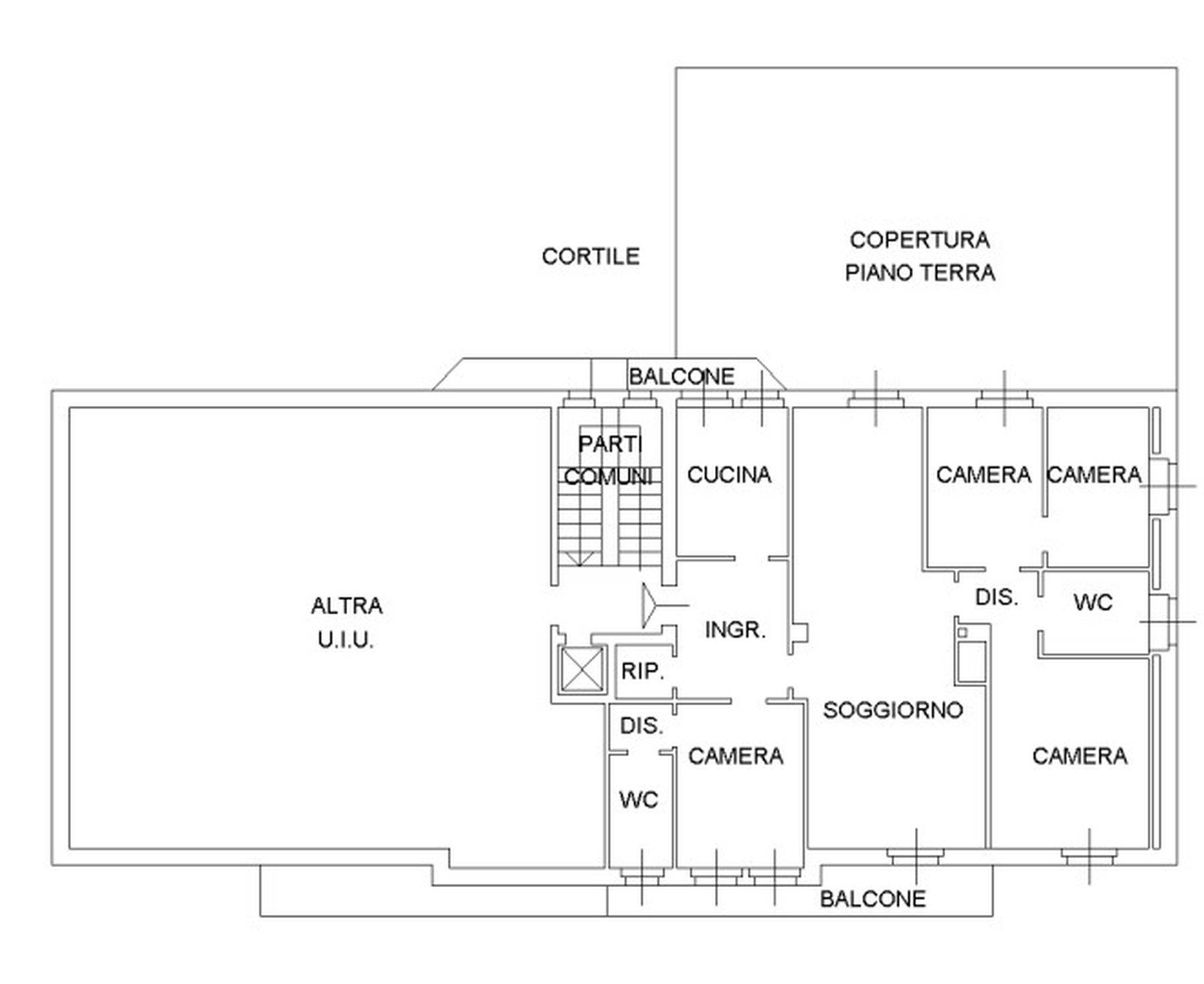
UBICAZIONE E DESCRIZIONE:
Indirizzo: Via Anco Marzio, 2 – Milano (MI)
Descrizione sintetica: appartamento di 144 mq posto al terzo piano e composto da sei locali oltre servizi, con annesso vano di cantina di 24 mq al piano cantinato e più precisamente da ingresso, salone doppio, cucina, tre camere, due disimpegni, due bagni e due balconi.

Aste Agency SRL offre il servizio di assistenza per acquistare tramite un mutuo con banche convenzionate. Assiste ed indirizza, dall’aggiudicazione fino alla consegna delle chiavi.

PERCHE’ COMPRARE ALL’ASTA:
- Acquisto sicuro tramite Tribunale;
- Prezzo inferiore rispetto al mercato libero, quindi rata del mutuo più bassa;
- Banche convenzionate con i Tribunali;
- Nessun vincolo di prezzo nella rivendita e nella locazione.

Le Aste Giudiziarie sono soluzioni abitative a prezzi unici, in quanto si compera ad un prezzo inferiore, paragonato alla realtà proibitiva del mercato libero, e l’investimento immobiliare risulta essere sicuramente conveniente.
Per maggiori delucidazioni vi invitiamo a contattarci. Sarà nostra premura fissare un appuntamento in studio e trasferirvi tutte le informazioni necessarie per un’attenta e serena valutazione.

ASTE AGENCY SRL – Contattateci per un appuntamento presso uno dei nostri uffici o in videochiamata.
Caratteristiche principali
Codice:
12716.25.290526.MI
Città:
Milano
Categoria:
Appartamento
Locali:
9
Camere:
3
Bagni:
2
Mq:
144
Box:
1
Balconi:
2
Anno:
1967
Classe energetica:
G
Stato Immobile:
Buono
Grado:
Medio
Arredi:
Non Arredato
Tipo Soggiorno:
Doppio
Tipo Cucina:
Abitabile
Riscaldamento:
Centralizzato
Tipo Impianto:
Radiatori
Fonte Energetica:
Metano
Acqua Calda:
Autonoma
Accesso Disabili:
No
Accessori
Ascensore
Mappa
Via Anco Marzio, 2 - Milano (MI)
Richiedi informazioni
Invia
Cookie preference