Acquisto Assistito - in Asta e Pre-Asta

In vendita
Villa
Gazzo
331.313 €
Descrizione
Acquisto Assistito in Asta Giudiziaria
Per maggiori proposte visita il sito dell’agenzia: www.asteagency.com

Verifica fattibilità d’acquisto in PRE-ASTA

DATA ASTA : 17/03/26

Disponibilità: Libero

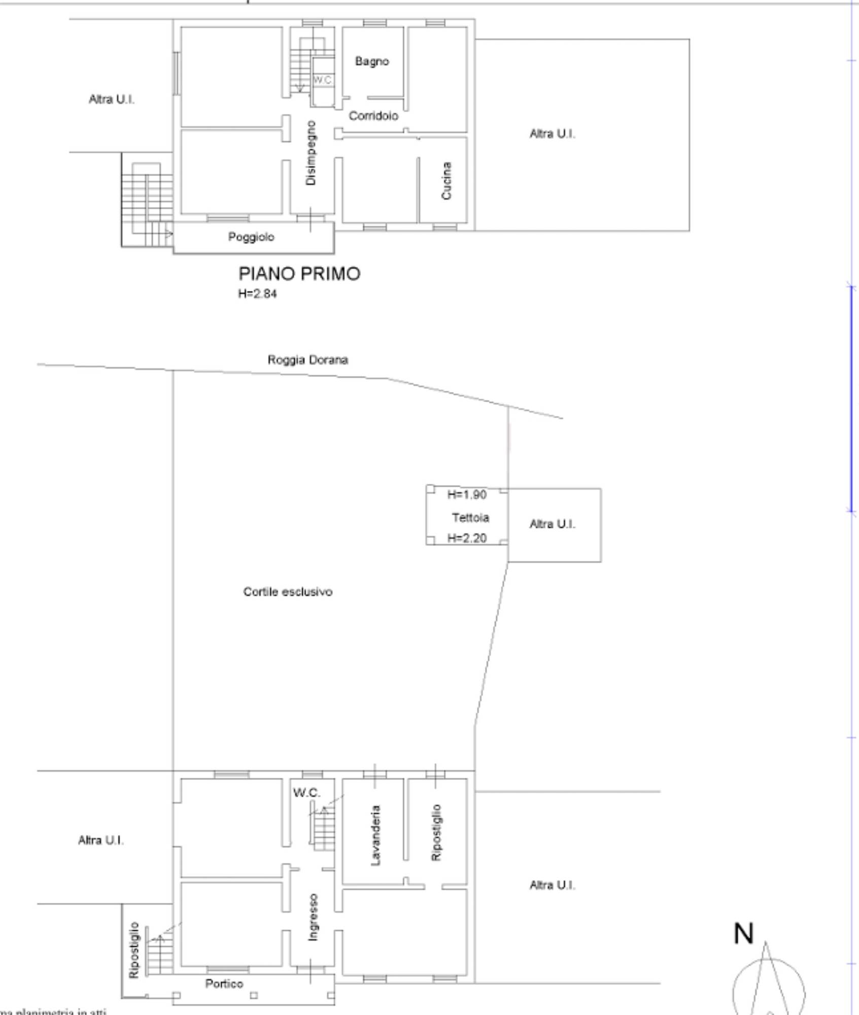
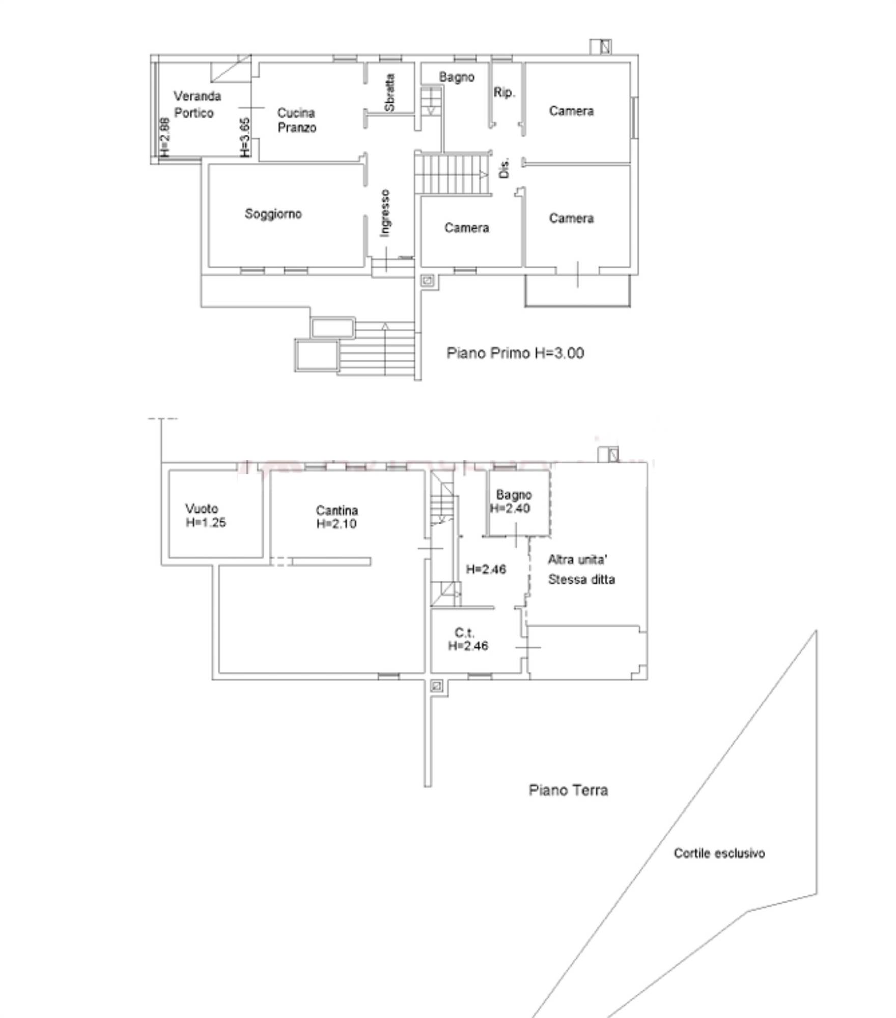
UBICAZIONE E DESCRIZIONE:
Indirizzo: Via Pastoreria, 10, 35010 Pastoreria, Gazzo PD

Descrizione sintetica:
Villetta singola, dislocata ai piani terra e primo con corte esclusiva di mq 440,00 e box auto.
Accostata alla stessa è presente un'altra abitazione, sempre piano terra e primo, con cortile esclusivo di mq 238,00 e box auto di mq 26,00. Una porzione di laboratorio di mq 91,00 con annesso spazio esterno di mq 77,00 e annesso rustico di mq 31,00, rimessa agricola, legnaia e terreno di mq 1.295,00. La prima abitazione si compone di cantina e bagno al piano terra, veranda, ingresso, cucina, soggiorno, tre camere, bagno e ripostiglio al piano primo. L'abitazione adiacente si compone di lavanderia, ripostiglio, ingresso, bagno e portico al piano terra, cucina, pranzo, soggiorno, due camere, bagno al piano primo.


Aste Agency SRL offre il servizio di assistenza per acquistare tramite un mutuo con banche convenzionate. Assiste ed indirizza, dall’aggiudicazione fino alla consegna delle chiavi.

PERCHE’ COMPRARE ALL’ASTA:
- Acquisto sicuro tramite Tribunale;
- Prezzo inferiore rispetto al mercato libero, quindi rata del mutuo più bassa;
- Banche convenzionate con i Tribunali;
- Nessun vincolo di prezzo nella rivendita e nella locazione.

Le Aste Giudiziarie sono soluzioni abitative a prezzi unici, in quanto si compera ad un prezzo inferiore, paragonato alla realtà proibitiva del mercato libero, e l’investimento immobiliare risulta essere sicuramente conveniente.
Per maggiori delucidazioni vi invitiamo a contattarci. Sarà nostra premura fissare un appuntamento in studio e trasferirvi tutte le informazioni necessarie per un’attenta e serena valutazione.

ASTE AGENCY SRL – Contattateci per un appuntamento presso uno dei nostri uffici o in videochiamata.
Caratteristiche principali
Codice:
110.24.170326.PD
Città:
Gazzo
Categoria:
Villa
Locali:
10
Camere:
5
Bagni:
4
Mq:
397
Box:
2
Mq Giardino:
440
Piano:
Terra
Anno:
1968
Classe energetica:
G
Stato Immobile:
Buono
Grado:
Medio
Giardino:
Privato
Tipo Cucina:
Abitabile
Riscaldamento:
Autonomo
Fonte Energetica:
Metano
Raffrescamento:
Split
Accesso Disabili:
No
Accessori
Aria Condizionata
Camino
Canna Fumaria
Lavanderia
Ripostiglio
Mappa
Via Pastoreria, 10 - Gazzo (PD)
Richiedi informazioni
Invia
Cookie preference