Acquisto Assistito in Asta e Pre-Asta

In vendita
Appartamento
Poggiardo
11.190 €
Descrizione
Acquisto Assistito in Asta Giudiziaria
Per maggiori proposte visita il sito dell’agenzia: www.asteagency.com

Verifica fattibilità d’acquisto in PRE-ASTA

DATA ASTA : 20/05/26

UBICAZIONE E DESCRIZIONE:
Via Giovanni Michele Laggetto, 28 Poggiardo LE

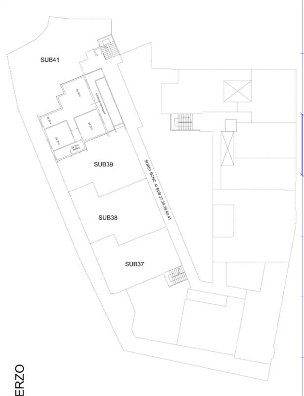
Descrizione sintetica: appartamento posto al piano terzo, edificio D, con posto auto di mq 13,00 al piano seminterrato. Si compone di soggiorno/pranzo con angolo cottura, due camere, bagno , disimpegno e ballatoio di pertinenza di mq 14,80.


Aste Agency SRL offre il servizio di assistenza per acquistare tramite un mutuo con banche convenzionate. Assiste ed indirizza, dall’aggiudicazione fino alla consegna delle chiavi.

PERCHE’ COMPRARE ALL’ASTA:
- Acquisto sicuro tramite Tribunale;
- Prezzo inferiore rispetto al mercato libero, quindi rata del mutuo più bassa;
- Banche convenzionate con i Tribunali;
- Nessun vincolo di prezzo nella rivendita e nella locazione.

Le Aste Giudiziarie sono soluzioni abitative a prezzi unici, in quanto si compera ad un prezzo inferiore, paragonato alla realtà proibitiva del mercato libero, e l’investimento immobiliare risulta essere sicuramente conveniente.
Per maggiori delucidazioni vi invitiamo a contattarci. Sarà nostra premura fissare un appuntamento in studio e trasferirvi tutte le informazioni necessarie per un’attenta e serena valutazione.

ASTE AGENCY SRL – Contattateci per un appuntamento presso uno dei nostri uffici o in videochiamata.
Caratteristiche principali
Codice:
109.24.200526.LE
Città:
Poggiardo
Categoria:
Appartamento
Locali:
3
Camere:
2
Bagni:
1
Mq:
104
Posti auto:
1
Piano:
3
Anno:
2006
Classe energetica:
G
Stato Immobile:
Buono
Grado:
Medio
Tipo Cucina:
Angolo Cottura
Riscaldamento:
Autonomo
Tipo Impianto:
Radiatori
Fonte Energetica:
Metano
Raffrescamento:
Predisposizione
Accesso Disabili:
No
Accessori
Aria Condizionata
Mappa
Via Giovanni Michele Laggetto , 28 - Poggiardo (LE)
Planimetrie
Richiedi informazioni
Invia
Cookie preference