Acquisto Assistito - in Asta e Pre-Asta

In vendita
Casa singola
Ortona
138.375 €
Descrizione
Acquisto Assistito in Asta Giudiziaria
Per maggiori proposte visita il sito dell’agenzia: www.asteagency.com

Verifica fattibilità d’acquisto in PRE-ASTA

DATA ASTA : 19/05/26

UBICAZIONE E DESCRIZIONE:
Contrada Colombo, Ortona CH

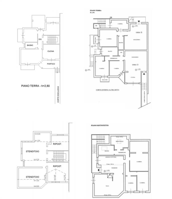
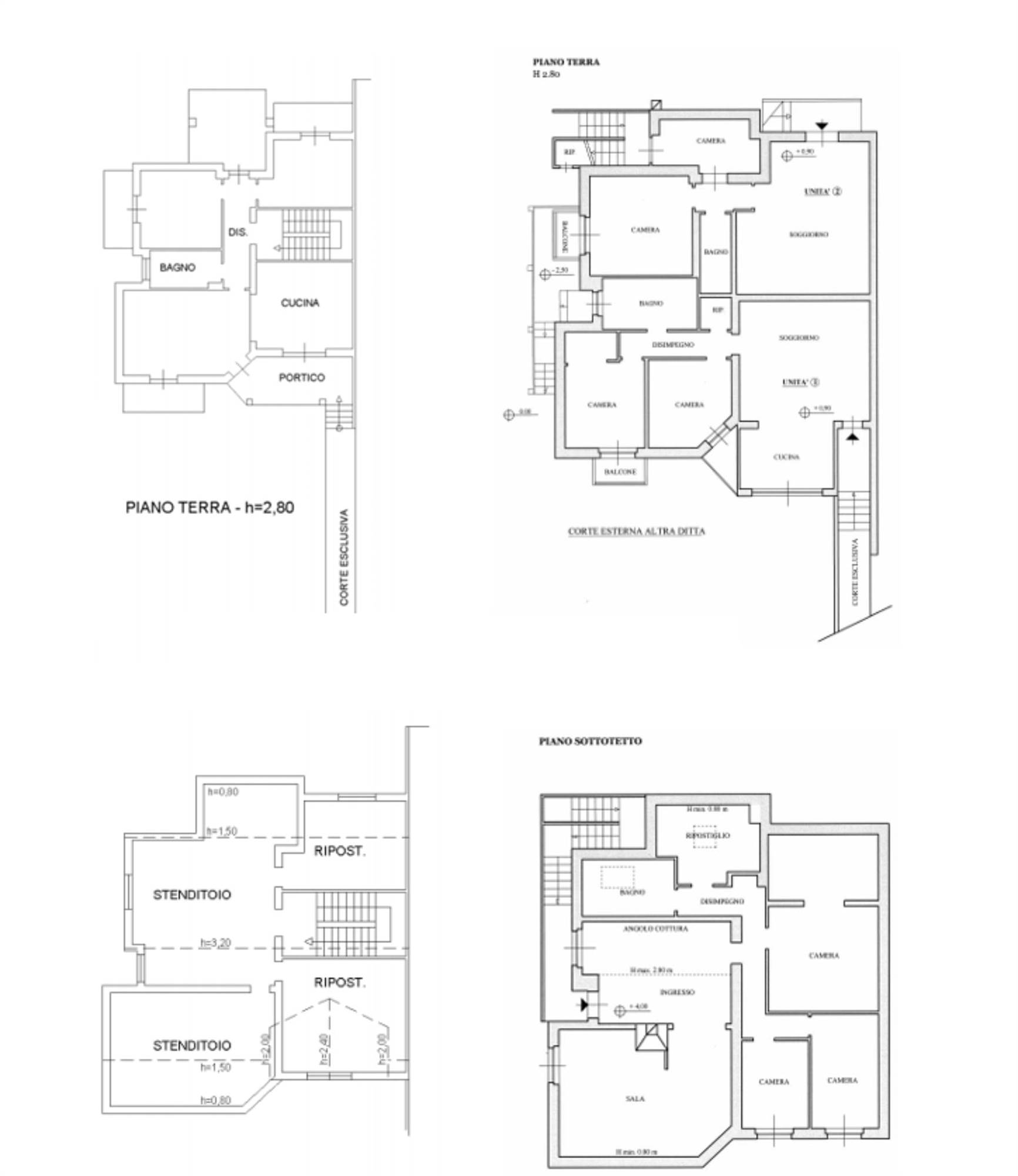
Descrizione sintetica: unità ad uso abitativo al piano terra/rialzato attualmente suddiviso in due appartamenti oltre sottotetto, originariamente autorizzato come ripostiglio/stenditoio ma anch’esso adibito a porzione abitativa. Le due porzioni abitative che ne sono derivate si compongono rispettivamente di ingresso/soggiorno, due camere, cucina, locale igienico, disimpegno e ripostiglio (quella con fronte su via colombo) e di soggiorno con angolo cottura, camera matrimoniale, cameretta e locale igienico (quella con accesso dal retro del fabbricato). Il sottotetto si compone di ampio ingresso attualmente destinato a soggiorno e sala, vano utilizzato a camera matrimoniale, due camerette, bagno, ripostiglio e disimpegno. Il collegamento tra i livelli dell'unità abitativa è garantito da gradinata esterna. Unità ad uso ripostiglio / magazzino al piano seminterrato, attualmente adibito a taverna e con due ulteriori stanze ammobiliate e locale igienico.


Aste Agency SRL offre il servizio di assistenza per acquistare tramite un mutuo con banche convenzionate. Assiste ed indirizza, dall’aggiudicazione fino alla consegna delle chiavi.

PERCHE’ COMPRARE ALL’ASTA:
- Acquisto sicuro tramite Tribunale;
- Prezzo inferiore rispetto al mercato libero, quindi rata del mutuo più bassa;
- Banche convenzionate con i Tribunali;
- Nessun vincolo di prezzo nella rivendita e nella locazione.

Le Aste Giudiziarie sono soluzioni abitative a prezzi unici, in quanto si compera ad un prezzo inferiore, paragonato alla realtà proibitiva del mercato libero, e l’investimento immobiliare risulta essere sicuramente conveniente.
Per maggiori delucidazioni vi invitiamo a contattarci. Sarà nostra premura fissare un appuntamento in studio e trasferirvi tutte le informazioni necessarie per un’attenta e serena valutazione.

ASTE AGENCY SRL – Contattateci per un appuntamento presso uno dei nostri uffici o in videochiamata.
Caratteristiche principali
Codice:
102.23.190526.CH
Città:
Ortona
Categoria:
Casa singola
Locali:
9
Camere:
4
Bagni:
3
Mq:
219
Piano:
Terra
Anno:
1987
Classe energetica:
G
Stato Immobile:
Buono
Grado:
Medio
Tipo Cucina:
Abitabile
Riscaldamento:
Autonomo
Tipo Impianto:
Radiatori
Fonte Energetica:
Metano
Accesso Disabili:
No
Accessori
Camino
Canna Fumaria
Lavanderia
Ripostiglio
Mappa
Contrada Colombo, 4 - Ortona (CH)
Planimetrie
Richiedi informazioni
Invia
Cookie preference