Acquisto Assistito in Asta Giudiziaria

In vendita
Appartamento
San Zenone al Lambro
120.000 €
Descrizione
Acquisto Assistito in Asta Giudiziaria
Per maggiori proposte visita il sito dell’agenzia:
www.asteagency.com

Verifica fattibilità d’acquisto in PRE-ASTA
DATA ASTA : 22/04/2025


UBICAZIONE E DESCRIZIONE:
Indirizzo: Via Salerano, 45 - San Zenone al Lambro (MI)
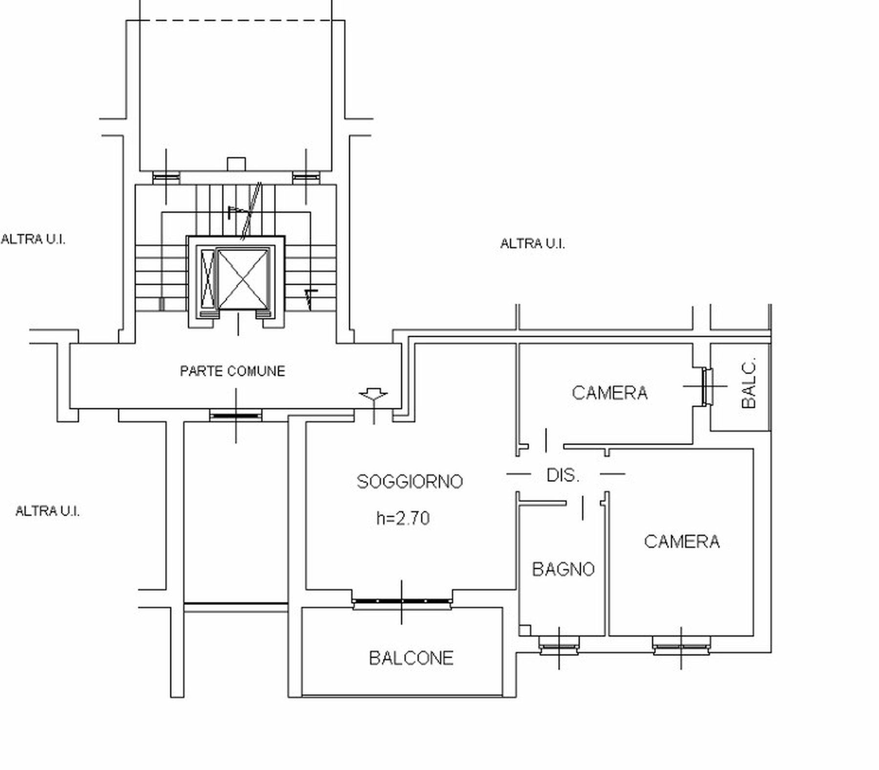
Descrizione sintetica: appartamento di 73 mq posto al piano secondo composto da tre locali oltre servizio e disimpegno con annesso vano di cantina posto al piano interrato e vano box di 21 mq ad uso autorimessa.
E' presente l'ascensore e condizionamento e gli impianti sono di tipo centralizzato.

Aste Agency SRL offre il servizio di assistenza per acquistare tramite un mutuo con banche convenzionate. Assiste ed indirizza, dall’aggiudicazione fino alla consegna delle chiavi.

PERCHE’ COMPRARE ALL’ASTA:
- Acquisto sicuro tramite Tribunale;
- Prezzo inferiore rispetto al mercato libero, quindi rata del mutuo più bassa;
- Banche convenzionate con i Tribunali;
- Nessun vincolo di prezzo nella rivendita e nella locazione.

Le Aste Giudiziarie sono soluzioni abitative a prezzi unici, in quanto si compera ad un prezzo inferiore, paragonato alla realtà proibitiva del mercato libero, e l’investimento immobiliare risulta essere sicuramente conveniente.
Per maggiori delucidazioni vi invitiamo a contattarci. Sarà nostra premura fissare un appuntamento in studio e trasferirvi tutte le informazioni necessarie per un’attenta e serena valutazione.

ASTE AGENCY SRL – Contattateci per un appuntamento presso uno dei nostri uffici o in videochiamata.
Caratteristiche principali
Codice:
10.24.220426.LO
Città:
San Zenone al Lambro
Categoria:
Appartamento
Locali:
4
Camere:
2
Bagni:
1
Mq:
73
Box:
1
Piano:
2
Anno:
1983
Classe energetica:
G
Stato Immobile:
Buono
Grado:
Medio
Arredi:
Non Arredato
Tipo Cucina:
A Vista
Riscaldamento:
Centralizzato
Tipo Impianto:
Radiatori
Fonte Energetica:
Metano
Acqua Calda:
Centralizzata
Accesso Disabili:
No
Mappa
Via Salerano , 45 - San Zenone al Lambro (MI)
Richiedi informazioni
Invia
Cookie preference