Acquisto Assistito in Asta e Pre-Asta

In vendita
Villa Bifamiliare
Ostuni
284.501 €
Descrizione
Acquisto Assistito in Asta Giudiziaria
Per maggiori proposte visita il sito dell’agenzia: www.asteagency.com

Verifica fattibilità d’acquisto in PRE-ASTA

DATA ASTA : 27/04/26

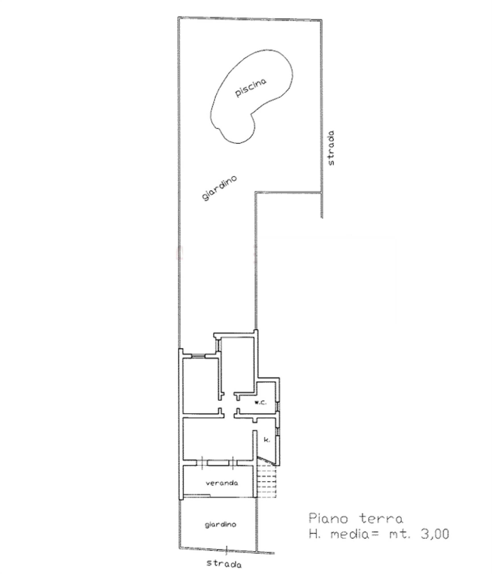
UBICAZIONE E DESCRIZIONE:
Contrada Pilone, Via del Boschetto, 2 Ostuni BR

Descrizione sintetica: Fabbricato di tipologia villino, con due unità abitative, una posta al piano terra e l'altra al piano primo. L'accesso al fabbricato avviene tramite cancello principale ed uno pedonale, il perimetro di esso è completamente recintato. Dotato di un'ampia zona esterna pavimentata e di una zona relax coperta da pergolato in legno, una piscina scoperta nella parte retrostante della proprietà, per una superficie di area esterna totale di mq 342,09. L'unità si compone di soggiorno centrale, cucina, due camere e bagno. Attraverso una scala esterna si accede al piano primo, recentemente ristrutturato, composto da open space con soggiorno e cucina a vista, due camere, bagno, balcone di mq 11,16 e accesso al lastrico solare da suddetto balcone.


Aste Agency SRL offre il servizio di assistenza per acquistare tramite un mutuo con banche convenzionate. Assiste ed indirizza, dall’aggiudicazione fino alla consegna delle chiavi.

PERCHE’ COMPRARE ALL’ASTA:
- Acquisto sicuro tramite Tribunale;
- Prezzo inferiore rispetto al mercato libero, quindi rata del mutuo più bassa;
- Banche convenzionate con i Tribunali;
- Nessun vincolo di prezzo nella rivendita e nella locazione.

Le Aste Giudiziarie sono soluzioni abitative a prezzi unici, in quanto si compera ad un prezzo inferiore, paragonato alla realtà proibitiva del mercato libero, e l’investimento immobiliare risulta essere sicuramente conveniente.
Per maggiori delucidazioni vi invitiamo a contattarci. Sarà nostra premura fissare un appuntamento in studio e trasferirvi tutte le informazioni necessarie per un’attenta e serena valutazione.

ASTE AGENCY SRL – Contattateci per un appuntamento presso uno dei nostri uffici o in videochiamata.
Caratteristiche principali
Codice:
99.24.270426.BR
Città:
Ostuni
Categoria:
Villa Bifamiliare
Locali:
7
Camere:
4
Bagni:
2
Mq:
241
Mq Giardino:
342
Balconi:
1
Mq Balcone:
11
Terrazzi:
1
Piano:
Terra
Anno:
1975
Classe energetica:
G
Stato Immobile:
Buono
Grado:
Medio
Tipo Cucina:
Abitabile
Riscaldamento:
Autonomo
Tipo Impianto:
Radiatori
Fonte Energetica:
Metano
Accesso Disabili:
No
Accessori
Piscina
Ripostiglio
Mappa
Contrada Pilone Via del Boschetto , 2 - Ostuni (BR)
Richiedi informazioni
Invia
Cookie preference