Acquisto Assistito - in Asta e Pre-Asta

In vendita
Appartamento
Sassocorvaro Auditore
69.216 €
Descrizione
Acquisto Assistito in Asta Giudiziaria
Per maggiori proposte visita il sito dell’agenzia: www.asteagency.com

Verifica fattibilità d’acquisto in PRE-ASTA
DATA ASTA : 13/01/26

Disponibilità: Occupato con regolare contratto di locazione

UBICAZIONE E DESCRIZIONE:
Indirizzo: Piazza Foro Boario, 11 Fraz.ne Casinina, Sassocorvaro Auditore PU
Descrizione sintetica:
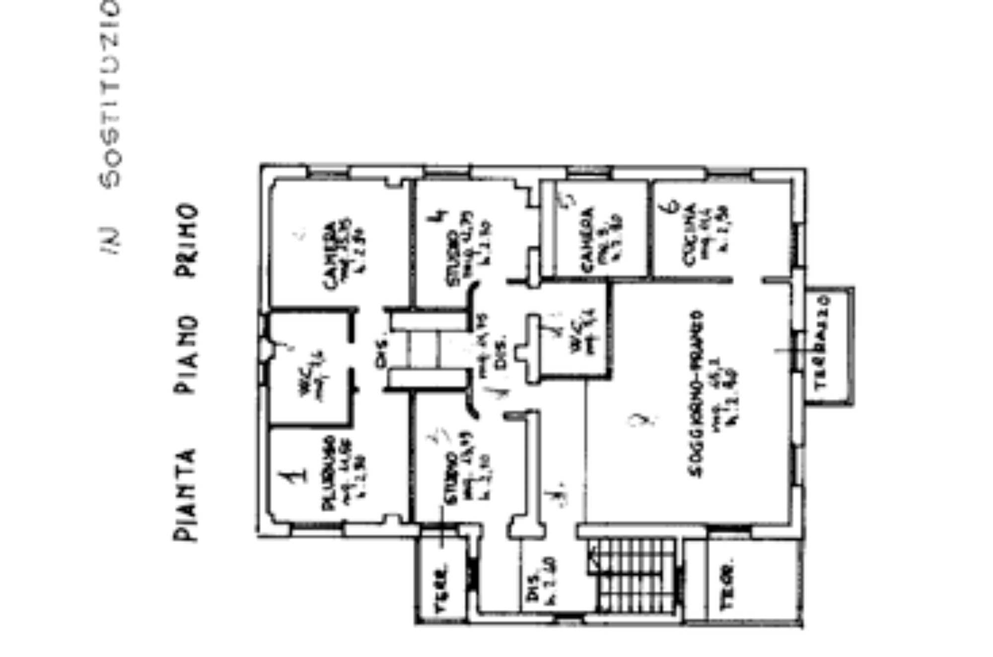
Appartamento posto al piano primo, al quale vi si accede da vano scala autonomo, con locale lavanderia esclusivo a piano terra, si compone: al piano terra atrio ingresso vano scala autonomo con locale lavanderia, al piano primo disimpegno di ingresso, locale soggiorno/pranzo, cucina, locale disimpegno, due camere, due locali studio, un locale pluriuso, due bagni e tre terrazzi;

Aste Agency SRL offre il servizio di assistenza per acquistare tramite un mutuo con banche convenzionate. Assiste ed indirizza, dall’aggiudicazione fino alla consegna delle chiavi.

PERCHE’ COMPRARE ALL’ASTA:
- Acquisto sicuro tramite Tribunale;
- Prezzo inferiore rispetto al mercato libero, quindi rata del mutuo più bassa;
- Banche convenzionate con i Tribunali;
- Nessun vincolo di prezzo nella rivendita e nella locazione.

Le Aste Giudiziarie sono soluzioni abitative a prezzi unici, in quanto si compera ad un prezzo inferiore, paragonato alla realtà proibitiva del mercato libero, e l’investimento immobiliare risulta essere sicuramente conveniente.
Per maggiori delucidazioni vi invitiamo a contattarci. Sarà nostra premura fissare un appuntamento in studio e trasferirvi tutte le informazioni necessarie per un’attenta e serena valutazione.

ASTE AGENCY SRL – Contattateci per un appuntamento presso uno dei nostri uffici o in videochiamata.

Caratteristiche principali
Codice:
97.23.130126.PU
Città:
Sassocorvaro Auditore
Categoria:
Appartamento
Locali:
7
Camere:
4
Bagni:
2
Mq:
206
Terrazzi:
3
Piano:
1
Anno:
1985
Classe energetica:
G
Stato Immobile:
Buono
Grado:
Medio
Lati Liberi:
3
Arredi:
Non Arredato
Tipo Cucina:
Abitabile
Riscaldamento:
Autonomo
Fonte Energetica:
Metano
Accesso Disabili:
No
Mappa
Foro Boario, 11 - Sassocorvaro Auditore (PU)
Planimetrie
Richiedi informazioni
Invia
Cookie preference