Acquisto Assistito in Asta e Pre-Asta

In vendita
Casa singola
Sammichele di Bari
62.663 €
Descrizione
Acquisto Assistito in Asta e Pre-Asta
Per maggiori proposte visita il sito dell’agenzia: www.asteagency.com

Verifica fattibilità d’acquisto in PRE-ASTA

DATA ASTA: 17/03/2026

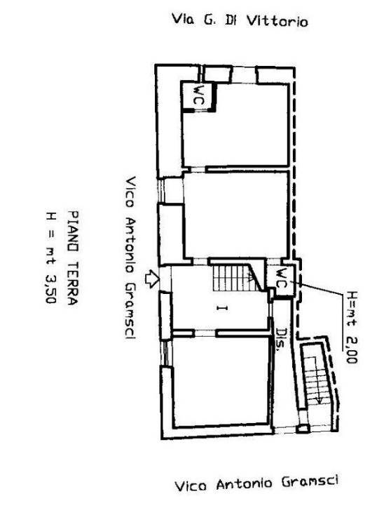
UBICAZIONE E DESCRIZIONE:
Via Gramsci, 1, 70010 Sammichele di Bari Bari

Descrizione sintetica: palazzina indipendente, di due livelli, unifamiliare, ad uso residenziale, con cantinola pertinenziale. E’ composta al piano terreno da ingresso-disimpegno con vano scala; da questo si accede frontalmente ad ulteriore disimpegno che porta al secondo ingresso su vico Gramsci. Sulla destra vi è una stanza e sulla sinistra due stanze, entrambe con un piccolo wc. Dal vano scala si accede al primo piano, costituito da disimpegno, tre camere con balcone e soggiorno con bagno e cucina, anch’essa con balcone. Sul bagno, un soppalco a cui si accede dalla cucina. Proseguendo per le scale si accede al piano copertura, costituito da un locale soffitta e due accessi alle due terrazze, che costituiscono copertura del fabbricato sottostante. Alla cantina non si accede dall’interno dell’immobile. Balconi di mq 10,63, terrazze di mq 94,00.

Aste Agency SRL offre il servizio di assistenza per acquistare tramite un mutuo con banche convenzionate. Assiste ed indirizza, dall’aggiudicazione fino alla consegna delle chiavi.

PERCHE’ COMPRARE ALL’ASTA:
- Acquisto sicuro tramite Tribunale;
- Prezzo inferiore rispetto al mercato libero, quindi rata del mutuo più bassa;
- Banche convenzionate con i Tribunali;
- Nessun vincolo di prezzo nella rivendita e nella locazione.

Le Aste Giudiziarie sono soluzioni abitative a prezzi unici, in quanto si compera ad un prezzo inferiore, paragonato alla realtà proibitiva del mercato libero, e l’investimento immobiliare risulta essere sicuramente conveniente.
Per maggiori delucidazioni vi invitiamo a contattarci. Sarà nostra premura fissare un appuntamento in studio e trasferirvi tutte le informazioni necessarie per un’attenta e serena valutazione.

ASTE AGENCY SRL – Contattateci per un appuntamento presso uno dei nostri uffici o in videochiamata.
Caratteristiche principali
Codice:
93.23.170326.BA
Città:
Sammichele di Bari
Categoria:
Casa singola
Locali:
8
Camere:
3
Bagni:
2
Mq:
257
Balconi:
2
Terrazzi:
1
Piano:
Terra
Anno:
1967
Classe energetica:
G
Stato Immobile:
Buono
Grado:
Medio
Tipo Cucina:
Abitabile
Riscaldamento:
Autonomo
Tipo Impianto:
Radiatori
Fonte Energetica:
Metano
Accesso Disabili:
No
Mappa
Via Gramsci, 1 - Sammichele di Bari (BA)
Planimetrie
Richiedi informazioni
Invia
Cookie preference