Acquisto Assistito - in Asta e Pre-Asta

In vendita
Appartamento
Tambre
63.225 €
Descrizione
Acquisto Assistito in Asta Giudiziaria
Per maggiori proposte visita il sito dell’agenzia: www.asteagency.com

Verifica fattibilità d’acquisto in PRE-ASTA

DATA ASTA : 24/02/26

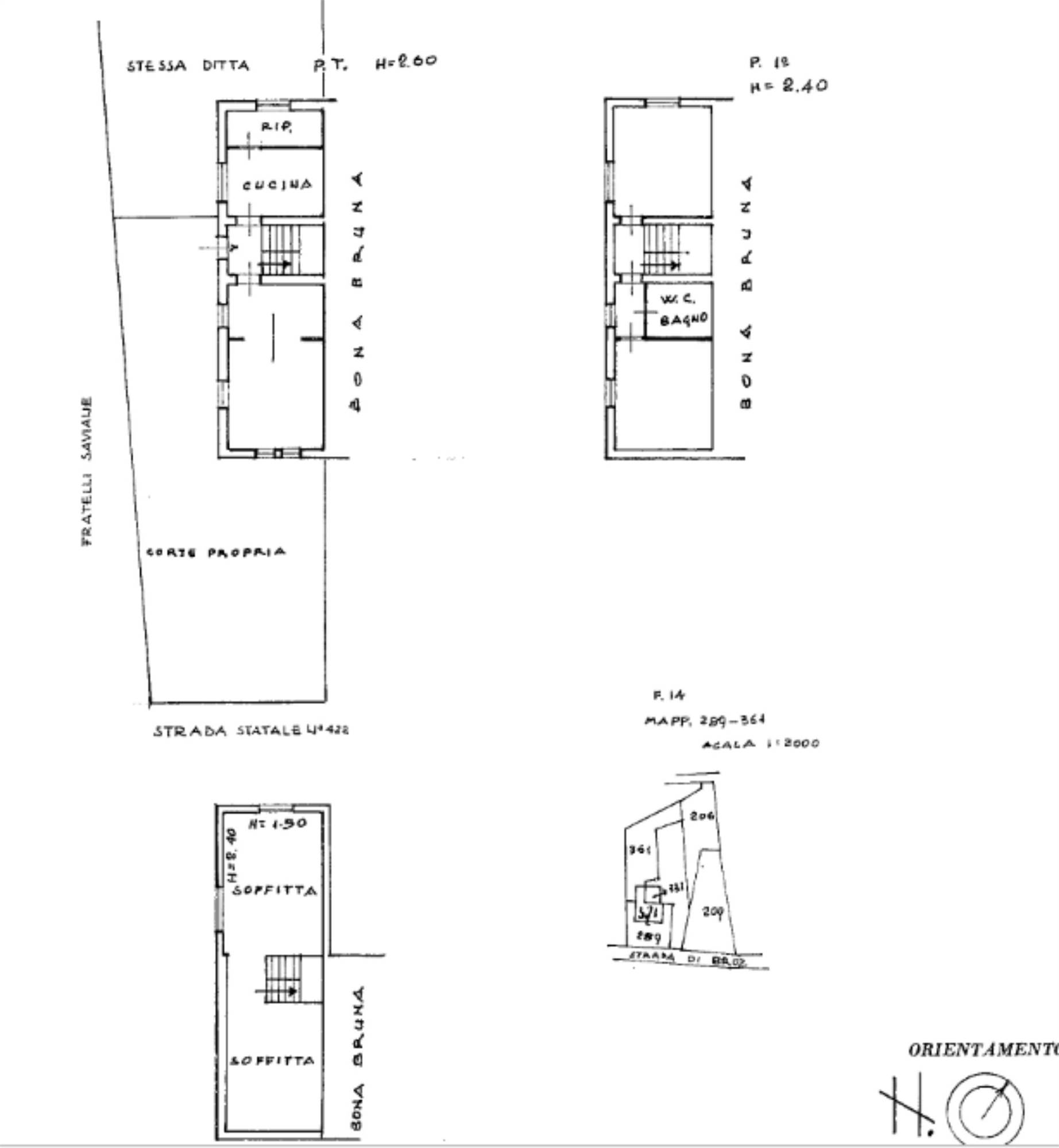
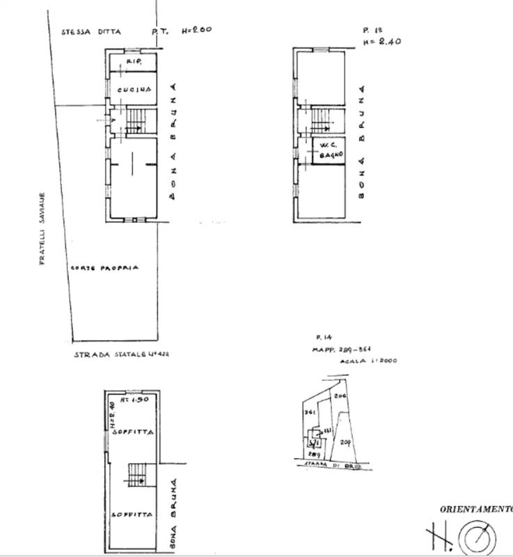
UBICAZIONE E DESCRIZIONE:
Indirizzo: Via Broz, 30 Tambre (BL)
Descrizione sintetica:
Abitazione su tre livelli fuori terra compreso il sottotetto. L'ingresso è centrale con scala che distribuisce i vari livelli. Sui due lati dell'ingresso al piano terra ci sono la cucina e il soggiorno, mentre al piano primo ci sono due camere e un bagno. Al piano secondo sottotetto c'è la soffitta. Scoperto a giardino.
 

Aste Agency SRL offre il servizio di assistenza per acquistare tramite un mutuo con banche convenzionate. Assiste ed indirizza, dall’aggiudicazione fino alla consegna delle chiavi.

PERCHE’ COMPRARE ALL’ASTA:
- Acquisto sicuro tramite Tribunale;
- Prezzo inferiore rispetto al mercato libero, quindi rata del mutuo più bassa;
- Banche convenzionate con i Tribunali;
- Nessun vincolo di prezzo nella rivendita e nella locazione.

Le Aste Giudiziarie sono soluzioni abitative a prezzi unici, in quanto si compera ad un prezzo inferiore, paragonato alla realtà proibitiva del mercato libero, e l’investimento immobiliare risulta essere sicuramente conveniente.
Per maggiori delucidazioni vi invitiamo a contattarci. Sarà nostra premura fissare un appuntamento in studio e trasferirvi tutte le informazioni necessarie per un’attenta e serena valutazione.

ASTE AGENCY SRL – Contattateci per un appuntamento presso uno dei nostri uffici o in videochiamata.



Caratteristiche principali
Codice:
90.24.240226.BL
Città:
Tambre
Categoria:
Appartamento
Locali:
4
Camere:
2
Bagni:
1
Mq:
167
Piano:
Terra
Anno:
1973
Classe energetica:
G
Stato Immobile:
Buono
Grado:
Medio
Arredi:
Non Arredato
Tipo Cucina:
Abitabile
Riscaldamento:
Autonomo
Fonte Energetica:
Metano
Accesso Disabili:
No
Mappa
Via broz(Frazione Broz), 30 - Tambre (BL)
Planimetrie
Richiedi informazioni
Invia
Cookie preference