Acquisto Assistito - in Asta e Pre-Asta

In vendita
Appartamento
San Canzian d'Isonzo
185.845 €
Descrizione
Acquisto Assistito in Asta Giudiziaria
Per maggiori proposte visita il sito dell’agenzia: www.asteagency.com

Verifica fattibilità d’acquisto in PRE-ASTA


DATA ASTA : 13/01/26


Disponibilità: Libero al decreto di trasferimento

UBICAZIONE E DESCRIZIONE:
Indirizzo: Via Rebez, 10 San Canzian d’Isonzo (GO)
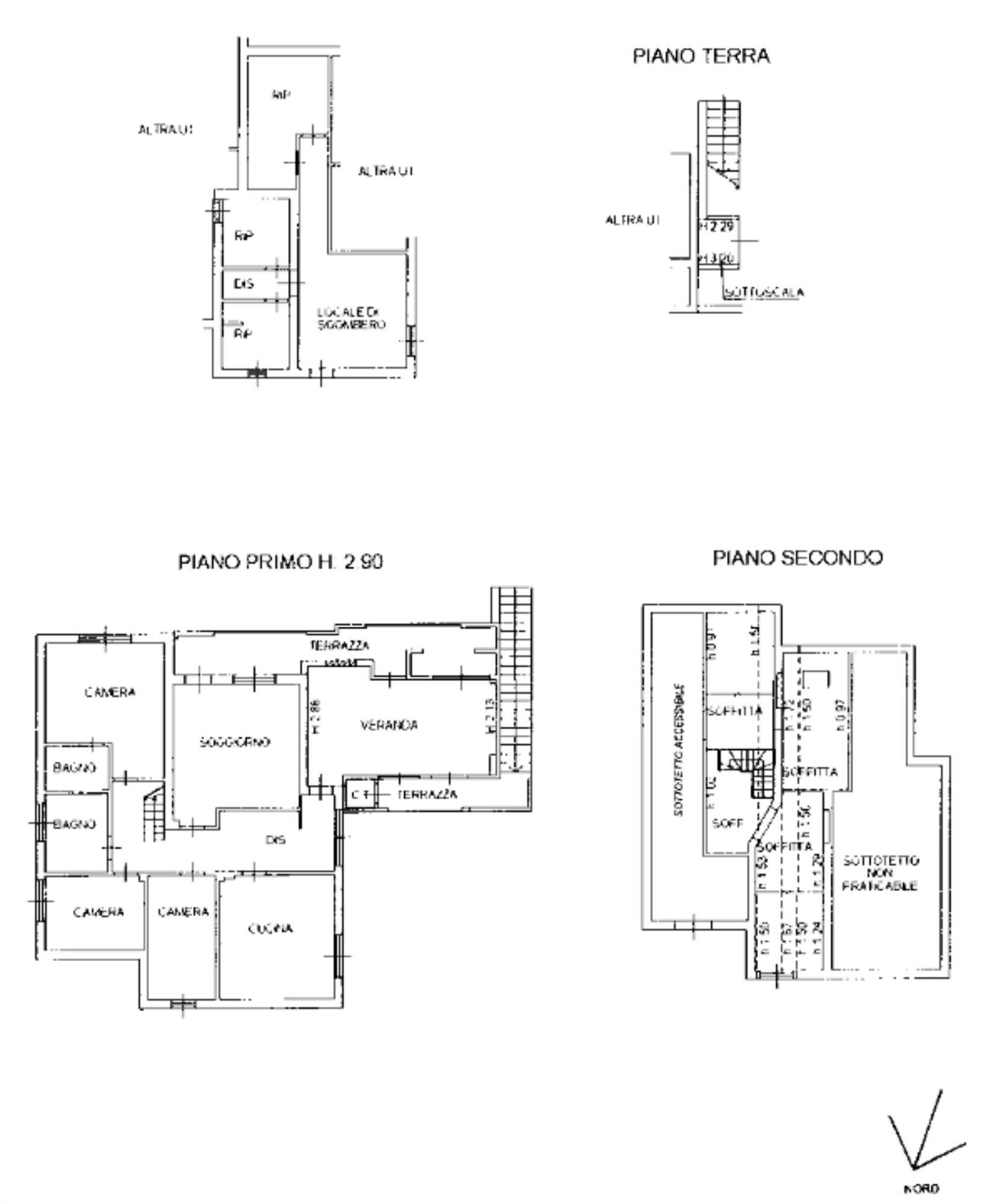
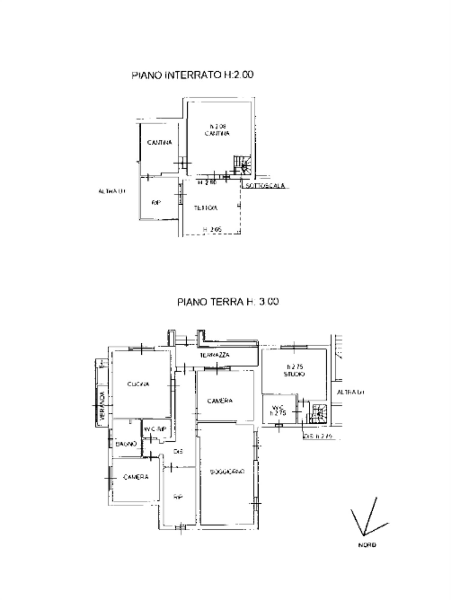
Descrizione sintetica:
Due appartamenti costituiti entrambi da un piano seminterrato con vani accessori. Una abitazione è disposta al piano terra con salotto, cucina, due camere da letto ed un bagno l'altra al primo piano con salotto, cucina, tre camere da letto e due bagni, entrambe con soffitta e posto auto scoperto.
 


Aste Agency SRL offre il servizio di assistenza per acquistare tramite un mutuo con banche convenzionate. Assiste ed indirizza, dall’aggiudicazione fino alla consegna delle chiavi.

PERCHE’ COMPRARE ALL’ASTA:
- Acquisto sicuro tramite Tribunale;
- Prezzo inferiore rispetto al mercato libero, quindi rata del mutuo più bassa;
- Banche convenzionate con i Tribunali;
- Nessun vincolo di prezzo nella rivendita e nella locazione.

Le Aste Giudiziarie sono soluzioni abitative a prezzi unici, in quanto si compera ad un prezzo inferiore, paragonato alla realtà proibitiva del mercato libero, e l’investimento immobiliare risulta essere sicuramente conveniente.
Per maggiori delucidazioni vi invitiamo a contattarci. Sarà nostra premura fissare un appuntamento in studio e trasferirvi tutte le informazioni necessarie per un’attenta e serena valutazione.

ASTE AGENCY SRL – Contattateci per un appuntamento presso uno dei nostri uffici o in videochiamata.




Caratteristiche principali
Codice:
79.24.1.130126.GO
Città:
San Canzian d'Isonzo
Categoria:
Appartamento
Locali:
9
Camere:
5
Bagni:
3
Mq:
339
Piano:
Terra
Anno:
1967
Classe energetica:
G
Stato Immobile:
Buono
Grado:
Medio
Arredi:
Non Arredato
Tipo Cucina:
Abitabile
Riscaldamento:
Autonomo
Fonte Energetica:
Metano
Accesso Disabili:
No
Mappa
Via Rebez, 10 - San Canzian d'Isonzo (GO)
Planimetrie
Richiedi informazioni
Invia
Cookie preference