Acquisto Assistito in Asta Giudiziaria

In vendita
Appartamento
San Severino Marche
130.725 €
Descrizione
Acquisto Assistito in Asta Giudiziaria
Per maggiori proposte visita il sito dell’agenzia: www.asteagency.com

Verifica fattibilità d’acquisto in PRE-ASTA

DATA ASTA : 27/02/26

UBICAZIONE E DESCRIZIONE:
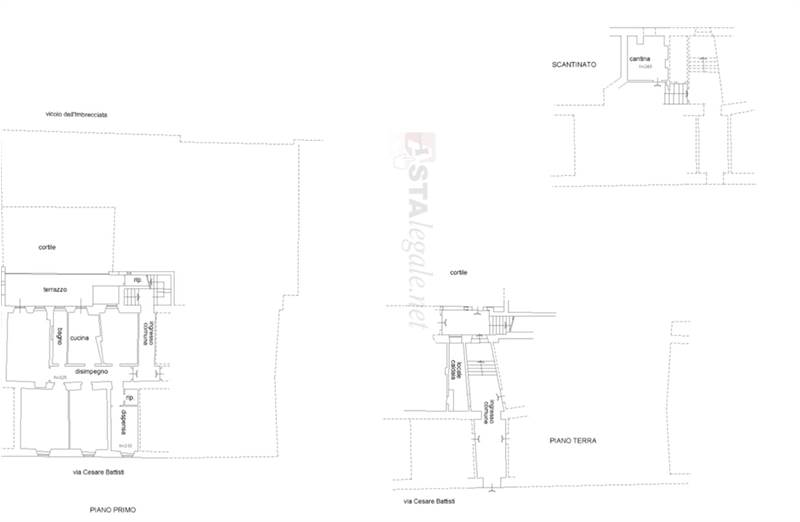
Indirizzo: Via Cesare Battisti, 42 San Severino Marche

Descrizione sintetica:
Appartamento di civile abitazione al piano primo, con cantina al piano seminterrato e garage al piano terra. Composto da soggiorno, cucina, due camere, due ripostigli, un terrazzo e due bagni.

Superficie lorda commerciale mq: 183,84
Superficie Garage mq: 26,00

Aste Agency SRL offre il servizio di assistenza per acquistare tramite un mutuo con banche convenzionate. Assiste ed indirizza, dall’aggiudicazione fino alla consegna delle chiavi.

PERCHE’ COMPRARE ALL’ASTA:
- Acquisto sicuro tramite Tribunale;
- Prezzo inferiore rispetto al mercato libero, quindi rata del mutuo più bassa;
- Banche convenzionate con i Tribunali;
- Nessun vincolo di prezzo nella rivendita e nella locazione.

Le Aste Giudiziarie sono soluzioni abitative a prezzi unici, in quanto si compera ad un prezzo inferiore, paragonato alla realtà proibitiva del mercato libero, e l’investimento immobiliare risulta essere sicuramente conveniente.
Per maggiori delucidazioni vi invitiamo a contattarci. Sarà nostra premura fissare un appuntamento in studio e trasferirvi tutte le informazioni necessarie per un’attenta e serena valutazione.

ASTE AGENCY SRL – Contattateci per un appuntamento presso uno dei nostri uffici o in videochiamata.

Caratteristiche principali
Codice:
79.23.270226.MC
Città:
San Severino Marche
Categoria:
Appartamento
Locali:
5
Camere:
2
Bagni:
2
Mq:
183,84
Box:
1
Mq Box:
14,72
Terrazzi:
1
mq Terrazzo:
6,75
Piano:
1
Anno:
1967
Classe energetica:
G
Stato Immobile:
Buono
Grado:
Medio
Lati Liberi:
3
Arredi:
Non Arredato
Tipo Cucina:
Abitabile
Riscaldamento:
Autonomo
Tipo Riscaldam.:
Caldaia
Tipo Impianto:
Radiatori
Fonte Energetica:
Metano
Acqua Calda:
Autonoma
Infissi:
Legno
Serramenti:
Buono
Persiana:
Persiana Legno
Accesso Disabili:
No
Mappa
Via Cesare Battisti , 42 - San Severino Marche (MC)
Planimetrie
Richiedi informazioni
Invia
Cookie preference